Prodej bytu 3+1, Ostrava, náměstí Antonie Bejdové, 73 m2 (ID: 4227525)

náměstí Antonie Bejdové, Ostrava, Poruba

Cena na vyžádání /za nemovitost Získejte výhodnou HYPOTÉKU

(Náklady na bydlení činí 5.000,- Kč/ měsíc/1 osoba)

Prémioví partneři v Ostravě

Informace k bytu

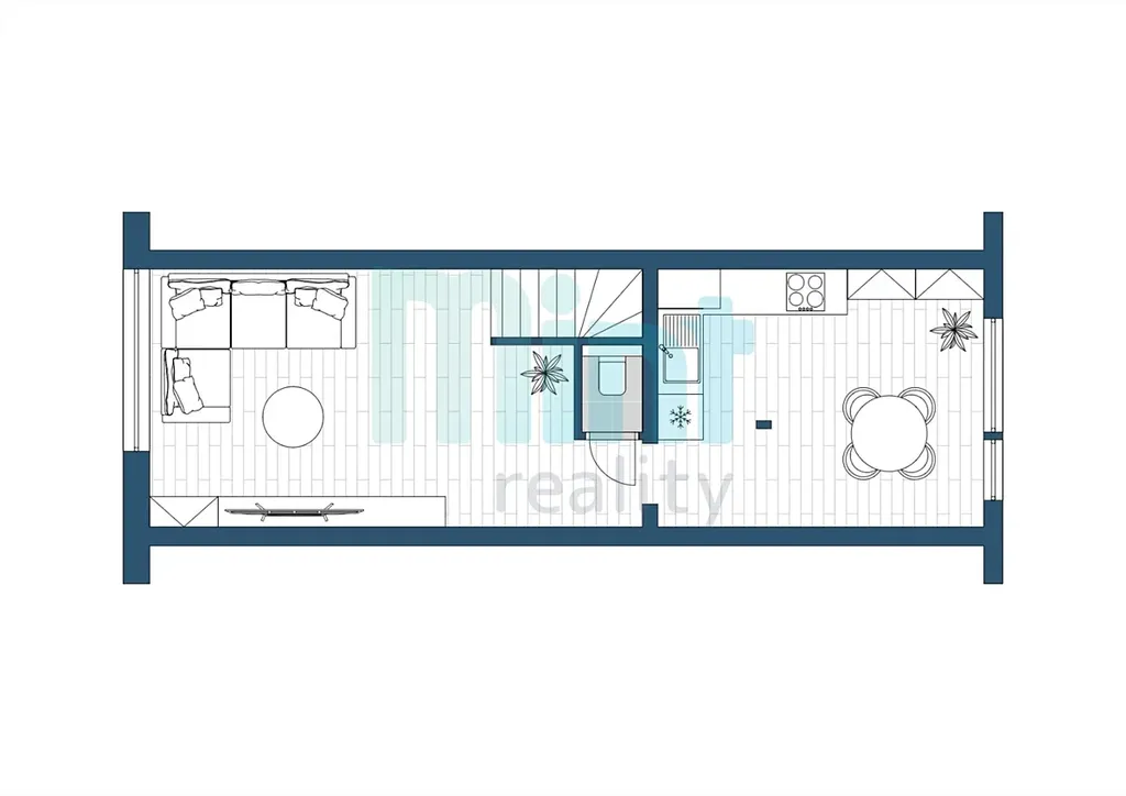
Nabízíme k prodeji mezonetový byt o dispozici 3 + 1 [73 m²] umístěný na čtvrtém podlaží dvanáctipatrového panelového domu, nacházejícího se na adrese náměstí Antonie Bejdové v Ostravě-Porubě.

Nadstandardní rekonstrukce, která zahrnovala nové rozvody elektřiny, sádrové omítky a vinylové podlahy, sanitární obklady, nová topná tělesa v celém bytě a interiérové dveře, což zajistí komfortní a moderní bydlení.

Byt je rozdělen do dvou úrovní. Po vstupu do bytu se ocitnete v útulné kuchyni, která je vybavena elektrickou indukční varnou deskou, vestavěnou elektrickou troubou a mikrovlnnou troubou. Disponuje také kuchyňským ostrůvkem, díky němu má kuchyň moderní vzhled a dostatek úložného místa. Kuchyň má také přípojky na myčku a pračku, což usnadňuje běžný provoz domácnosti. Ve spodní části bytu se nachází prostorný a slunný obývací pokoj, ideální pro odpočinek a rodinné posezení, a toaleta.

Horní část bytu nabízí dva pokoje, které poskytují dostatek soukromí. Z jednoho z těchto pokojů je přístup na zasklenou lodžii, která je skvělým místem pro relaxaci a užívání si výhledu do okolí. Koupelna je vybavena moderním sprchovým koutem, umyvadlem a je zde také umístěna toaleta.

Vstup do bytu je z uzamykatelné chodbičky, tzv. pavlače, a v domě se nacházejí dva výtahy. Lokalita, ve které se nemovitost nachází, je velmi klidná a nabízí dostatek zeleně. V blízkosti jsou mateřské školky, základní školy a také Vysoká škola báňská – Technická univerzita Ostrava. Nakupování je pohodlné díky blízkosti obchodního střediska Duha, supermarketu a lékárny. MHD zastávka je snadno dostupná, což usnadňuje každodenní cestování.

Okolí nabízí krásné procházky, včetně lesa, který vede do Plesné a Pustkoveckého Parku.

Uvedená cena je včetně provize a právního servisu.
Náš tým finančních poradců Vám vyřeší otázku financování.
V případě zájmu o prohlídku nás neváhejte kontaktovat.

Parametry bytu

Cena
Cena na vyžádání Spočítat hypotéku
Poznámka k ceně
Náklady na bydlení činí 5.000,- Kč/ měsíc/1 osoba
Náklady na bydlení
5 000
Aktualizováno
6. 4. 2026
Adresa
náměstí Antonie Bejdové, Ostrava, Poruba
ID
0719
Stavba
Panelová
Stav objektu
Po rekonstrukci
Patro
4. z 12
Vybaveno
Částečně
Lokalita objektu
Klidná část obce
Vlastnictví
Družstevní
Užitná plocha
73 m2
Třída energetické náročnosti
C - Úsporná
Elektřina
230V
Odpad
Veřejná kanalizace
Komunikace
Asfaltová
Telekomunikace
Internet
Doprava
MHD
Voda
Vodovod
Topné těleso
Radiátory
Zdroj topení
Ústřední dálkové
Lodžie
Výtah
Převod do OV

Kontaktovat makléře

Realitní kancelář

MINT reality s.r.o.

náměstí Antonie Bejdové 1810/10, Ostrava

Chystáte se prodat nemovitost?
Pomůžeme Vám!

Máte zájem o tento byt?

Tímto, v souladu s nařízením Evropského parlamentu a Rady (EU) 2016/679, v platném znění, prohlašuji, že mi je alespoň 16 let a uděluji tak svůj souhlas se zpracováním zadaných údajů (jméno, telefon, e-mail, ip adresa) společnosti B3 Technology, s.r.o., IČ: 07330600, se sídlem Novostavby 126/23, 435 11 Lom (správce dat), za účelem předání dotazu z tohoto formuláře Vámi vybranému inzerentovi a zpětného kontaktování mé osoby. Osobní údaje bude správce zpracovávat manuálně i automaticky přímo prostřednictvím svých zaměstnanců. Informace předané tímto formulářem budou uloženy v databázi správce maximálně po dobu 10 let. Odvolání souhlasu s uložením a zpracováním poskytnutých dat lze e-mailem na info@videobydleni.cz. V případě podezření na neoprávněné použití Vámi poskytnutých údajů máte právo předat podnět k šetření Úřadu pro ochranu osobních údajů. Více informací
Chystáte se prodat nemovitost?
Pomůžeme Vám!

Inzerát si prohlédlo 0 lidí

Prodejce

Lukáš Šuniar

Lukáš Šuniar

Hlídací pes

Chcete dostávat emailem podobné nabídky prodeje bytů 3+1 v Ostravě?

Podobné nemovitosti


Nevyhovuje Vám typ bytu? Podívejte se na jiné kategorie bytů.


Vybrané články z našeho blogu