Soccer reality

Pronájem bytu 1+kk, Praha, 35 m2 (ID: 4227790)

Praha 9

21 000 Kč /za měsíc Získejte výhodnou HYPOTÉKU

(poplatky 3.123Kč, kauce 42.000Kč)

Prémioví partneři v Praze 9

Stěhovací služby

Výkup a prodej starého nábytku

Informace k bytu

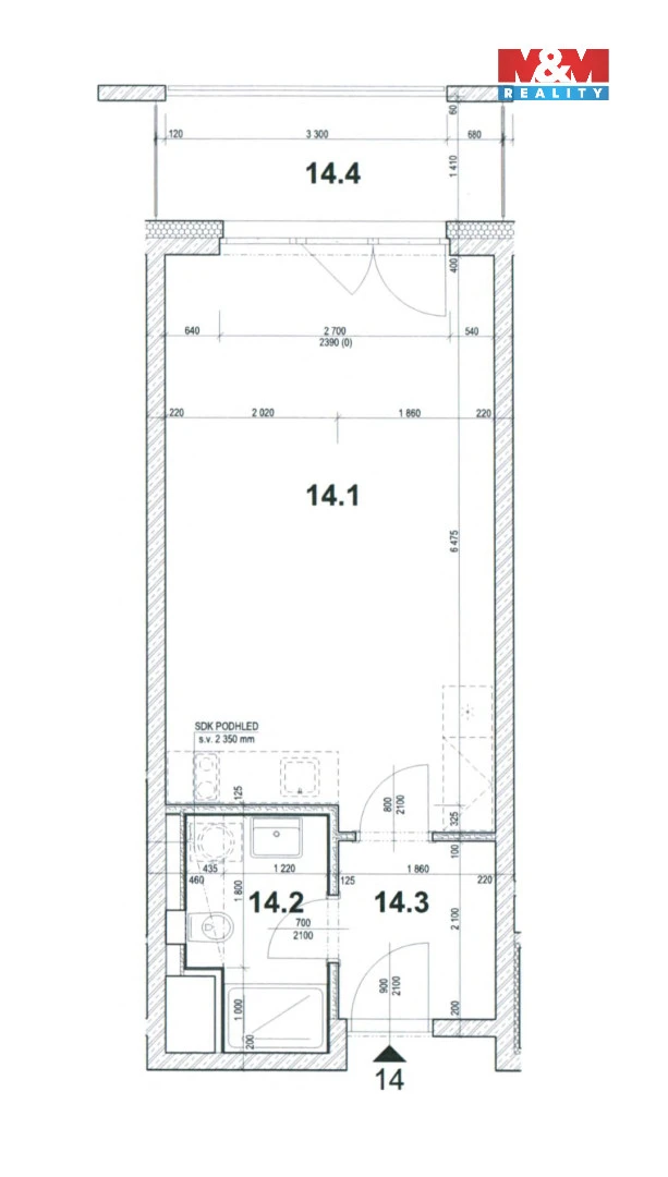
Pronájem bytu 1+kk, 35 m², Praha, ul. Bukačova

Nabízíme k pronájmu zcela nový, moderní byt 1+kk s lodžií o celkové ploše 36 m², ve 2. nadzemním podlaží atraktivní novostavby v projektu Harfa Living, Praha 9 – Vysočany.
Byt zaujme především promyšlenou dispozicí a vysokým standardem provedení. Obytný prostor je vybaven kvalitní kuchyňskou linkou se spotřebiči a navazuje na něj příjemná lodžie orientovaná do klidného vnitrobloku, která poskytuje dostatek světla i soukromí.
Součástí bytu je:
Moderní koupelna se sprchovým koutem a designovým vybavením(Laufen, Grohe)
Vestavěná šatní skříň v předsíni (viz foto 4.)
Sklepní kóje (5m²)pro dostatek úložného prostoru
Možnost instalace venkovních rolet
Dům nabízí komfortní bydlení s výtahem a společnými prostory (např. kočárkárna).
Lokalita Vysočan patří mezi nejdynamičtěji se rozvíjející části Prahy. V okolí najdete kompletní občanskou vybavenost – obchodní centra, restaurace, služby i zeleň pro relax a sport. Skvělá dopravní dostupnost
Byt je ihned připraven, prohlídky probíhají už teď.

Parametry bytu

Cena
21 000 Kč /za měsíc
Poznámka k ceně
poplatky 3.123Kč, kauce 42.000Kč
Aktualizováno
7. 4. 2026
Adresa
Praha 9
ID
938607
Stavba
Panelová
Stav objektu
Velmi dobrý
Vybaveno
Částečně
Lokalita objektu
Klidná část obce
Vlastnictví
Osobní
Užitná plocha
35 m2
Lodžie

Kontaktovat makléře

Realitní kancelář

Logo M&M reality

M&M reality

ulice Krakovská 583/9, Praha

Chystáte se prodat nemovitost?
Pomůžeme Vám!

Máte zájem o tento byt?

Tímto, v souladu s nařízením Evropského parlamentu a Rady (EU) 2016/679, v platném znění, prohlašuji, že mi je alespoň 16 let a uděluji tak svůj souhlas se zpracováním zadaných údajů (jméno, telefon, e-mail, ip adresa) společnosti B3 Technology, s.r.o., IČ: 07330600, se sídlem Novostavby 126/23, 435 11 Lom (správce dat), za účelem předání dotazu z tohoto formuláře Vámi vybranému inzerentovi a zpětného kontaktování mé osoby. Osobní údaje bude správce zpracovávat manuálně i automaticky přímo prostřednictvím svých zaměstnanců. Informace předané tímto formulářem budou uloženy v databázi správce maximálně po dobu 10 let. Odvolání souhlasu s uložením a zpracováním poskytnutých dat lze e-mailem na info@videobydleni.cz. V případě podezření na neoprávněné použití Vámi poskytnutých údajů máte právo předat podnět k šetření Úřadu pro ochranu osobních údajů. Více informací
Chystáte se prodat nemovitost?
Pomůžeme Vám!

Inzerát si prohlédlo 0 lidí

Prodejce

Petr Doležal

Petr Doležal

Hlídací pes

Chcete dostávat emailem podobné nabídky pronájmu bytů 1+kk v Praze 9?

Podobné nemovitosti


Nevyhovuje Vám typ bytu? Podívejte se na jiné kategorie bytů.


Vybrané články z našeho blogu