Pronájem bytu 2+kk, Jihlava, Vrchlického, 55 m2 (ID: 4228367)

Vrchlického, Jihlava

15 500 Kč /za měsíc Získejte výhodnou HYPOTÉKU
Prémioví partneři v Jihlavě

Informace k bytu

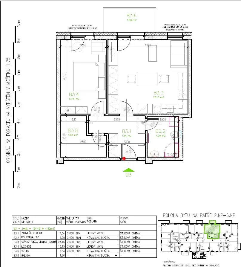
Nabízíme pronájem nového bytu v rezidenci „U Dubu“ s dispozicí 2+kk s balkonem 5m2 v atraktivní lokalitě - moderní bydlení, vysoká bezpečnost, nízkoenergetická třída, možnost využití soukromého parkování, výtah.

Bytová jednotka se nachází v 2. NP, disponuje zádveřím (7,83 m2), koupelnou se sprchovým koutem a WC (4,99 m2), obývacím pokojem s jídelnou a kuchyní (23,15 m2), ložnicí (13,1 m2), skladem (5, 83 m2) a balkónem (4,80m2).

Součástí je nová kuchyňská linka včetně spotřebičů (indukce, lednice, mrazák, myčka), kuchyňský stůl + 4 židle, 2x skříň v chodbě, skříň v ložnici, obývací stěna a skříňka pod umyvadlem.

K bytu náleží i možnost využívat společné prostory k uskladnění kol či kočárku a dále je možné využít privátní parkovací stání ve vnitrobloku domu (zahrnuto již v ceně nájmu).

Jde o jednu z nejvyhledávanějších lokalit k bydlení v Jihlavě, okolí nabízí veškerou občanskou vybavenost (školy, školky, služby, obchody, zdravotnická zařízení, parky, cyklostezky, dětská hřiště, MHD, aj.). Budova byla postavena v souladu s moderními trendy a nároky na vyšší standardy.

Nájem: 15 500Kč/měsíc
Zálohy - služby: 3 000/měsíc + záloha na elektrickou energii individuálně s dodavatelem.
Majitel preferuje dlouhodobý pronájem a požaduje předem vratnou kauci ve výši 2 nájmů + 1 nájem činí provize RK (+DPH), bez domácích zvířat, zákaz kouření v interiéru.

Volný: od 1. 5. 2026.

Pro další dotazy a termín prohlídky mě neváhejte kontaktovat.

Parametry bytu

Cena
15 500 Kč /za měsíc
Aktualizováno
7. 4. 2026
Adresa
Vrchlického, Jihlava
ID
00506-4
Stavba
Cihlová
Stav objektu
Novostavba
Patro
2.
Vlastnictví
Osobní
Užitná plocha
55 m2
Třída energetické náročnosti
G - Mimořádně nehospodárná
Balkon
Parkování

Kontaktovat makléře

Máte zájem o tento byt?

Tímto, v souladu s nařízením Evropského parlamentu a Rady (EU) 2016/679, v platném znění, prohlašuji, že mi je alespoň 16 let a uděluji tak svůj souhlas se zpracováním zadaných údajů (jméno, telefon, e-mail, ip adresa) společnosti B3 Technology, s.r.o., IČ: 07330600, se sídlem Novostavby 126/23, 435 11 Lom (správce dat), za účelem předání dotazu z tohoto formuláře Vámi vybranému inzerentovi a zpětného kontaktování mé osoby. Osobní údaje bude správce zpracovávat manuálně i automaticky přímo prostřednictvím svých zaměstnanců. Informace předané tímto formulářem budou uloženy v databázi správce maximálně po dobu 10 let. Odvolání souhlasu s uložením a zpracováním poskytnutých dat lze e-mailem na info@videobydleni.cz. V případě podezření na neoprávněné použití Vámi poskytnutých údajů máte právo předat podnět k šetření Úřadu pro ochranu osobních údajů. Více informací
Chystáte se prodat nemovitost?
Pomůžeme Vám!

Inzerát si prohlédlo 1 lidí

Prodejce

Petr Černický

Petr Černický

Hlídací pes

Chcete dostávat emailem podobné nabídky pronájmu bytů 2+kk v Jihlavě?

Podobné nemovitosti


Nevyhovuje Vám typ bytu? Podívejte se na jiné kategorie bytů.


Vybrané články z našeho blogu