Pronájem bytu 2+1, Ostrava, Tlapákova, 54 m2 (ID: 4228510)

Tlapákova, Ostrava, Hrabůvka

11 500 Kč /za měsíc Získejte výhodnou HYPOTÉKU

(+ zálohy od 2.600 Kč / měs.)

Prémioví partneři v Ostravě

Informace k bytu

Základní info:
- klidná lokalita na konci slepé ulice
- zčásti rekonstruovaný byt
- příznivé měsíční náklady - 11.500 Kč / měs. + zálohy od 2.600 Kč / měs.
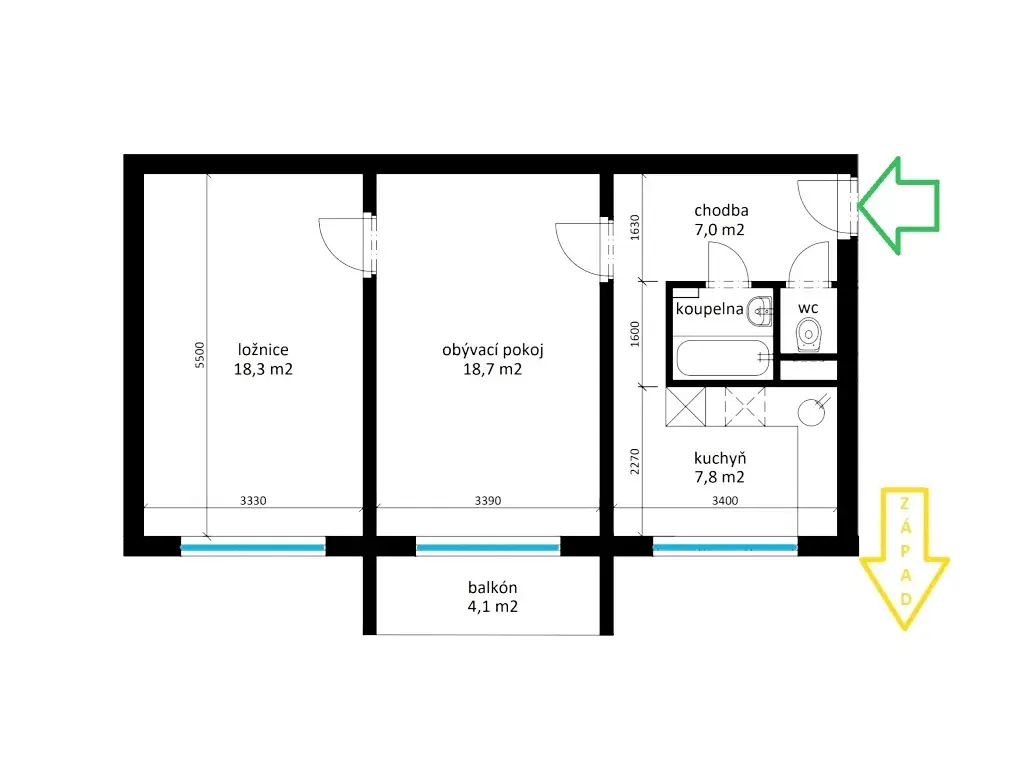
Dovoluji si Vám předložit nabídku pronájmu prostorného bytu 2+1 s balkónem v 7. NP rekonstruovaného bytového domu. Lokalita je velmi klidná, na konci slepé ulice a pod okny tak neprojíždí žádná doprava. Přesto je místo velmi dobře dopravně dostupné - do jakékoli části Ostravy se odtud dostanete do 10 min jízdy autem. Nejbližší zastávky MHD (tramvaje, autobusy) jsou do 500 m od domu. Parkování je možné přímo u domu na veřejné komunikaci. V blízkém okolí domu naleznete veškeré služby a obchody, prostě kompletní občanskou vybavenost. V nejbližším okolí domu je také základní i mateřská škola. Je zde také velké množství zeleně.
Byt je ve velice dobrém stavu a umožňuje pohodlné a klidné bydlení. Před nedávnem bylo kompletně rekonstruováno bytové jádro a položena dlažba v předsíni a kuchyni. V kuchyni byla dále namontována nová kuchyňská linka. Oba obytné pokoje jsou velké a mají orientaci oken, stejně jako kuchyně, k západu. K dispozici je také balkón. Byt je také částečně vybaven – v kuchyni je zánovní kombinovaná lednice s mrazákem, pračka, skříň, v obýváku je sedací souprava. Další vybavení na fotografiích je ve vlastnictví stávajícího nájemce, který je připraven projednat jejich ponechání v bytě.
Nájemné ve výši 11.500 Kč / měs. nezahrnuje zálohy na služby ve výši od 2.600 Kč / měs. / 1 osoba. Při každé další osobě se k zálohám připočte 700 Kč / měs. na vodu. Zálohy obsahují také elektřinu a plyn. Kauce je ve výši 26.000 Kč, administrativní poplatek RK je ve výši 13.000 Kč a zahrnuje veškerý právní servis a navazující služby nájemníkovi (vyúčtování, potvrzení, apod.). Byt je určen maximálně pro 3 osoby.
Byt bude k dispozici od 1.5.2026. Prohlídky jsou možné již nyní po předchozí domluvě.

Parametry bytu

Cena
11 500 Kč /za měsíc
Poznámka k ceně
+ zálohy od 2.600 Kč / měs.
Aktualizováno
7. 4. 2026
Adresa
Tlapákova, Ostrava, Hrabůvka
Stavba
Panelová
Stav objektu
Velmi dobrý
Patro
7.
Vlastnictví
Družstevní
Užitná plocha
54 m2
Balkon
Sklep

Kontaktovat makléře

Realitní kancelář

FIREA.CZ, finance a reality

Rekreační 2126/7, Ostrava, Poruba

Chystáte se prodat nemovitost?
Pomůžeme Vám!

Máte zájem o tento byt?

Tímto, v souladu s nařízením Evropského parlamentu a Rady (EU) 2016/679, v platném znění, prohlašuji, že mi je alespoň 16 let a uděluji tak svůj souhlas se zpracováním zadaných údajů (jméno, telefon, e-mail, ip adresa) společnosti B3 Technology, s.r.o., IČ: 07330600, se sídlem Novostavby 126/23, 435 11 Lom (správce dat), za účelem předání dotazu z tohoto formuláře Vámi vybranému inzerentovi a zpětného kontaktování mé osoby. Osobní údaje bude správce zpracovávat manuálně i automaticky přímo prostřednictvím svých zaměstnanců. Informace předané tímto formulářem budou uloženy v databázi správce maximálně po dobu 10 let. Odvolání souhlasu s uložením a zpracováním poskytnutých dat lze e-mailem na info@videobydleni.cz. V případě podezření na neoprávněné použití Vámi poskytnutých údajů máte právo předat podnět k šetření Úřadu pro ochranu osobních údajů. Více informací
Chystáte se prodat nemovitost?
Pomůžeme Vám!

Inzerát si prohlédlo 1 lidí

Prodejce

Cakl Marek

Cakl Marek

Hlídací pes

Chcete dostávat emailem podobné nabídky pronájmu bytů 2+1 v Ostravě?

Podobné nemovitosti


Nevyhovuje Vám typ bytu? Podívejte se na jiné kategorie bytů.


Vybrané články z našeho blogu