Prodej rodinného domu, Starý Plzenec, Heydukova, 68 m2 (ID: 4229017)

Heydukova, Starý Plzenec

7 500 000 Kč HYPOTÉKA od 33 520 Kč /za měsíc

(včetně provize RK)

Prémioví partneři v Starém Plzenci

Stěhovací služby

Pojištění a finance

Informace k domu

Prodej rodinného domu s pozemkem 809 m², Heydukova ulice, Starý Plzenec

Hledáte místo pro výstavbu svého vysněného domova kousek od Plzně, ale s dostatkem klidu, zeleně a soukromí?
Pak vás zaujme tato nabídka pozemku se starším rodinným domem v původním stavu, který se nachází v oblíbené a klidné části Heydukovy ulice ve Starém Plzenci.
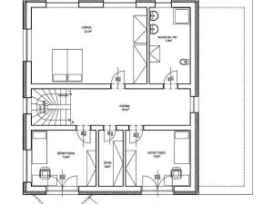
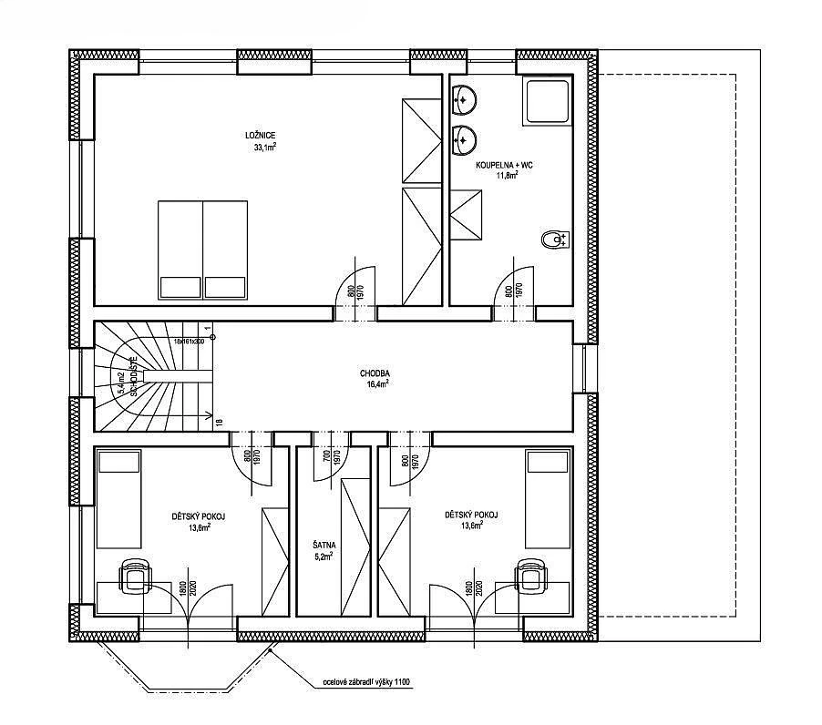
Součástí prodeje je přízemní rodinný dům o dispozici 2+kk, částečně podsklepený, s aktuální užitnou plochou 68 m². Objekt je určen ke kompletní rekonstrukci nebo demolici. Současní majitelé měli zpracovanou studii přestavby na moderní patrový dům 5+kk s dvojgaráží, která je k dispozici mezi fotografiemi – můžete ji využít jako inspiraci pro své vlastní bydlení.
Z technické infrastruktury je dům napojen na elektřinu, veřejný vodovod a kanalizaci. Plyn je veden v komunikaci před domem s možností připojení. Na pozemku se dále nachází zděná kolna.
Pozemek o velikosti 809 m² je rovinatý, slunný a velmi dobře přístupný. Zahrada s vzrostlými ovocnými stromy nabízí dostatek soukromí a příjemné prostředí pro odpočinek i rodinné zázemí.
Významnou výhodou této nabídky je možnost využití státních dotací na rekonstrukci domu (např. z programů typu Oprav dům po babičce, Nová zelená úsporám apod. ), které vám pomůžeme kompletně vyřídit na klíč – od návrhu až po schválení dotace.
Starý Plzenec nabízí kompletní občanskou vybavenost – školu, školku, obchody i restaurace. Výborné dopravní spojení do Plzně – autem cca 10 minut, k dispozici je i autobusová a vlaková doprava.
S vyřízením financování i dotačních programů vám rádi bezplatně pomůžeme.
Neváhejte a domluvte si prohlídku, ať můžete naplno využít potenciál tohoto klidného a krásného místa!

Parametry domu

Cena
7 500 000 Kč Spočítat hypotéku
Poznámka k ceně
včetně provize RK
Aktualizováno
24. 5. 2026
Adresa
Heydukova, Starý Plzenec
ID
969606
Stavba
Cihlová
Stav objektu
Před rekonstrukcí
Vybaveno
Ano
Druh objektu
Samostatný
Vlastnictví
Osobní
Užitná plocha
68 m2
Zastavěná plocha
74 m2
Plocha pozemku
809 m2
Třída energetické náročnosti
G - Mimořádně nehospodárná

Kontaktovat makléře

Máte zájem o tento dům?

Tímto, v souladu s nařízením Evropského parlamentu a Rady (EU) 2016/679, v platném znění, prohlašuji, že mi je alespoň 16 let a uděluji tak svůj souhlas se zpracováním zadaných údajů (jméno, telefon, e-mail, ip adresa) společnosti B3 Technology, s.r.o., IČ: 07330600, se sídlem Novostavby 126/23, 435 11 Lom (správce dat), za účelem předání dotazu z tohoto formuláře Vámi vybranému inzerentovi a zpětného kontaktování mé osoby. Osobní údaje bude správce zpracovávat manuálně i automaticky přímo prostřednictvím svých zaměstnanců. Informace předané tímto formulářem budou uloženy v databázi správce maximálně po dobu 10 let. Odvolání souhlasu s uložením a zpracováním poskytnutých dat lze e-mailem na info@videobydleni.cz. V případě podezření na neoprávněné použití Vámi poskytnutých údajů máte právo předat podnět k šetření Úřadu pro ochranu osobních údajů. Více informací
Chystáte se prodat nemovitost?
Pomůžeme Vám!
Theleadway banner

Inzerát si prohlédlo 7 lidí

Prodejce

Bc. Jan Měsíček

Bc. Jan Měsíček

Hlídací pes

Chcete dostávat emailem podobné nabídky prodeje rodinných domů v Starém Plzenci?

Top nabídky

Podobné nemovitosti


Nevyhovuje Vám typ domu? Podívejte se na jiné kategorie domů.


Vybrané články z našeho blogu