Soccer reality

Prodej činžovního domu, Brandýs nad Labem-Stará Boleslav, Lipová, 600 m2

Lipová, Brandýs nad Labem-Stará Boleslav

24 490 000 Kč /za nemovitost HYPOTÉKA od 109 455 Kč /za měsíc

(+ provize)

Prémioví partneři v Brandýse nad Labem

Pojištění a finance

Informace k nemovitosti

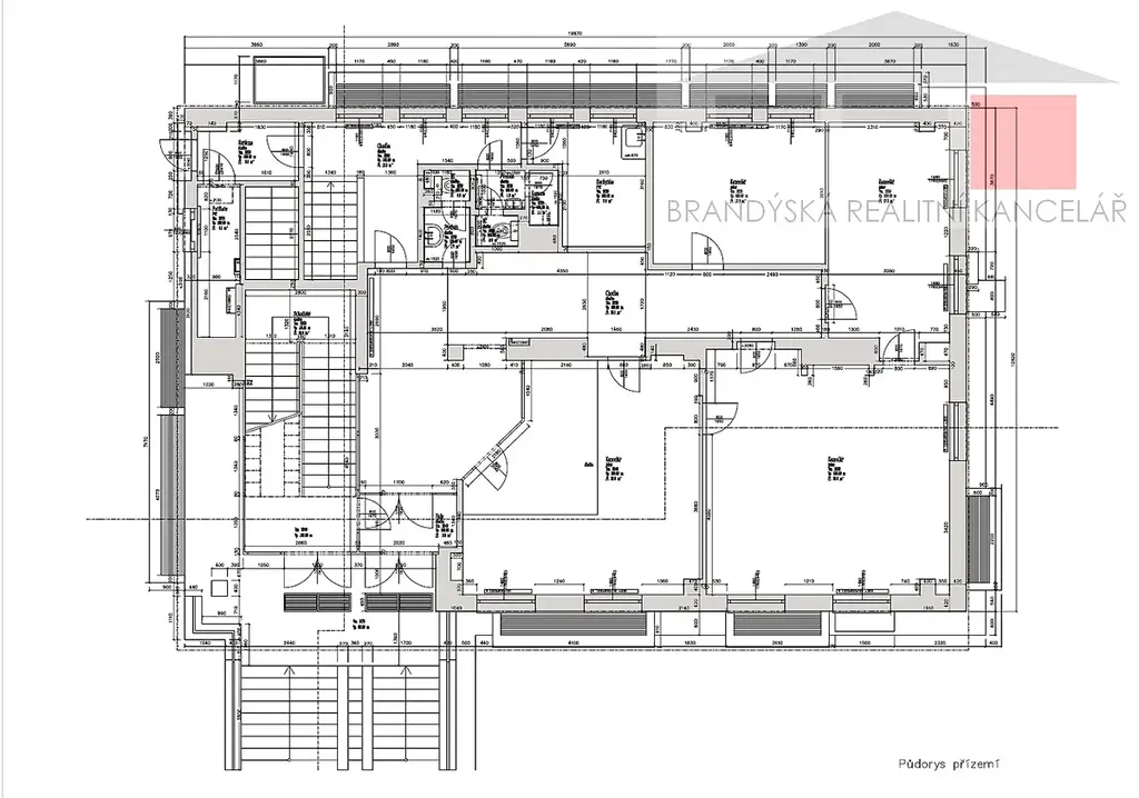
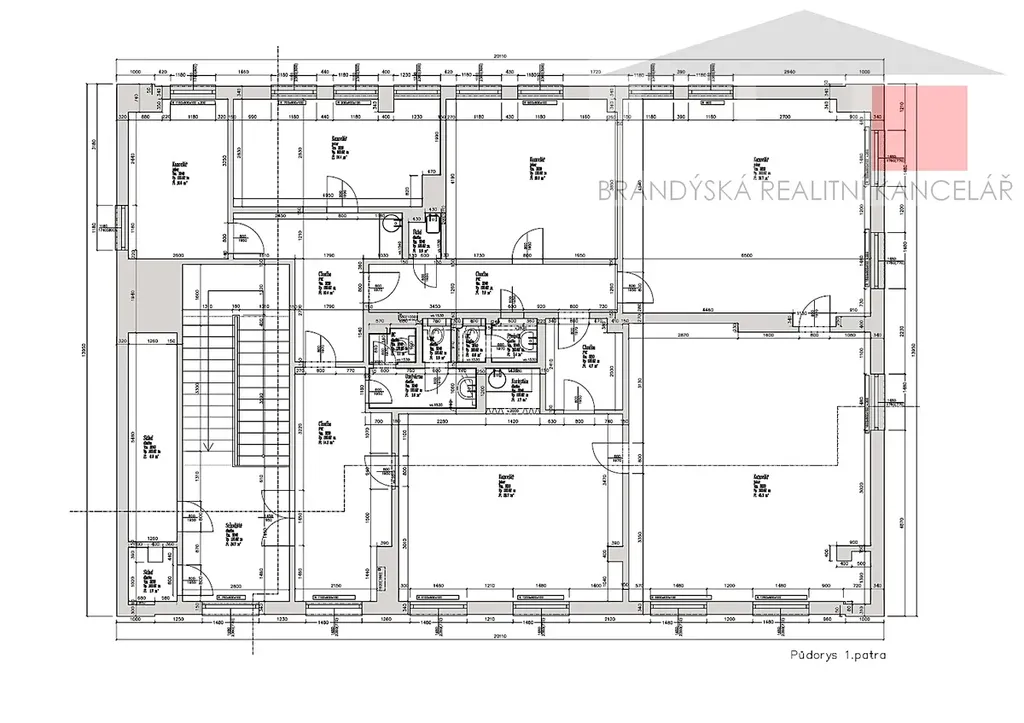
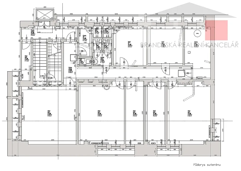
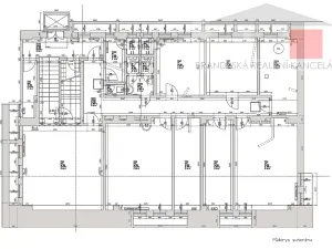
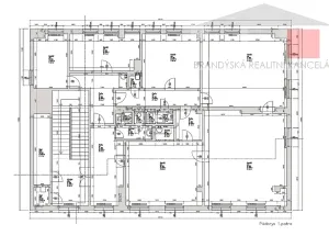
Nabízíme prodej multifunkčního objektu v centru Brandýsa nad Labem – ulice Lipová. Stavba je součástí pozemku o celkové výměře 477m2, sestává se ze dvou nadzemních a jednoho podzemního podlaží. Zastavěná plocha 240m2, celková užitná plocha ve všech podlažích je cca 600m2. Aktuálně je objekt využíván ke komerčním účelům. Z hlediska územního plánu je budova situována v ploše SM (území smíšené obytné – městské), hlavní je využití pro bydlení zejména v bytových domech, veřejnou vybavenost a služby. V minulosti proběhla výměna oken za plastová, jednotlivé komerční prostory byly průběžně udržovány, ale celkově je objekt bez zásadních rekonstrukcí. Vytápění je řešeno dálkovým teplem, dále je nemovitost napojena na vodovod, kanalizaci, elektřinu a optický internet. Na LV je evidováno VB ve prospěch ČEZ Distribuce, a.s., PENB „G“ – 173kWh/(m2*rok) dle vyhlášky č. 264/2020 Sb. Objekt je aktuálně kompletně pronajat více nájemcům, a to včetně suterénu, kde je taneční studio (viz.foto). Více informací v RK.

Parametry nemovitosti

Cena
24 490 000 Kč /za nemovitost Spočítat hypotéku
Poznámka k ceně
+ provize
Aktualizováno
24. 5. 2026
Adresa
Lipová, Brandýs nad Labem-Stará Boleslav
ID
NP10252
Stavba
Panelová
Stav objektu
Dobrý
Užitná plocha
600 m2
Třída energetické náročnosti
G - Mimořádně nehospodárná
Ukazatel energetické náročnosti
173 kWh/m2 za rok

Kontaktovat makléře

Realitní kancelář

Brandýská realitní kancelář

Lipová 1785, Brandýs nad Labem-Stará Boleslav

Chystáte se prodat nemovitost?
Pomůžeme Vám!

Máte zájem o tuto nemovistost?

Tímto, v souladu s nařízením Evropského parlamentu a Rady (EU) 2016/679, v platném znění, prohlašuji, že mi je alespoň 16 let a uděluji tak svůj souhlas se zpracováním zadaných údajů (jméno, telefon, e-mail, ip adresa) společnosti B3 Technology, s.r.o., IČ: 07330600, se sídlem Novostavby 126/23, 435 11 Lom (správce dat), za účelem předání dotazu z tohoto formuláře Vámi vybranému inzerentovi a zpětného kontaktování mé osoby. Osobní údaje bude správce zpracovávat manuálně i automaticky přímo prostřednictvím svých zaměstnanců. Informace předané tímto formulářem budou uloženy v databázi správce maximálně po dobu 10 let. Odvolání souhlasu s uložením a zpracováním poskytnutých dat lze e-mailem na info@videobydleni.cz. V případě podezření na neoprávněné použití Vámi poskytnutých údajů máte právo předat podnět k šetření Úřadu pro ochranu osobních údajů. Více informací
Chystáte se prodat nemovitost?
Pomůžeme Vám!
Theleadway banner

Inzerát si prohlédlo 29 lidí

Prodejce

Ing. Martin Středa

Ing. Martin Středa

Hlídací pes

Chcete dostávat emailem podobné nabídky prodeje činžovních domů v Brandýse nad Labem?

Podobné nemovitosti


Nevyhovuje Vám typ nemovitosti? Podívejte se na jiné kategorie komerčních.


Vybrané články z našeho blogu