Prodej bytu 3+1, Kopřivnice, Družební, 60 m2

Družební, Kopřivnice, okres nový jičín

2 999 000 Kč /za nemovitost HYPOTÉKA od 13 404 Kč /za měsíc
Prémioví partneři v Kopřivnici

Informace k bytu

Dovolujeme si Vám touto cestou nabídnout zprostředkování prodeje bytové jednotky s lodžií, situované v Kopřivnice, ulice Družební.

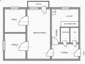
Jedná se konkrétně o byt o dispozici 3+1 a podlahové výměře 63 m2 (výměra zahrnuje lodžii a sklep), který se nachází v 8. patře zrekonstruovaného panelového domu s výtahem. Byt je určen k rekonstrukci.

Po příchodu do bytu se ocitneme v prostorné předsíni z níž je přístupné solitární WC, koupelna, komora, kuchyně a obývací pokoj. Z obývacího pokoje je možné vstoupit do dvou ložnic a do lodžie.

Byt je velmi světlý a teplý, jedná se tedy o velice příjemné bydlení. Navíc je zde unikátní výhled na místní krajinu.

Dům, kde se byt nachází je spravován velmi dobře fungujícím společenstvím vlastníků, v domě je obecně velmi čisto a klid.

Lokalita je charakteristická veškerou občanskou vybaveností a perfektní dopravní dostupností.

Pro více informací se neváhejte obrátit na realitní kancelář…

Parametry bytu

Cena
2 999 000 Kč /za nemovitost Spočítat hypotéku
Aktualizováno
8. 4. 2026
Adresa
Družební, Kopřivnice, okres nový jičín
ID
978989
Stavba
Panelová
Stav objektu
Dobrý
Patro
9. z 10
Vybaveno
Ne
Vlastnictví
Osobní
Užitná plocha
60 m2
Podlahová plocha
63 m2
Třída energetické náročnosti
B - Velmi úsporná
Elektřina
230V
Topení
Ústřední dálkové
Telekomunikace
Internet
Doprava
Vlak, Silnice, MHD
Voda
Vodovod
Balkon
Sklep
Výtah

Kontaktovat makléře

Realitní kancelář

Logo ERA Estate A. Legal s.r.o.

ERA Estate A. Legal s.r.o.

U Rajské zahrady 1912/3, Praha, Žižkov

Chystáte se prodat nemovitost?
Pomůžeme Vám!

Máte zájem o tento byt?

Tímto, v souladu s nařízením Evropského parlamentu a Rady (EU) 2016/679, v platném znění, prohlašuji, že mi je alespoň 16 let a uděluji tak svůj souhlas se zpracováním zadaných údajů (jméno, telefon, e-mail, ip adresa) společnosti B3 Technology, s.r.o., IČ: 07330600, se sídlem Novostavby 126/23, 435 11 Lom (správce dat), za účelem předání dotazu z tohoto formuláře Vámi vybranému inzerentovi a zpětného kontaktování mé osoby. Osobní údaje bude správce zpracovávat manuálně i automaticky přímo prostřednictvím svých zaměstnanců. Informace předané tímto formulářem budou uloženy v databázi správce maximálně po dobu 10 let. Odvolání souhlasu s uložením a zpracováním poskytnutých dat lze e-mailem na info@videobydleni.cz. V případě podezření na neoprávněné použití Vámi poskytnutých údajů máte právo předat podnět k šetření Úřadu pro ochranu osobních údajů. Více informací
Chystáte se prodat nemovitost?
Pomůžeme Vám!

Inzerát si prohlédlo 0 lidí

Prodejce

Mgr. Daniel Móro

Mgr. Daniel Móro

Hlídací pes

Chcete dostávat emailem podobné nabídky prodeje bytů 3+1 v Kopřivnici?

Podobné nemovitosti


Nevyhovuje Vám typ bytu? Podívejte se na jiné kategorie bytů.


Vybrané články z našeho blogu