Prodej zemědělské usedlosti, Rudník, 380 m2

Rudník

8 490 000 Kč /za nemovitost HYPOTÉKA od 37 945 Kč /za měsíc
Prémioví partneři v Rudníku

Pojištění a finance

Informace k domu

Prodej zemědělské usedlosti, Rudník, ul. Rudník

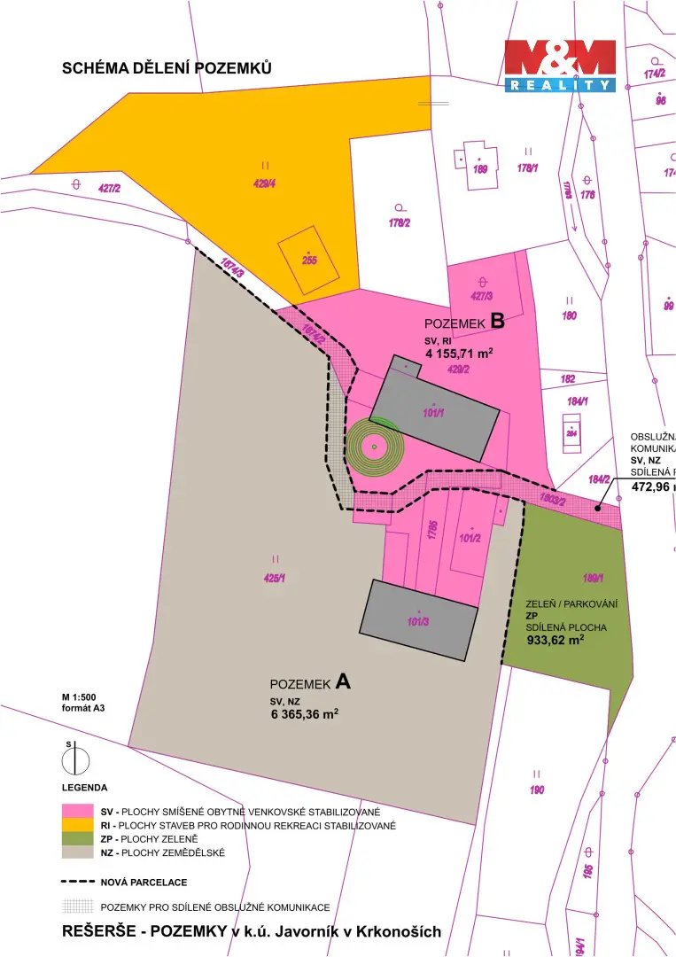
Ve výhradním zastoupení vám nabízíme bývalou zemědělskou usedlost, později penzion, nacházející se v klidné okrajové části obce Javorník v Krkonoších.
Nemovitost je ve stavu před rekonstrukcí, což novému majiteli umožňuje přizpůsobit celý objekt vlastním představám. Součástí prodeje je také projektová dokumentace na přestavbu objektu za účelem vybudování moderního rekreačního zařízení.
Stávající dispozice zahrnuje ubytovací část doplněnou o navazující objekty, ve kterých se nacházejí další dva rozestavěné apartmány a jeden nedokončený dům. Velkou předností je rozsáhlý pozemek o celkové výměře 11 591 m², který nabízí široké možnosti využití – od rozparcelování, až po menší rezidenční projekt.
Klidná poloha na okraji obce poskytuje dostatek soukromí a prostoru, zároveň však zůstává dobře dostupná. Kompletní občanská vybavenost je v nedalekém Trutnově (15 km). Pro více informací a domluvení prohlídky kontaktujte makléře.

Parametry domu

Cena
8 490 000 Kč /za nemovitost Spočítat hypotéku
Aktualizováno
19. 5. 2026
Adresa
Rudník
ID
938385
Stavba
Cihlová
Stav objektu
Před rekonstrukcí
Vybaveno
Ne
Druh objektu
Samostatný
Lokalita objektu
Okraj obce
Vlastnictví
Osobní
Užitná plocha
380 m2
Plocha pozemku
11591 m2

Kontaktovat makléře

Realitní kancelář

Logo M&M reality

M&M reality

ulice Krakovská 583/9, Praha

Chystáte se prodat nemovitost?
Pomůžeme Vám!

Máte zájem o tento dům?

Tímto, v souladu s nařízením Evropského parlamentu a Rady (EU) 2016/679, v platném znění, prohlašuji, že mi je alespoň 16 let a uděluji tak svůj souhlas se zpracováním zadaných údajů (jméno, telefon, e-mail, ip adresa) společnosti B3 Technology, s.r.o., IČ: 07330600, se sídlem Novostavby 126/23, 435 11 Lom (správce dat), za účelem předání dotazu z tohoto formuláře Vámi vybranému inzerentovi a zpětného kontaktování mé osoby. Osobní údaje bude správce zpracovávat manuálně i automaticky přímo prostřednictvím svých zaměstnanců. Informace předané tímto formulářem budou uloženy v databázi správce maximálně po dobu 10 let. Odvolání souhlasu s uložením a zpracováním poskytnutých dat lze e-mailem na info@videobydleni.cz. V případě podezření na neoprávněné použití Vámi poskytnutých údajů máte právo předat podnět k šetření Úřadu pro ochranu osobních údajů. Více informací
Chystáte se prodat nemovitost?
Pomůžeme Vám!
Theleadway banner

Inzerát si prohlédlo 8 lidí

Prodejce

Michal Mzyk

Michal Mzyk

Hlídací pes

Chcete dostávat emailem podobné nabídky prodeje zemědělských usedlostí v Rudníku?

Top nabídky

Podobné nemovitosti


Nevyhovuje Vám typ domu? Podívejte se na jiné kategorie domů.


Vybrané články z našeho blogu