Prodej bytu 4+kk, Bad Kleinkirchheim, Rakousko, Maibrunnenweg, 83 m2 (ID: 4231825)

Maibrunnenweg, Bad Kleinkirchheim

Rezervováno
310 000 € /za nemovitost
Prémioví partneři

Informace k bytu

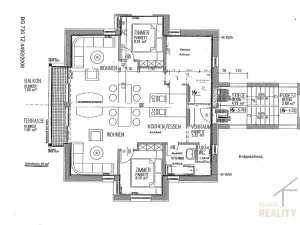
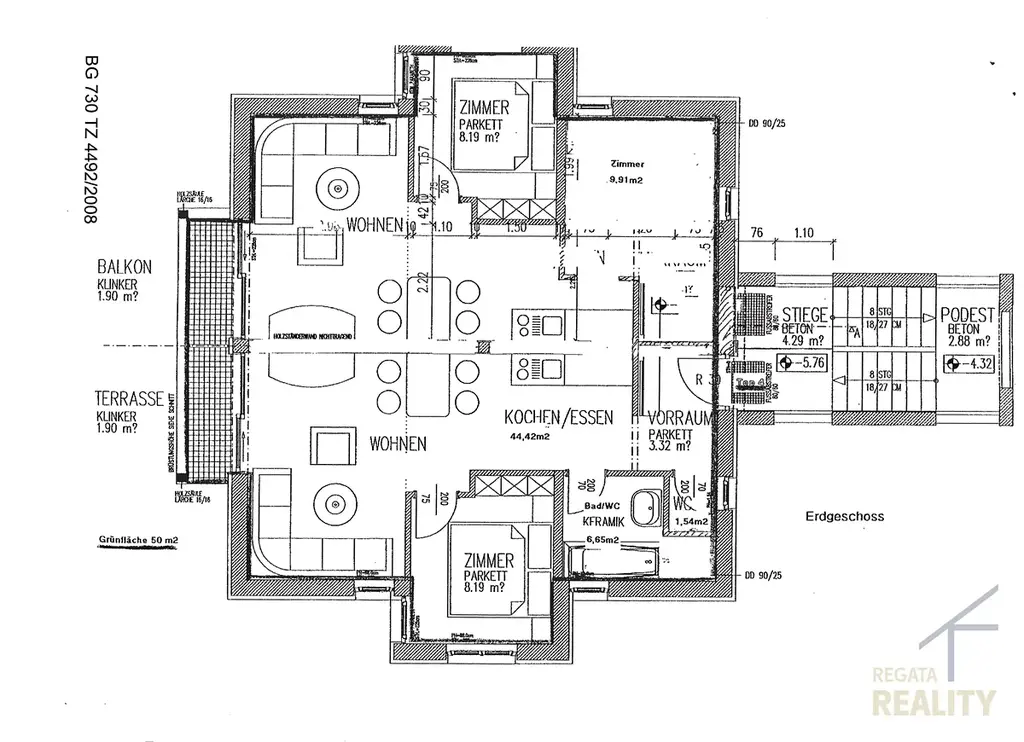
Nabízíme k prodeji prostorný a prosvětlený byt se třemi ložnicemi, velkým obývákem s kuchyní za skvělou cenu.
Apartmán se skládá ze vstupní haly, velmi velkého obývacího pokoje s přístupem na terasu a balkon, 3 ložnic, koupelny s vanou, sprchovým koutem a toaletou, samostatné toalety a sklepa. V apartmánu lze pohodlně ubytovat až 8 osob. K dispozici je také lyžárna a společná prádelna.

Tento čtyřpatrový bytový dům se nachází v Bad Kleinkirchheimu, v blízkosti sjezdovek (příjezd po lyžích) nedaleko centra města, termálních lázní a základních služeb, jako je turistická kancelář, restaurace, bary, pekárny a obchody. Nachází se v přízemí dobře udržovaného bytového domu v obzvláště klidné lokalitě a disponuje také terasou, balkonem a velkou exkluzivní zahradou.
Díky své strategické poloze a dostupnosti jej lze pronajímat k turistickým účelům s velmi dobrým ziskem, zejména v zimním období.

Poznámka RK: V Rakousku hradí kupující provizi realitní kanceláři dle zákona 3,6%, plus daň z nabytí nemovitosti 3,5% a poplatek za zápis do KN 1,1%.
Právní a notářské služby se hradí zvlášť. Celkové další výdaje tvoří dohromady cca 10-12% z kupní ceny.

V případě zájmu o prohlídku nás neváhejte kontaktovat. Těšíme se na Vaši zprávu či telefonát.

Parametry bytu

Stav
Rezervováno
Cena
310 000 € /za nemovitost
Aktualizováno
8. 4. 2026
Adresa
Maibrunnenweg, Bad Kleinkirchheim
ID
0193
Stavba
Cihlová
Stav objektu
Velmi dobrý
Patro
2. z 4
Vybaveno
Ano
Lokalita objektu
Klidná část obce
Vlastnictví
Osobní
Užitná plocha
83 m2
Plocha zahrady
50 m2
Třída energetické náročnosti
D - Méně úsporná
Elektřina
230V
Odpad
Veřejná kanalizace
Komunikace
Asfaltová
Voda
Vodovod
Topné těleso
Radiátory
Zdroj topení
Ústřední dálkové
Sklep
Terasa
Parkování

Kontaktovat makléře

Máte zájem o tento byt?

Tímto, v souladu s nařízením Evropského parlamentu a Rady (EU) 2016/679, v platném znění, prohlašuji, že mi je alespoň 16 let a uděluji tak svůj souhlas se zpracováním zadaných údajů (jméno, telefon, e-mail, ip adresa) společnosti B3 Technology, s.r.o., IČ: 07330600, se sídlem Novostavby 126/23, 435 11 Lom (správce dat), za účelem předání dotazu z tohoto formuláře Vámi vybranému inzerentovi a zpětného kontaktování mé osoby. Osobní údaje bude správce zpracovávat manuálně i automaticky přímo prostřednictvím svých zaměstnanců. Informace předané tímto formulářem budou uloženy v databázi správce maximálně po dobu 10 let. Odvolání souhlasu s uložením a zpracováním poskytnutých dat lze e-mailem na info@videobydleni.cz. V případě podezření na neoprávněné použití Vámi poskytnutých údajů máte právo předat podnět k šetření Úřadu pro ochranu osobních údajů. Více informací
Chystáte se prodat nemovitost?
Pomůžeme Vám!

Inzerát si prohlédlo 1 lidí

Prodejce

Ing. Dušan Macháček

Ing. Dušan Macháček

Hlídací pes

Chcete dostávat emailem podobné nabídky prodeje bytů 4+kk?

Podobné nemovitosti


Nevyhovuje Vám typ bytu? Podívejte se na jiné kategorie bytů.


Vybrané články z našeho blogu