Prodej vícegeneračního domu, Praha - Záběhlice, Střemchová, 348 m2 (ID: 4232367)

Střemchová, Praha, Záběhlice

24 990 000 Kč /za nemovitost HYPOTÉKA od 111 690 Kč /za měsíc
Prémioví partneři v Praze 10

Stěhovací služby

Výkup a prodej starého nábytku

Informace k domu

  V pražských Záběhlicích, v klidné, jednosměrné ulici Střemchová, se nachází prostorný, vícegenerační rodinný dům, který je nyní k prodeji. Nabízí krásný, nově vestavěný byt 3+kk v podkroví a další dvě obytná podlaží a sklepní prostory. Tato nemovitost vás osloví nejen svou velikostí a variabilitou pro vaši velkou rodinu, ale i výbornou polohou v blízkosti veškeré občanské vybavenosti a skvělým spojením do centra Prahy. Dům je umístěn na pozemku o celkové ploše 576 m² a nabízí čtyři podlaží – tři nadzemní a jedno podzemní. Celková užitná plocha činí 348 m².



       Nezapomeňte se podívat nejen na fotky, ale i na videoprohlídku a 3D scan domu, ve kterém si nemovitost můžete projít z pohodlí vašeho domova jako byste v ní stáli. (mezi podkrovím a dalšími podlažími v 3Ds canu projdete klikutím na domeček u východu z podkroví). Uděláte si tak jasnou představu, zda Vám vyhovuje. Vše najdete mezi fotkami pod logem videa a 3D scanu nebo se podívejte na mé webové stránky, které najdete dole ve vizitce u mé fotky. Tam je vše krásně přehledně připravené k prohlédnutí.

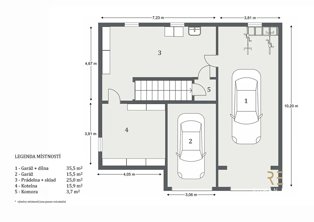
      Podzemní podlaží (96) m² tvoří jedna samostatná garáž, jedna dvojgaráž a dvě velké místnosti. Můžete zde parkovat až tři automobily, motorky, může zde mít dílnu a samozřejmě skladovací prostory pro Vaše sportovní náčiní.  Nachází se zde také plynový kotel, který dům vytápí. 

       První nadzemní podlaží (92 m²) disponuje prostorným obývacím pokojem s krbem propojeným s kuchyní a vstupem na balkon. Dále se zde nachází koupelna, samostatné WC a praktická spíž. Toto patro je v původním stavu s plastovými okny. Je zde nutná rekonstrukce koupelny a wc a podlah. 

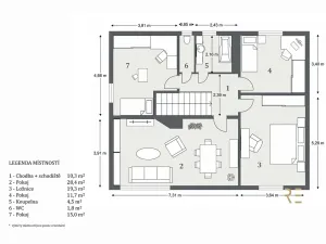
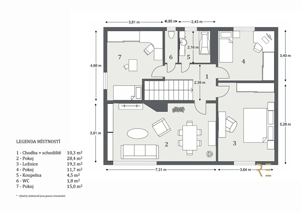
      Druhé nadzemní podlaží (91 m²)je aktuálně propojeno s prvním podlažím a nabízí čtyři neprůchozí pokoje, koupelnu a WC. Tato dvě podlaží dohromady vytvářejí velkorysé rodinné bydlení s dostatkem prostoru i pro početnější rodinu. Toto patro je v původním stavu s plastovými okny. Je zde nutná rekonstrukce koupelny a wc a podlah.

       Třetí nadzemní podlaží (70 m²)  představuje samostatnou bytovou jednotku 3+kk s útulnou teráskou. Tento byt je nově vybudovaný a připravený k okamžitému nastěhování. Skládá se z nové věstavené kuchynské linky se všemi spotřebiči v obývací místnosti, díle z ložnice, pracovny, koupleny se sprchovým koutem a wc, a dvou komor. Vstup do tohoto podkrovního bytu je přes venkovní schodiště ze zahrady. Je tedy na spodních podlaží naprosto nezávislý. Je zde také příprava na klimatizaci. Vytápěn je plynovým kotlem.


       Zahrada je kolem celého domu. Nachází se na ní ještě malá stavba, skládek napříkald na sekačku a pod ní sklípek. Dále jsou zde keře malin, rybízu a jeden vzrostlý ořech. Na zahradu je i brána pro vjezd auta. Můžete zde tedy také parkovat a nezajíždět do garáže.

      Lokalita Záběhlic patří mezi vyhledávané rezidenční části Prahy. V docházkové vzdálenosti se nachází škola, školka, poliklinika, obchody i zastávka autobusu. Nedaleká železniční stanice umožňuje dostat se na Hl...

Parametry domu

Cena
24 990 000 Kč /za nemovitost Spočítat hypotéku
Aktualizováno
16. 4. 2026
Adresa
Střemchová, Praha, Záběhlice
ID
966458
Stavba
Cihlová
Stav objektu
Velmi dobrý
Vybaveno
Částečně
Druh objektu
Samostatný
Užitná plocha
348 m2
Zastavěná plocha
129 m2
Podlahová plocha
348 m2
Plocha pozemku
576 m2
Plocha zahrady
447 m2
Třída energetické náročnosti
G - Mimořádně nehospodárná
Elektřina
230V
Plyn
Plynovod
Odpad
Veřejná kanalizace
Telekomunikace
Kabelová televize
Doprava
Vlak, Silnice, MHD
Voda
Vodovod
Topné těleso
Kotel na tuhá paliva
Zdroj topení
Plynový kotel
Garáž
Sklep
Parkování

Kontaktovat makléře

Realitní kancelář

Eder Reality

Pobřežní 249/46, Praha

Chystáte se prodat nemovitost?
Pomůžeme Vám!

Máte zájem o tento dům?

Tímto, v souladu s nařízením Evropského parlamentu a Rady (EU) 2016/679, v platném znění, prohlašuji, že mi je alespoň 16 let a uděluji tak svůj souhlas se zpracováním zadaných údajů (jméno, telefon, e-mail, ip adresa) společnosti B3 Technology, s.r.o., IČ: 07330600, se sídlem Novostavby 126/23, 435 11 Lom (správce dat), za účelem předání dotazu z tohoto formuláře Vámi vybranému inzerentovi a zpětného kontaktování mé osoby. Osobní údaje bude správce zpracovávat manuálně i automaticky přímo prostřednictvím svých zaměstnanců. Informace předané tímto formulářem budou uloženy v databázi správce maximálně po dobu 10 let. Odvolání souhlasu s uložením a zpracováním poskytnutých dat lze e-mailem na info@videobydleni.cz. V případě podezření na neoprávněné použití Vámi poskytnutých údajů máte právo předat podnět k šetření Úřadu pro ochranu osobních údajů. Více informací
Chystáte se prodat nemovitost?
Pomůžeme Vám!

Inzerát si prohlédlo 3 lidí

Prodejce

Roman Eder

Roman Eder

Hlídací pes

Chcete dostávat emailem podobné nabídky prodeje vícegeneračních domů v Praze 10?

Podobné nemovitosti


Nevyhovuje Vám typ domu? Podívejte se na jiné kategorie domů.


Vybrané články z našeho blogu