Prodej rodinného domu, Praha - Košíře, Holečkova, 76 m2 (ID: 4232494)

Holečkova, Praha, Košíře

19 500 000 Kč /za nemovitost HYPOTÉKA od 87 153 Kč /za měsíc
Prémioví partneři v Praze 5

Stěhovací služby

Výkup a prodej starého nábytku

Informace k domu

Rodinný dům ve vnitrobloku s Garáží a sklepní kójí!
Prodej jedinečného rodinného domu 3+kk s terasou a zahradou – Holečkova 800, Praha 5 – Smíchov

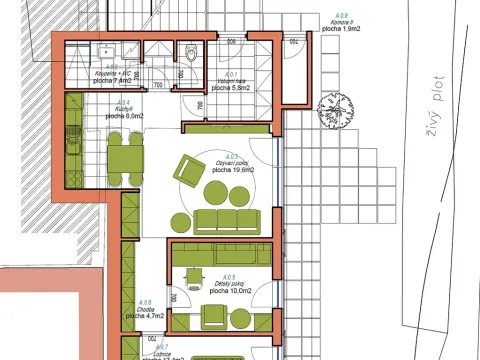
Nabízíme k prodeji výjimečný rodinný dům o dispozici 3+kk s terasou a vlastní zahrádkou, situovaný ve vnitrobloku domu v prestižní ulici Holečkova na Smíchově. K domu také náleží prostorná garáž, v docházkové vzdálenosti cca 2min.

Jedná se o naprosto unikátní spojení klidného bydlení v rodinném domě a komfortu centra města. Dům je umístěn mimo ruch hlavní ulice, v tichém a soukromém prostředí vnitrobloku, což zajišťuje maximální klid a soukromí.

Hlavní přednosti nemovitosti:
-novostavba kolaudovaná v tomto roce 2026
-dispozice 3+kk
-terasa navazující na obytný prostor
-vlastní zahrádka
-zelená střecha
-rodinný dům v centru Prahy
-soukromí a klid vnitrobloku
-atraktivní lokalita Praha 5 – Smíchov
-podlahové vytápění všech místností
-vlastní elektrokotel
-koncové prvky Hansgrohe

Projekt nabízí moderní městské bydlení s atmosférou rodinného domu. Otevřený obývací prostor s kuchyňským koutem přirozeně propojuje interiér s venkovní terasou a zahradou, která poskytuje ideální místo pro relaxaci, grilování či posezení s přáteli.

Lokalita Smíchov patří dlouhodobě mezi nejvyhledávanější části Prahy díky kompletní občanské vybavenosti, výborné dopravní dostupnosti (MHD, metro Anděl), blízkosti parků i centra města.

Tato nemovitost je ideální volbou pro ty, kteří chtějí bydlet v rodinném domě, ale zároveň nechtějí opustit centrum Prahy. Může být také zajímavou investiční příležitostí.

Pro více informací a sjednání prohlídky nás neváhejte kontaktovat.

Parametry domu

Cena
19 500 000 Kč /za nemovitost Spočítat hypotéku
Aktualizováno
8. 4. 2026
Adresa
Holečkova, Praha, Košíře
Stavba
Cihlová
Stav objektu
Velmi dobrý
Užitná plocha
76 m2
Plocha pozemku
140 m2
Garáž
Sklep

Kontaktovat makléře

Máte zájem o tento dům?

Tímto, v souladu s nařízením Evropského parlamentu a Rady (EU) 2016/679, v platném znění, prohlašuji, že mi je alespoň 16 let a uděluji tak svůj souhlas se zpracováním zadaných údajů (jméno, telefon, e-mail, ip adresa) společnosti B3 Technology, s.r.o., IČ: 07330600, se sídlem Novostavby 126/23, 435 11 Lom (správce dat), za účelem předání dotazu z tohoto formuláře Vámi vybranému inzerentovi a zpětného kontaktování mé osoby. Osobní údaje bude správce zpracovávat manuálně i automaticky přímo prostřednictvím svých zaměstnanců. Informace předané tímto formulářem budou uloženy v databázi správce maximálně po dobu 10 let. Odvolání souhlasu s uložením a zpracováním poskytnutých dat lze e-mailem na info@videobydleni.cz. V případě podezření na neoprávněné použití Vámi poskytnutých údajů máte právo předat podnět k šetření Úřadu pro ochranu osobních údajů. Více informací
Chystáte se prodat nemovitost?
Pomůžeme Vám!

Inzerát si prohlédlo 1 lidí

Prodejce

Ing. Lenka Mixová

Ing. Lenka Mixová

Hlídací pes

Chcete dostávat emailem podobné nabídky prodeje rodinných domů v Praze 5?

Podobné nemovitosti


Nevyhovuje Vám typ domu? Podívejte se na jiné kategorie domů.


Vybrané články z našeho blogu