Pronájem bytu 2+kk, Hradec Králové, třída Karla IV., 70 m2 (ID: 4232652)

třída Karla IV., Hradec Králové

18 500 Kč /za měsíc Získejte výhodnou HYPOTÉKU
Prémioví partneři v Hradci Králové

Informace k bytu

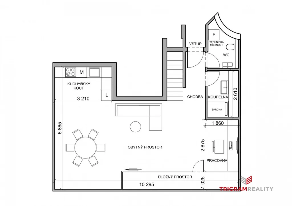
Jedinečný mezonetový byt 2+kk až 70 m² v centru HK

Ráda Vám zprostředkuji pronájem jedinečného půdního mezonetového bytu 2+kk o velikosti až 70m² v klidné části, a zároveň v bezprostřední blízkosti centra Hradce Králové.

Byt se nachází přímo u náměstí 5. května a nábřeží řeky Labe, s výhledem na staré město.
Je prostorný, světlý a velmi klidný.
Kuchyňská linka je vybavena vestavěnými spotřebiči značky Philco (lednice s mrazákem, myčka nádobí, sklokeramická varná deska, trouba a digestoř). K dispozici je i pračka.
Ve 2. patře mezonetu se nachází ložnice s klimatizací a prostory pro šatnu. V bytě je aktuálně několik menších úložných prostor na míru.
K dispozici je i úložný prostor ve sklepě.

Veškerá občanská vybavenost - MHD, obchody, společenské vyžití, restaurace i možnosti pohodlného parkování, se nachází v těsné blízkosti domu.

Nájem činí 18.500,- Kč / měsíčně + zálohy na spotřebované energie ve výši 4.500,- Kč pro 2 osoby (obsahuje el. energie, vodu, topení, úklid společných prostor v domě, a připojení internetu přes optický kabel).
Vratná kauce ve výši 25.000,- Kč, poplatek za zprostředkování ve výši 18.000,- Kč.

Byt bude volný od května 2026 a je určený k dlouhodobému nájmu.

Parametry bytu

Cena
18 500 Kč /za měsíc
Aktualizováno
9. 4. 2026
Adresa
třída Karla IV., Hradec Králové
ID
N718
Stavba
Cihlová
Stav objektu
Po rekonstrukci
Lokalita objektu
Centrum obce
Vlastnictví
Osobní
Užitná plocha
70 m2
Třída energetické náročnosti
C - Úsporná

Kontaktovat makléře

Realitní kancelář

Trigramreality s.r.o.

Milady Horákové 1738/7, Hradec Králové

Chystáte se prodat nemovitost?
Pomůžeme Vám!

Máte zájem o tento byt?

Tímto, v souladu s nařízením Evropského parlamentu a Rady (EU) 2016/679, v platném znění, prohlašuji, že mi je alespoň 16 let a uděluji tak svůj souhlas se zpracováním zadaných údajů (jméno, telefon, e-mail, ip adresa) společnosti B3 Technology, s.r.o., IČ: 07330600, se sídlem Novostavby 126/23, 435 11 Lom (správce dat), za účelem předání dotazu z tohoto formuláře Vámi vybranému inzerentovi a zpětného kontaktování mé osoby. Osobní údaje bude správce zpracovávat manuálně i automaticky přímo prostřednictvím svých zaměstnanců. Informace předané tímto formulářem budou uloženy v databázi správce maximálně po dobu 10 let. Odvolání souhlasu s uložením a zpracováním poskytnutých dat lze e-mailem na info@videobydleni.cz. V případě podezření na neoprávněné použití Vámi poskytnutých údajů máte právo předat podnět k šetření Úřadu pro ochranu osobních údajů. Více informací
Chystáte se prodat nemovitost?
Pomůžeme Vám!

Inzerát si prohlédlo 0 lidí

Prodejce

Helena Peřinová, MBA

Helena Peřinová, MBA

Hlídací pes

Chcete dostávat emailem podobné nabídky pronájmu bytů 2+kk v Hradci Králové?

Podobné nemovitosti


Nevyhovuje Vám typ bytu? Podívejte se na jiné kategorie bytů.


Vybrané články z našeho blogu