Prodej rodinného domu, Mnichovo Hradiště, Podolská, 117 m2 (ID: 4232874)

Podolská, Mnichovo Hradiště, Hněvousice

9 700 000 Kč /za nemovitost HYPOTÉKA od 43 353 Kč /za měsíc
Prémioví partneři v Mnichově Hradišti

Informace k domu

Hněvousice, prodej rodinného domu 5+kk 117 m2 na pozemku 601 m2

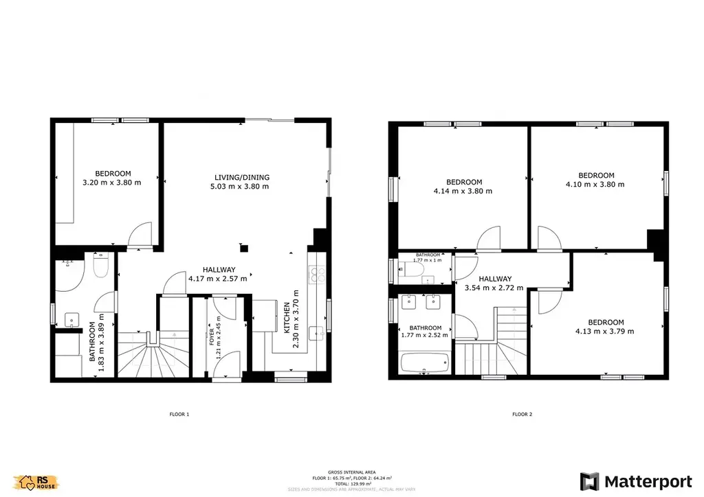
Je Vaším snem bydlet v novém a úsporném domě? Hledáte stavbu s nízkými měsíčními náklady? Pak pro Vás mám skvělou nabídku! Na prodej nabízím sedm let starý rodinný dům o dispozici 5+kk, nacházející se na okraji Mnichova Hradiště v oblíbené části Hněvousice. Tento dům typu KUBIS 74 od společnosti RD Rýmařov s.r.o. splní i náročnější představy o moderním bydlení. Jedná se o patrovou dřevostavbu se zastavěnou plochou 76 m2 a užitnou plochou 117 m2, postavenou na pozemku o výměře 601 m2.

V přízemí se nachází prostorný obývací pokoj propojený s kuchyňským koutem, ložnice, koupelna se sprchovým koutem a vstupní hala. V patře naleznete tři samostatné pokoje, toaletu a koupelnu s vanou.

Vytápění domu zajišťuje elektrokotel. Celkové měsíční zálohy pro 5-ti člennou rodinu činí za elektřinu 5.500 Kč, vodné a stočné vychází na 1.300 Kč měsíčně. V obývacím pokoji je navíc připraven komín pro případné připojení krbových kamen.

Na hranici pozemku je zaveden plyn. Dům je plně napojen na vodovod, kanalizaci, elektrickou síť i optický internet. K nemovitosti je k dispozici kompletní projektová dokumentace včetně průkazu energetické náročnosti budovy - PENB skupina B. Dům je vhodný k nastěhování jaro/léto 2026. Prohlídky probíhají jednou měsíčně.

Mnichovo Hradiště je město s přibližně 8 300 obyvateli, které se nachází v těsné blízkosti rychlostní komunikace R10. Výborná dostupnost je jak do Liberce (40 km), tak do Prahy (70 km). Město sousedí s automobilovým centrem Mladá Boleslav (14 km) a prochází jím železniční trať Praha Mladá Boleslav -Turnov.

V Mnichově Hradišti nechybí divadlo, kino, barokní zámek, veškeré potřebné úřady, školy, restaurace ani bohaté možnosti sportovního a rekreačního vyžití stadion, posilovna, tenisový areál, přírodní koupaliště, naučné stezky i lesoparky.

Dům se nachází v klidné, velmi příjemné a žádané lokalitě města v části Hněvousice. Nemovitost je nabízena k prodeji i případnému pronájmu. V případě dotazů, či zájmu o prohlídku mne neváhejte kontaktovat.

Parametry domu

Cena
9 700 000 Kč /za nemovitost Spočítat hypotéku
Aktualizováno
10. 4. 2026
Adresa
Podolská, Mnichovo Hradiště, Hněvousice
ID
000093
Stavba
Dřevěná
Stav objektu
Velmi dobrý
Vybaveno
Částečně
Druh objektu
Samostatný
Užitná plocha
117 m2
Zastavěná plocha
76 m2
Podlahová plocha
119 m2
Plocha pozemku
601 m2
Plocha zahrady
525 m2
Třída energetické náročnosti
B - Velmi úsporná
Elektřina
230V, 400V
Odpad
Veřejná kanalizace
Topení
Ústřední elektrické
Komunikace
Asfaltová
Telekomunikace
Internet
Doprava
Dálnice, Silnice, Autobus
Voda
Vodovod
Topné těleso
Radiátory
Zdroj topení
Elektrokotel
Bezbarierový přístup
Parkování

Kontaktovat makléře

Máte zájem o tento dům?

Tímto, v souladu s nařízením Evropského parlamentu a Rady (EU) 2016/679, v platném znění, prohlašuji, že mi je alespoň 16 let a uděluji tak svůj souhlas se zpracováním zadaných údajů (jméno, telefon, e-mail, ip adresa) společnosti B3 Technology, s.r.o., IČ: 07330600, se sídlem Novostavby 126/23, 435 11 Lom (správce dat), za účelem předání dotazu z tohoto formuláře Vámi vybranému inzerentovi a zpětného kontaktování mé osoby. Osobní údaje bude správce zpracovávat manuálně i automaticky přímo prostřednictvím svých zaměstnanců. Informace předané tímto formulářem budou uloženy v databázi správce maximálně po dobu 10 let. Odvolání souhlasu s uložením a zpracováním poskytnutých dat lze e-mailem na info@videobydleni.cz. V případě podezření na neoprávněné použití Vámi poskytnutých údajů máte právo předat podnět k šetření Úřadu pro ochranu osobních údajů. Více informací
Chystáte se prodat nemovitost?
Pomůžeme Vám!

Inzerát si prohlédlo 2 lidí

Prodejce

Alena  Šulcová

Alena Šulcová

Hlídací pes

Chcete dostávat emailem podobné nabídky prodeje rodinných domů v Mnichově Hradišti?

Podobné nemovitosti


Nevyhovuje Vám typ domu? Podívejte se na jiné kategorie domů.


Vybrané články z našeho blogu