Prodej obchodního prostoru, Bošice, 99 m2

Bošice

1 850 000 Kč /za nemovitost HYPOTÉKA od 8 268 Kč /za měsíc
Prémioví partneři v Bošicích

Výkup a prodej starého nábytku

Informace k nemovitosti

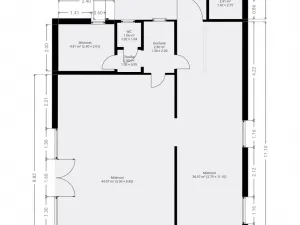
Nabízím prodej stavby občanské vybavenosti v obci Bošice. Jde o zděnou přízemní budovu z roku 1977 o podlahové ploše 99 m2 a zatravněný pozemek o výměře 177 m2. Dle územního plánu oba pozemky leží v oblasti zastavěné, SV - smíšené obytné venkovské. Tudíž je možné objekt předělat a rekolaudovat na objekt určený k bydlení. Budova je připojena na obecní vodovod a elektřinu. Odpad je sveden do vlastního biologického septiku (3m3) umístěném na vlastním pozemku. Objekt je vytápěn kotlem na tuhá paliva. Střešní krytina je plech, přes který je IPA. Okna jsou dřevěná původní. Stavba sloužila jako prodejna potravin, nyní jako dílna. Část stavby tvoří rampa a dlážděná plocha před domem. Celý objekt je oplocený. V domě je kuchyňka, WC, dále sklad, hlavní místnost a sklad za rampou. Strop je pevný (železobeton). Nejbližší občanská vybavenost je ve 4 km vzdálené Čkyni. V obci Bošice je obchod s potravinami a pohostinství. Více informací u makléřky.

Parametry nemovitosti

Cena
1 850 000 Kč /za nemovitost Spočítat hypotéku
Aktualizováno
23. 4. 2026
Adresa
Bošice
ID
44009
Stavba
Cihlová
Stav objektu
Dobrý
Vybaveno
Částečně
Typ objektu
Přízemní
Lokalita objektu
Centrum obce
Užitná plocha
99 m2
Zastavěná plocha
139 m2
Podlahová plocha
316 m2
Plocha zahrady
177 m2
Třída energetické náročnosti
G - Mimořádně nehospodárná
Elektřina
230V, 400V
Odpad
Septik
Komunikace
Asfaltová
Doprava
Silnice, Autobus
Voda
Vodovod
Převod do OV
Parkování

Kontaktovat makléře

Realitní kancelář

NEMO reality, s.r.o.

Kostelní náměstí 17, Prachatice I

Chystáte se prodat nemovitost?
Pomůžeme Vám!

Máte zájem o tuto nemovistost?

Tímto, v souladu s nařízením Evropského parlamentu a Rady (EU) 2016/679, v platném znění, prohlašuji, že mi je alespoň 16 let a uděluji tak svůj souhlas se zpracováním zadaných údajů (jméno, telefon, e-mail, ip adresa) společnosti B3 Technology, s.r.o., IČ: 07330600, se sídlem Novostavby 126/23, 435 11 Lom (správce dat), za účelem předání dotazu z tohoto formuláře Vámi vybranému inzerentovi a zpětného kontaktování mé osoby. Osobní údaje bude správce zpracovávat manuálně i automaticky přímo prostřednictvím svých zaměstnanců. Informace předané tímto formulářem budou uloženy v databázi správce maximálně po dobu 10 let. Odvolání souhlasu s uložením a zpracováním poskytnutých dat lze e-mailem na info@videobydleni.cz. V případě podezření na neoprávněné použití Vámi poskytnutých údajů máte právo předat podnět k šetření Úřadu pro ochranu osobních údajů. Více informací
Chystáte se prodat nemovitost?
Pomůžeme Vám!

Inzerát si prohlédlo 22 lidí

Prodejce

Bc. Monika Kálalová

Bc. Monika Kálalová

Hlídací pes

Chcete dostávat emailem podobné nabídky prodeje obchodních prostor v Bošicích?

Top nabídky

Nevyhovuje Vám typ nemovitosti? Podívejte se na jiné kategorie komerčních.


Vybrané články z našeho blogu