Prodej bytu 2+1, Murcia City, Španělsko, 52 m2 (ID: 4233613)

Murcia City

100 000 € /za nemovitost
Prémioví partneři

Informace k bytu

Apartmán v Avileses – Novostavba
Avileses – Costa Cálida


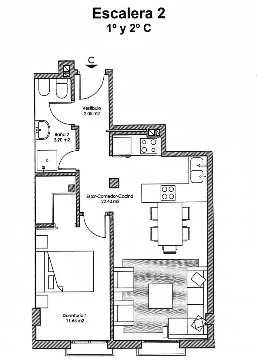
2 ložnice
1 koupelna
52 m²

Novostavby apartmánů na prodej v Avileses, Murcia: skvělá investiční příležitost

Rezidenční budova s 19 novými apartmány
Tento nový developerský projekt v Avileses (Murcia) nabízí výběr z 19 apartmánů navržených tak, aby poskytovaly pohodlí, praktičnost a skvělý poměr ceny a kvality. Kupující si mohou vybrat mezi byty s jednou, dvěma nebo třemi ložnicemi a jednou či dvěma koupelnami, což je ideální pro páry, rodiny nebo investory, kteří hledají cenově dostupnou nemovitost na dobře dostupném místě.

Budova je vybavena výtahem a některé jednotky mají vlastní parkovací místo.
Kvalitní provedení a volitelné kuchyňské balíčky
Všechny apartmány mají předinstalaci klimatizace, která zajišťuje celoroční komfort. Kuchyně se dodávají bez nábytku, což kupujícím umožňuje plnou personalizaci prostoru.

Pro větší pohodlí je k dispozici volitelný balíček vybavení, který zahrnuje kuchyňský nábytek, elektrospotřebiče, koupelnovou skříňku se zrcadlem a sprchové zástěny. Tento balíček je k dispozici od 5200 € u apartmánů s jednou ložnicí – vynikající hodnota pro ty, kteří chtějí okamžitě připravené bydlení.
Skvělá poloha v centru Avileses
Budova se nachází v srdci Avileses, klidné vesnice patřící k Murcii. Díky centrální poloze jsou služby jako supermarkety, kavárny, restaurace a místní zařízení dostupné pěšky.

Oblast je známá svým uvolněným životním stylem, zemědělským okolím a blízkostí prestižních golfových hřišť, jako např.:
• Peraleja Golf – 6 km
• New Sierra Golf – 8 km

Krásné pláže Mar Menor a středomořského pobřeží jsou vzdálené přibližně 20 km.
Výborná dopravní dostupnost v celém regionu

Avileses má pohodlné silniční spojení s okolními městy i hlavními body v Murcii. Mezi nejdůležitější místa patří:
• Vlakové nádraží Balsicas – 7 km
• San Javier – 14 km
• San Pedro del Pinatar – 22 km
• Centrum Murcie – 29 km
• Mezinárodní letiště Murcia Corvera – 16 km

Díky rychlému přístupu na hlavní silnice mohou rezidenti snadno dojíždět do obchodních center, zábavních zón, golfových resortů i pobřežních atrakcí.
Cenově dostupné nové byty – dokončení leden 2026

Tato nabídka představuje jedinečnou příležitost získat nový byt v Murcii za mimořádnou cenu. Ať už hledáte trvalé bydlení, rekreační základnu nebo investiční nemovitost k pronájmu, tyto apartmány nabízejí skvělý potenciál v rostoucí oblasti.
Kontaktujte nás ještě dnes pro více informací nebo pro rezervaci vaší jednotky před jejím dokončením.


Dostupné typy apartmánů:
1 ložnice + 1 koupelna | 44 m² | 73 000 EUR
2 ložnice + 1 koupelna | 52 m² | 95 000 EUR
3 ložnice + 2 koupelny | 96 m² | 133 000 EUR

Parametry bytu

Cena
100 000 € /za nemovitost
Aktualizováno
9. 4. 2026
Adresa
Murcia City
Stavba
Panelová
Stav objektu
Novostavba
Patro
1.
Vlastnictví
Osobní
Užitná plocha
52 m2

Kontaktovat makléře

Máte zájem o tento byt?

Tímto, v souladu s nařízením Evropského parlamentu a Rady (EU) 2016/679, v platném znění, prohlašuji, že mi je alespoň 16 let a uděluji tak svůj souhlas se zpracováním zadaných údajů (jméno, telefon, e-mail, ip adresa) společnosti B3 Technology, s.r.o., IČ: 07330600, se sídlem Novostavby 126/23, 435 11 Lom (správce dat), za účelem předání dotazu z tohoto formuláře Vámi vybranému inzerentovi a zpětného kontaktování mé osoby. Osobní údaje bude správce zpracovávat manuálně i automaticky přímo prostřednictvím svých zaměstnanců. Informace předané tímto formulářem budou uloženy v databázi správce maximálně po dobu 10 let. Odvolání souhlasu s uložením a zpracováním poskytnutých dat lze e-mailem na info@videobydleni.cz. V případě podezření na neoprávněné použití Vámi poskytnutých údajů máte právo předat podnět k šetření Úřadu pro ochranu osobních údajů. Více informací
Chystáte se prodat nemovitost?
Pomůžeme Vám!

Inzerát si prohlédlo 0 lidí

Prodejce

Martina Kroupová

Martina Kroupová

Hlídací pes

Chcete dostávat emailem podobné nabídky prodeje bytů 2+1?

Podobné nemovitosti


Nevyhovuje Vám typ bytu? Podívejte se na jiné kategorie bytů.


Vybrané články z našeho blogu