Pronájem kanceláře, Praha - Nové Město, Krakovská, 115 m2

Krakovská, Praha, Nové Město

33 795 Kč /za měsíc Získejte výhodnou HYPOTÉKU
Prémioví partneři v Praze 1

Stěhovací služby

Výkup a prodej starého nábytku

Informace k nemovitosti

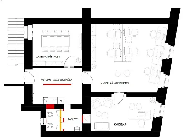
KANCELÁŘE K PRONÁJMU - 115 m2

!! NEPLATÍTE PROVIZI !!
Firma Real Top s.r.o., která je přímým majitelem a správcem objektu, nabízí k pronájmu kancelářské prostory v administrativní budově BUSINESS RESIDENCE v Krakovské ulici.
Objekt se nachází v blízkosti Václavského náměstí, 300 m od stanice metra Muzeum, I. P. Pavlova. K dispozici je 24 hodinová ostraha, výtah, možnost parkování v zakladači.
Nabízíme k pronájmu jednotku po celkové rekonstrukci o výměře 115m2 (vstupní hala s přípojkami na kuchyňku, 3 kanceláře, sociální zázemí) umístěná ve 2NP.
Cena nájmu 295,-Kč/m2, provozní náklady 105 Kč/m2, topné náklady 20 Kč/m2.
Elektrická energie hrazena PŘÍMO DLE SPOTŘEBY NÁJEMCE (měřiče)

k nastěhování IHNED

Parametry nemovitosti

Cena
33 795 Kč /za měsíc
Aktualizováno
10. 4. 2026
Adresa
Krakovská, Praha, Nové Město
Stavba
Cihlová
Stav objektu
Dobrý
Patro
1. z 6
Vybaveno
Ne
Lokalita objektu
Klidná část obce
Užitná plocha
115 m2
Třída energetické náročnosti
E - Nehospodárná
Elektřina
230V
Plyn
Individuální
Odpad
Veřejná kanalizace
Komunikace
Asfaltová
Telekomunikace
Internet
Doprava
Vlak, Silnice, MHD
Voda
Vodovod
Topné těleso
Radiátory
Zdroj topení
Plynový kotel
Zdroj teplé vody
Průtokový ohřívač
Garáž
Výtah
Bezbarierový přístup
Parkování

Kontaktovat makléře

Realitní kancelář

IMOCO, spol. s r.o.

Krakovská 1392/7, Praha, Nové Město

Chystáte se prodat nemovitost?
Pomůžeme Vám!

Máte zájem o tuto nemovistost?

Tímto, v souladu s nařízením Evropského parlamentu a Rady (EU) 2016/679, v platném znění, prohlašuji, že mi je alespoň 16 let a uděluji tak svůj souhlas se zpracováním zadaných údajů (jméno, telefon, e-mail, ip adresa) společnosti B3 Technology, s.r.o., IČ: 07330600, se sídlem Novostavby 126/23, 435 11 Lom (správce dat), za účelem předání dotazu z tohoto formuláře Vámi vybranému inzerentovi a zpětného kontaktování mé osoby. Osobní údaje bude správce zpracovávat manuálně i automaticky přímo prostřednictvím svých zaměstnanců. Informace předané tímto formulářem budou uloženy v databázi správce maximálně po dobu 10 let. Odvolání souhlasu s uložením a zpracováním poskytnutých dat lze e-mailem na info@videobydleni.cz. V případě podezření na neoprávněné použití Vámi poskytnutých údajů máte právo předat podnět k šetření Úřadu pro ochranu osobních údajů. Více informací
Chystáte se prodat nemovitost?
Pomůžeme Vám!

Inzerát si prohlédlo 0 lidí

Prodejce

Jana Vávrová

Jana Vávrová

Hlídací pes

Chcete dostávat emailem podobné nabídky pronájmu kanceláří v Praze 1?

Podobné nemovitosti


Nevyhovuje Vám typ nemovitosti? Podívejte se na jiné kategorie komerčních.


Vybrané články z našeho blogu