Pronájem bytu 1+1, Liberec, Husova, 45 m2

Husova, Liberec V-Kristiánov

13 300 Kč /za měsíc Získejte výhodnou HYPOTÉKU

(+ 600 Kč voda / 1 osoba + 1 500 Kč elektřina v bytě + 2 000 Kč plyn)

Prémioví partneři v Liberci

Rekonstrukce

Úklidové služby

Informace k bytu

//POSTUP ZÍSKÁNÍ PRONÁJMU:
1. Zašlete mi, prosím, email s informací že máte zájem o pronájem bytu.
2. Obratem vám pošlu krátký dotazník, který je potřeba vyplnit a zaslat zpět na můj email.
3. Váš vyplněný dotazník následně předám majiteli bytu.
4. Poté vás budu kontaktovat a předám další informace a možné termíny prohlídky bytu //

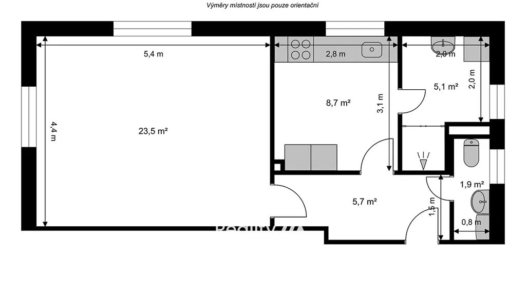
POPIS BYTU
Představuji k dlouhodobému pronájmu nekuřácký byt o velikosti 1+1 o podlahové ploše cca 45 m². K bytu nepatří sklep. Byt je situován v 1. patře (2.nadzemní podlaží) cihlového domu bez výtahu na adrese ul.Husova, Liberec. Byt je nábytkem nevybavený.  

VYBAVENÍ A PŘÍSLUŠENSTVÍ
• kuchyňská linka s plynovým sporákem a elektrickou troubou
• koupelna se sprchovým koutem, umyvadlem a otopným žebříkem+ samostatné WC
• lednička, automatická pračka 
• etážové vytápění a ohřev vody vlastním plynovým kotlem
• v pokoji původní parkety, dlažba v koupelně a na WC
• byt je částečně zařízený (viz foto), plastová okna

PODMÍNKY PRONÁJMU
• nájemné: 13 300 Kč měsíčně včetně internetu a společné elektřiny v domě
• společné služby - vodné/stočné 600 Kč (kalkulováno pro 1 osobu)
• nájemce platí pronajímateli zálohy za plyn 2000 Kč + 1500 Kč za elektřinu
• vratná kauce: 30 000 Kč
• jednorázově provize pro realitní kancelář: 15 800 Kč
• maximálně pro 1- 2 osoby – nekuřáky
• byt je k dispozici od 1.5. 2026

Prohlídky možné dohodou.

LOKALITA A ENERGETICKÁ NÁROČNOST
Bytový dům se nachází ve vilové zástavbě v ul. Husova blízko liberecké přehradní nádrže. Nedaleko od domu u Technické univerzity se nachází zastávka MHD pro 3 linky autobusů, případně je možno sejít k tram zástávce "Botanická zahrada". Vzhledem k tomu, že před inzercí nebyl předložen průkaz energetické náročnosti budovy (PENB), je bytový dům uveden v energetické třídě G.

V případě zájmu mě, prosím, kontaktujte emailem přes poptávkový formulář pod inzerátem.

Parametry bytu

Cena
13 300 Kč /za měsíc
Poznámka k ceně
+ 600 Kč voda / 1 osoba + 1 500 Kč elektřina v bytě + 2 000 Kč plyn
Aktualizováno
11. 4. 2026
Adresa
Husova, Liberec V-Kristiánov
ID
26NB102
Stavba
Cihlová
Stav objektu
Dobrý
Patro
2. z 4
Vybaveno
Částečně
Lokalita objektu
Klidná část obce
Vlastnictví
Osobní
Užitná plocha
45 m2
Podlahová plocha
45 m2
Třída energetické náročnosti
G - Mimořádně nehospodárná
Elektřina
230V
Plyn
Plynovod
Odpad
Veřejná kanalizace
Komunikace
Asfaltová
Telekomunikace
Internet
Doprava
Vlak, Dálnice, MHD
Voda
Vodovod
Topné těleso
Radiátory
Zdroj topení
Plynový kotel
Zdroj teplé vody
Plynový kotel
Výtah

Kontaktovat makléře

Realitní kancelář

Reality Polák

Sněhurčina 674/1, Liberec

Chystáte se prodat nemovitost?
Pomůžeme Vám!

Máte zájem o tento byt?

Tímto, v souladu s nařízením Evropského parlamentu a Rady (EU) 2016/679, v platném znění, prohlašuji, že mi je alespoň 16 let a uděluji tak svůj souhlas se zpracováním zadaných údajů (jméno, telefon, e-mail, ip adresa) společnosti B3 Technology, s.r.o., IČ: 07330600, se sídlem Novostavby 126/23, 435 11 Lom (správce dat), za účelem předání dotazu z tohoto formuláře Vámi vybranému inzerentovi a zpětného kontaktování mé osoby. Osobní údaje bude správce zpracovávat manuálně i automaticky přímo prostřednictvím svých zaměstnanců. Informace předané tímto formulářem budou uloženy v databázi správce maximálně po dobu 10 let. Odvolání souhlasu s uložením a zpracováním poskytnutých dat lze e-mailem na info@videobydleni.cz. V případě podezření na neoprávněné použití Vámi poskytnutých údajů máte právo předat podnět k šetření Úřadu pro ochranu osobních údajů. Více informací
Chystáte se prodat nemovitost?
Pomůžeme Vám!

Inzerát si prohlédlo 3 lidí

Prodejce

Benedikt Polák

Benedikt Polák

Hlídací pes

Chcete dostávat emailem podobné nabídky pronájmu bytů 1+1 v Liberci?

Podobné nemovitosti


Nevyhovuje Vám typ bytu? Podívejte se na jiné kategorie bytů.


Vybrané články z našeho blogu