Pronájem bytu 1+kk, Beroun - Beroun-Město, Nepilova, 36 m2

Nepilova, Beroun-Město

14 000 Kč /za měsíc Získejte výhodnou HYPOTÉKU

(+ zálohy cca 4.000 Kč včetně elektřiny +provize RK 14.000 + DPH + vratná kauce 20.000 Kč)

Prémioví partneři v Berouně

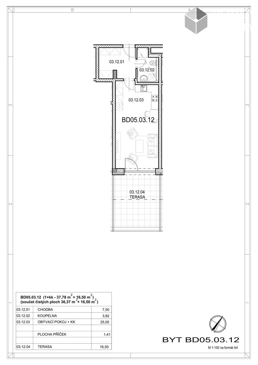
Informace k bytu

Nabízíme Vám k pronájmu úplně nový byt 1+kk o výměře 36,3 m². Najdete ho na 3. NP právě kolaudovaného bytového domu v Berouně, v ul. Nepilova. Bonusem bytu je pěkná slunečná terasa o výměře 16,5 m², částečně krytá horním balkonem. V ceně nájmu už je zahnuto užívání vlastního parkovacího místa ve společné garáži a sklepní kóje 2,2 m² umístěná přímo na patře jako byt.
Velká chodba nabízí perfektní možnosti úložných prostor, koupelna je vybavena sprchovým koutem, umyvadlem a přípravou na pračku. Dominantou hlavní obytné části je rohová kuchyňská linka vybavená vestavěnými spotřebiči – troubou, lednicí s mrazákem, sklokeramickou varnou deskou i myčkou.

Byt je součástí nízkoenergetického domu se solárními panely na střeše a rekuperačními jednotkami v bytech, v tomto je umístěna i klimatizace.

Lokalita nabízí skvělé zázemí pro aktivní i pohodlný život – v docházkové vzdálenosti najdete sportovní centrum Eden, obchody, restaurace, lékaře i další služby. Výborná je také dopravní dostupnost: přímé autobusové i vlakové spoje do Prahy a rychlé napojení na dálnici D5 (nájezd cca 1,5 km) vám zajistí bezproblémové cestování.

Majitel preferuje nekuřáky bez domácích mazlíčků, ideálně 1–2 osoby. Volné ihned.

Tento byt je ideální volbou pro ty, kteří hledají moderní, úsporné a designově zajímavé bydlení s výbornou dostupností i kompletním zázemím.

Parametry bytu

Cena
14 000 Kč /za měsíc
Poznámka k ceně
+ zálohy cca 4.000 Kč včetně elektřiny +provize RK 14.000 + DPH + vratná kauce 20.000 Kč
Aktualizováno
12. 4. 2026
Adresa
Nepilova, Beroun-Město
ID
6391
Stavba
Smíšená
Stav objektu
Novostavba
Patro
3. z 5
Vlastnictví
Osobní
Užitná plocha
36 m2
Třída energetické náročnosti
B - Velmi úsporná
Odpad
Veřejná kanalizace
Komunikace
Asfaltová
Doprava
Vlak, Dálnice, MHD, Autobus
Voda
Vodovod
Sklep
Terasa
Výtah

Kontaktovat makléře

Máte zájem o tento byt?

Tímto, v souladu s nařízením Evropského parlamentu a Rady (EU) 2016/679, v platném znění, prohlašuji, že mi je alespoň 16 let a uděluji tak svůj souhlas se zpracováním zadaných údajů (jméno, telefon, e-mail, ip adresa) společnosti B3 Technology, s.r.o., IČ: 07330600, se sídlem Novostavby 126/23, 435 11 Lom (správce dat), za účelem předání dotazu z tohoto formuláře Vámi vybranému inzerentovi a zpětného kontaktování mé osoby. Osobní údaje bude správce zpracovávat manuálně i automaticky přímo prostřednictvím svých zaměstnanců. Informace předané tímto formulářem budou uloženy v databázi správce maximálně po dobu 10 let. Odvolání souhlasu s uložením a zpracováním poskytnutých dat lze e-mailem na info@videobydleni.cz. V případě podezření na neoprávněné použití Vámi poskytnutých údajů máte právo předat podnět k šetření Úřadu pro ochranu osobních údajů. Více informací
Chystáte se prodat nemovitost?
Pomůžeme Vám!

Inzerát si prohlédlo 0 lidí

Prodejce

Jitka Lišková

Jitka Lišková

Hlídací pes

Chcete dostávat emailem podobné nabídky pronájmu bytů 1+kk v Berouně?

Podobné nemovitosti


Nevyhovuje Vám typ bytu? Podívejte se na jiné kategorie bytů.


Vybrané články z našeho blogu