Soccer reality

Prodej bytu 2+1, Praha - Dolní Počernice, Národních hrdinů, 63 m2 (ID: 4236407)

Národních hrdinů, Praha, Dolní Počernice

7 999 000 Kč /za nemovitost HYPOTÉKA od 35 751 Kč /za měsíc
Prémioví partneři v Praze 9

Stěhovací služby

Výkup a prodej starého nábytku

Informace k bytu

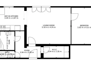
Prostorný a útulný byt 2+1 (63 m²) s velkým sklepem (12 m²) v klidné části Praha – Dolní Počernice

Hledáte pohodlné bydlení v Praze, které kombinuje klidnou atmosféru, zeleň a skvělou dostupnost do centra? Máme pro vás ideální nabídku.

Nabízíme k prodeji útulný a prakticky řešený byt 2+1 o celkové ploše 63 m², situovaný v 1. patře bytového domu bez výtahu v oblíbené rezidenční lokalitě Dolní Počernice. Součástí bytu je také velký sklep, ideální pro kola, sportovní vybavení nebo sezónní věci. Jen pár kroků od domu se nachází zastávka MHD s přímým spojením na metro Depo Hostivař. Možnost parkování je k dispozici přímo na ulici.

Byt vás zaujme svou dispozicí i příjemnou atmosférou. Tvoří jej světlý obývací pokoj, samostatná kuchyně, ložnice orientovaná do klidného prostředí, koupelna s rohovou vanou, samostatná toaleta, velká šatna a vstupní chodba. Díky chytrému uspořádání nabízí dostatek úložného prostoru i komfortní bydlení. Byt se prodává včetně vybavení – stačí se jen nastěhovat

Součástí bytu je také velký sklep (12 m²), ideální pro kola, sportovní vybavení nebo sezónní věci.


Lokalita Dolní Počernice patří mezi velmi vyhledávané části Prahy díky své kombinaci klidu, přírody a výborné infrastruktury. V docházkové vzdálenosti najdete mateřskou i základní školu, restaurace, kavárny, dětská a sportovní hřiště i lokální pivovar. Nechybí ani krásný zámecký park s lesním divadlem, ideální pro procházky a relaxaci.

Výborná dopravní dostupnost je samozřejmostí – rychlé napojení na Pražský okruh, MHD i vlakové spojení. V krátké dojezdové vzdálenosti se nachází také obchodní a zábavní centrum Černý Most.

Hlavní výhody:
• Klidná a zelená lokalita
• Praktická dispozice 2+1
• Velký sklep
• Skvělá dostupnost do centra
• Ideální pro vlastní bydlení i jako investice

Pokud hledáte příjemné bydlení v lokalitě, kde se budete cítit opravdu doma, neváhejte nás kontaktovat a domluvte si prohlídku. Rádi vám byt osobně představíme.

Parametry bytu

Cena
7 999 000 Kč /za nemovitost Spočítat hypotéku
Aktualizováno
12. 4. 2026
Adresa
Národních hrdinů, Praha, Dolní Počernice
Stavba
Cihlová
Stav objektu
Velmi dobrý
Patro
1.
Vlastnictví
Osobní
Užitná plocha
63 m2
Třída energetické náročnosti
C - Úsporná
Sklep
Výtah
Převod do OV

Kontaktovat makléře

Realitní kancelář

REFA Group s.r.o.

Olšanská 2643/1a, Praha, Žižkov

Chystáte se prodat nemovitost?
Pomůžeme Vám!

Máte zájem o tento byt?

Tímto, v souladu s nařízením Evropského parlamentu a Rady (EU) 2016/679, v platném znění, prohlašuji, že mi je alespoň 16 let a uděluji tak svůj souhlas se zpracováním zadaných údajů (jméno, telefon, e-mail, ip adresa) společnosti B3 Technology, s.r.o., IČ: 07330600, se sídlem Novostavby 126/23, 435 11 Lom (správce dat), za účelem předání dotazu z tohoto formuláře Vámi vybranému inzerentovi a zpětného kontaktování mé osoby. Osobní údaje bude správce zpracovávat manuálně i automaticky přímo prostřednictvím svých zaměstnanců. Informace předané tímto formulářem budou uloženy v databázi správce maximálně po dobu 10 let. Odvolání souhlasu s uložením a zpracováním poskytnutých dat lze e-mailem na info@videobydleni.cz. V případě podezření na neoprávněné použití Vámi poskytnutých údajů máte právo předat podnět k šetření Úřadu pro ochranu osobních údajů. Více informací
Chystáte se prodat nemovitost?
Pomůžeme Vám!

Inzerát si prohlédlo 1 lidí

Prodejce

Tarik Ezrifi

Tarik Ezrifi

Hlídací pes

Chcete dostávat emailem podobné nabídky prodeje bytů 2+1 v Praze 9?

Podobné nemovitosti


Nevyhovuje Vám typ bytu? Podívejte se na jiné kategorie bytů.


Vybrané články z našeho blogu