Prodej bytu 3+1, Otrokovice, SNP, 69 m2 (ID: 4236605)

SNP, Otrokovice

5 500 000 Kč /za nemovitost HYPOTÉKA od 24 582 Kč /za měsíc

(za nemovitost)

Prémioví partneři v Otrokovicích

Informace k bytu

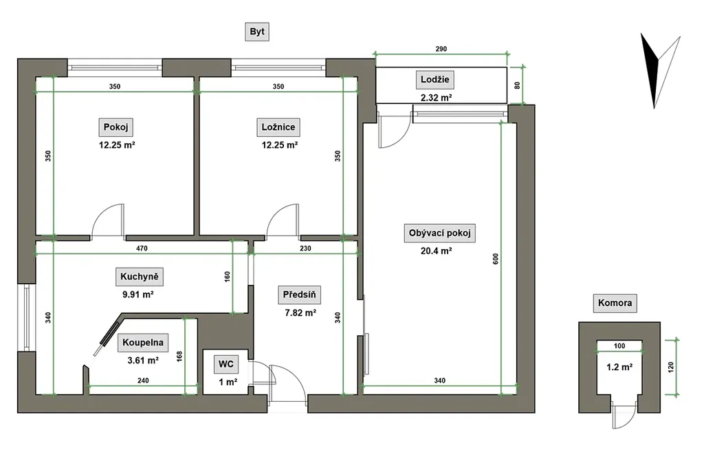
Ráda bych Vás provedla a představila Vám ke koupi moderní a slunný byt 3+1 po rekonstrukci s jednou zasklenou lodžií ve vyhledávané, a přitom klidné lokalitě Otrokovic – Trávníky, ul. SNP.

Bytová jednotka je umístěna v 12. NP panelového domu se dvěma výtahy.

K bytu náleží komora na patře a sklepní kóje v suterénu.

Tato nemovitost je svou rozlohou velmi prostorná.

Jistě Vás bude zajímat a oceníte:
• byt je po rekonstrukci s klimatizací
• celková plocha bytu cca 69 m² + ( plocha lodžie 2,5m², plocha
komory 1.2m² a klep 2m²)
• stínění v interiéru a venkovní elektrické rolety
• na míru zhotovená kuchyň včetně spotřebičů
• tři samostatné, neprůchozí pokoje s novými podlahami
• zděná koupelna s vanou a oddělené WC
• komora na chodbě
• v předsíni vestavěná skříň a úložné prostory
• sklepní kóje

Byt nabízí krásný výhled na okolí a zeleň, působí vzdušně a propojuje interiér s okolním prostředím.

Byt je ideální pro všechny věkové kategorie – rodiny s dětmi i seniory, kteří hledají moderní bydlení s minimálními nároky na údržbu a chtějí si užívat komfort bez nutnosti dalších úprav.

Energetická náročnost budovy (třída C) zaručuje nízké provozní náklady, což přispívá k pohodlnému a úspornému bydlení.

V blízkosti domu se nachází parky, cyklostezka, dětská hřiště, škola, školka, pošta, obchody, kavárna, zdravotnické středisko a autobusová zastávka MHD, odkud je snadné spojení do centra Otrokovic.

Doporučuji Vám toto příjemné a komfortní bydlení – určitě nebudete litovat.

Prohlídky a návštěva bytu jsou možné po dohodě s makléřkou Martinou.

Parametry bytu

Cena
5 500 000 Kč /za nemovitost Spočítat hypotéku
Poznámka k ceně
za nemovitost
Aktualizováno
12. 4. 2026
Adresa
SNP, Otrokovice
Stavba
Panelová
Stav objektu
Po rekonstrukci
Patro
12.
Lokalita objektu
Klidná část obce
Vlastnictví
Osobní
Užitná plocha
69 m2
Třída energetické náročnosti
C - Úsporná
Odpad
Veřejná kanalizace
Doprava
Vlak, Dálnice, Silnice, MHD, Autobus
Voda
Místní zdroj vody
Zdroj topení
Centrální dálkové
Sklep
Lodžie

Kontaktovat makléře

Realitní kancelář

MS reality

třída Tomáše Bati 385, Zlín

Chystáte se prodat nemovitost?
Pomůžeme Vám!

Máte zájem o tento byt?

Tímto, v souladu s nařízením Evropského parlamentu a Rady (EU) 2016/679, v platném znění, prohlašuji, že mi je alespoň 16 let a uděluji tak svůj souhlas se zpracováním zadaných údajů (jméno, telefon, e-mail, ip adresa) společnosti B3 Technology, s.r.o., IČ: 07330600, se sídlem Novostavby 126/23, 435 11 Lom (správce dat), za účelem předání dotazu z tohoto formuláře Vámi vybranému inzerentovi a zpětného kontaktování mé osoby. Osobní údaje bude správce zpracovávat manuálně i automaticky přímo prostřednictvím svých zaměstnanců. Informace předané tímto formulářem budou uloženy v databázi správce maximálně po dobu 10 let. Odvolání souhlasu s uložením a zpracováním poskytnutých dat lze e-mailem na info@videobydleni.cz. V případě podezření na neoprávněné použití Vámi poskytnutých údajů máte právo předat podnět k šetření Úřadu pro ochranu osobních údajů. Více informací
Chystáte se prodat nemovitost?
Pomůžeme Vám!

Inzerát si prohlédlo 0 lidí

Prodejce

Martina Sušňová

Martina Sušňová

Hlídací pes

Chcete dostávat emailem podobné nabídky prodeje bytů 3+1 v Otrokovicích?

Podobné nemovitosti


Nevyhovuje Vám typ bytu? Podívejte se na jiné kategorie bytů.


Vybrané články z našeho blogu