Prodej pozemku pro bydlení, Střítež, 1673 m2 (ID: 4236735)

Střítež

2 000 000 Kč /za nemovitost HYPOTÉKA od 8 939 Kč /za měsíc
Prémioví partneři v Stříteži

Informace k pozemku

Prodej stavebního pozemku Střítež u Frýdku Místku.

Nabízíme ke koupi atraktivní stavební pozemek ve vyhledávané obci Střítež u Frýdku-Místku, která se nachází v malebném podhůří Beskyd. Klidná lokalita, vynikající dostupnost s okolím plném přírodních i kulturních krás.

Základní informace:
• druh pozemku: stavební – určený k výstavbě rodinného domu
• mírně svažitý terén s krásným výhledem na krajinu
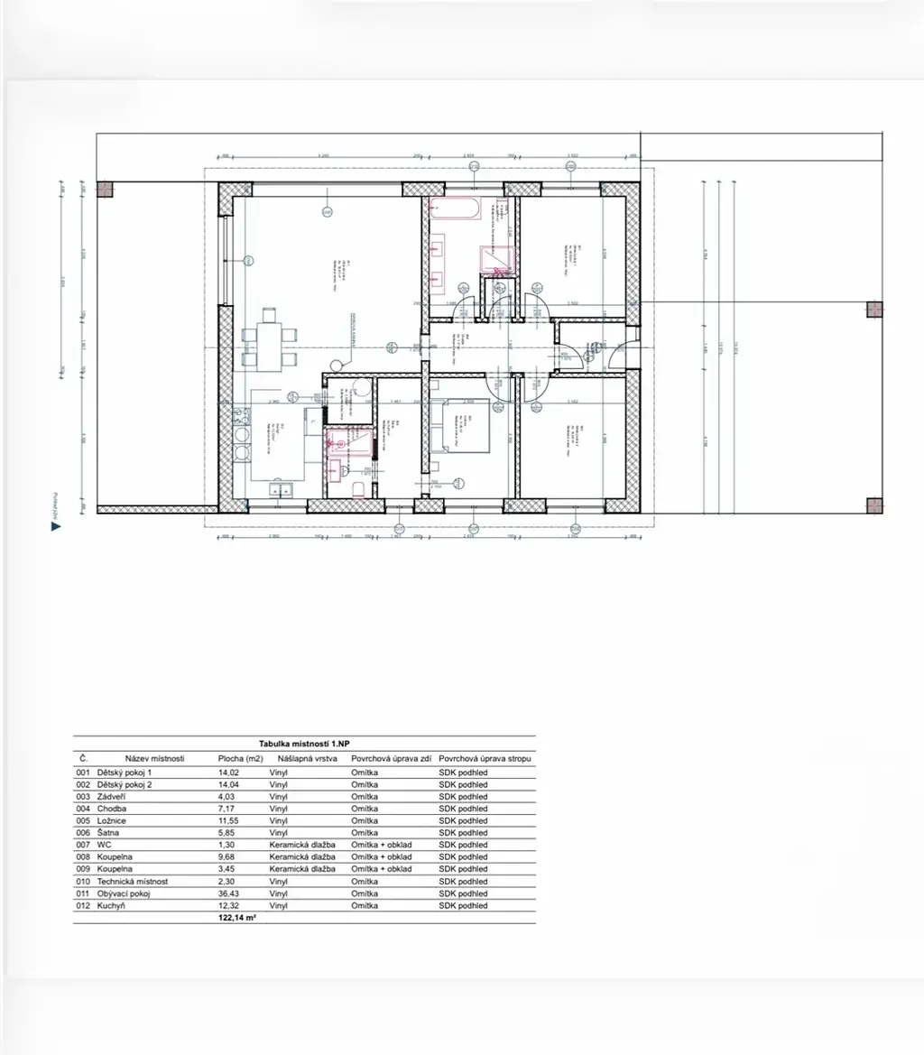
• projekt moderního rodinného domu, který je součástí prodeje
!Není podmínkou. Lze využít i svůj vlastní projekt.

Pozemek vhodný také k rekreačním účelům, pro mobilheim ap.

• povolení k vrtu a domovní ČOV zajištěno
• přípojka elektřiny (ČEZ) již svedená do HDS na sloupu u pozemku

Lokalita a vybavenost:
• Lokalita v srdci Beskyd – pár minut autem od Lysé hory, Smrku nebo Prašivé.
• Sportovní vyžití - cyklostezky, zimní sporty, turistika. Cyklostezky a traily – obec je napojena na hustou síť cyklotras.
• Golf a lyže – v blízkosti Golf Resort Ropice (cca 3 km), Prosper Golf Čeladná, sjezdovky Řeka, Javorový, Morávka.
• Občanská vybavenost – mateřská a základní škola, obchod, dětské hřiště, restaurace.
• Výborná dopravní dostupnost – Frýdek-Místek, Třinec a Český Těšín jsou v dosahu do 15 minut, napojení na D48.
Pozemek k prodeji také v Dobré u FM.
Ráda zodpovím Vaše dotazy, domluvím se na prohlídku.

Parametry pozemku

Cena
2 000 000 Kč /za nemovitost Spočítat hypotéku
Aktualizováno
13. 4. 2026
Adresa
Střítež
Plocha pozemku
1673 m2

Kontaktovat makléře

Realitní kancelář

REAL EXPERT

Nádražní 1816/84, Ostrava

Chystáte se prodat nemovitost?
Pomůžeme Vám!

Máte zájem o tento pozemek?

Tímto, v souladu s nařízením Evropského parlamentu a Rady (EU) 2016/679, v platném znění, prohlašuji, že mi je alespoň 16 let a uděluji tak svůj souhlas se zpracováním zadaných údajů (jméno, telefon, e-mail, ip adresa) společnosti B3 Technology, s.r.o., IČ: 07330600, se sídlem Novostavby 126/23, 435 11 Lom (správce dat), za účelem předání dotazu z tohoto formuláře Vámi vybranému inzerentovi a zpětného kontaktování mé osoby. Osobní údaje bude správce zpracovávat manuálně i automaticky přímo prostřednictvím svých zaměstnanců. Informace předané tímto formulářem budou uloženy v databázi správce maximálně po dobu 10 let. Odvolání souhlasu s uložením a zpracováním poskytnutých dat lze e-mailem na info@videobydleni.cz. V případě podezření na neoprávněné použití Vámi poskytnutých údajů máte právo předat podnět k šetření Úřadu pro ochranu osobních údajů. Více informací
Chystáte se prodat nemovitost?
Pomůžeme Vám!

Inzerát si prohlédlo 0 lidí

Prodejce

Gabriela Pavlitová

Gabriela Pavlitová

Hlídací pes

Chcete dostávat emailem podobné nabídky prodeje pozemků pro bydlení v Stříteži (okr. Frýdek-Místek)?

Podobné nemovitosti


Nevyhovuje Vám typ pozemku? Podívejte se na jiné kategorie pozemků.


Vybrané články z našeho blogu