Pronájem bytu 2+1, Kolín, Bachmačská, 50 m2 (ID: 4236812)

Bachmačská, Kolín II

15 000 Kč /za měsíc Získejte výhodnou HYPOTÉKU
Prémioví partneři v Kolíně

Informace k bytu

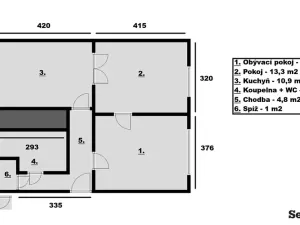
Nabízíme Vám k pronájmu byt 2+1 o celkové podlahové ploše 50 m2 v ulici Bachmačská, ve městě Kolín. Byt se nachází v 1. nadzemním podlaží domu a je v osobním vlastnictví.

Byt je po částečné rekonstrukci, která zahrnovala úpravu kuchyně a koupelny. Dispozici bytu tvoří prostorný obývací pokoj, neprůchozí ložnice, kuchyň, koupelna s WC, komora, vstupní chodba. Součástí bytu jsou 3 prostorné sklepy o celkové výměře 8 m2, které nejsou započítané v celkové výměře bytu. Sklepy poskytují praktický úložný prostor pro sportovní vybavení, sezónní věci a další využití dle Vaší potřeby.

Dům je po celkové revitalizaci, je napojen na veřejný vodovod a kanalizaci, vytápěn je vlastním elektrickým kotlem v bytě.

Největší předností bytu je umístění v klidné části s docházkovou vzdáleností do centra města.

Nájemné 15.000,-Kč, zálohy na služby 2.720,-Kč, elektřina bude převedena na nájemce, kauce 30.000,-Kč a provize 15.000,-Kč.

Město Kolín nabízí veškerou občanskou vybavenost. V blízkosti domu je mateřská, základní a střední škola, supermarket, obchodní centrum, vlaková stanice, autobusová zastávka, dětské centrum a hřiště. Nepřehlédnutelnou výhodou je výborná dopravní dostupnost do hlavního města Prahy, necelých 40 minut autem na Černý most po dálnici D11.

Pronajímatel si vyhrazuje právo vybrat nájemce.

Pro další informace nebo při zájmu o prohlídku nás neváhejte kontaktovat!

Parametry bytu

Cena
15 000 Kč /za měsíc
Aktualizováno
13. 4. 2026
Adresa
Bachmačská, Kolín II
ID
190
Stavba
Cihlová
Stav objektu
Dobrý
Patro
1. z 5
Vlastnictví
Osobní
Užitná plocha
50 m2
Podlahová plocha
50 m2
Třída energetické náročnosti
C - Úsporná
Elektřina
230V
Odpad
Veřejná kanalizace
Topení
Ústřední elektrické
Komunikace
Asfaltová, Zpevněná
Telekomunikace
Internet
Doprava
Vlak, Dálnice, Silnice, Autobus
Voda
Vodovod
Topné těleso
Radiátory
Zdroj topení
Elektrokotel
Zdroj teplé vody
Elektrokotel
Sklep
Bezbarierový přístup

Kontaktovat makléře

Máte zájem o tento byt?

Tímto, v souladu s nařízením Evropského parlamentu a Rady (EU) 2016/679, v platném znění, prohlašuji, že mi je alespoň 16 let a uděluji tak svůj souhlas se zpracováním zadaných údajů (jméno, telefon, e-mail, ip adresa) společnosti B3 Technology, s.r.o., IČ: 07330600, se sídlem Novostavby 126/23, 435 11 Lom (správce dat), za účelem předání dotazu z tohoto formuláře Vámi vybranému inzerentovi a zpětného kontaktování mé osoby. Osobní údaje bude správce zpracovávat manuálně i automaticky přímo prostřednictvím svých zaměstnanců. Informace předané tímto formulářem budou uloženy v databázi správce maximálně po dobu 10 let. Odvolání souhlasu s uložením a zpracováním poskytnutých dat lze e-mailem na info@videobydleni.cz. V případě podezření na neoprávněné použití Vámi poskytnutých údajů máte právo předat podnět k šetření Úřadu pro ochranu osobních údajů. Více informací
Chystáte se prodat nemovitost?
Pomůžeme Vám!

Inzerát si prohlédlo 2 lidí

Prodejce

Andrea Divecká Šavrdová

Andrea Divecká Šavrdová

Hlídací pes

Chcete dostávat emailem podobné nabídky pronájmu bytů 2+1 v Kolíně?

Podobné nemovitosti


Nevyhovuje Vám typ bytu? Podívejte se na jiné kategorie bytů.


Vybrané články z našeho blogu