Prodej bytu 2+1, Pardubice, Luďka Matury, 62 m2 (ID: 4236815)

Luďka Matury, Pardubice, Studánka

Rezervováno
5 490 000 Kč /za nemovitost HYPOTÉKA od 24 537 Kč /za měsíc
Prémioví partneři v Pardubicích

Informace k bytu

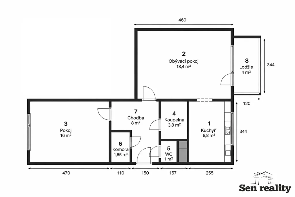
Exkluzivně nabízíme k prodeji byt 2+1 v osobním vlastnictví, 62 m2, 5. patro, ulice Luďka Matury, Pardubice.

Dispozici bytu tvoří obývací pokoj se vstupem na lodžii, neprůchozí ložnice, kuchyň, koupelna s prostorným sprchovým koutem, samostatné WC, vstupní chodba, komora. Součástí bytu je sklepní kóje v suterénu domu o výměře 2 m2.

Byt prošel celkovou rekonstrukcí včetně všech všech rozvodů, zděné jádro, sádrokartonové stropy s bodovým osvětlením, dveře s obložkami.

Dům je po kompletní revitalizaci. Vytápění je centrální dálkové.

Městská čtvrť Studánka je vyhledávaná a klidná lokalita, která nabízí příjemné bydlení v blízkosti přírody s výbornou dostupností do centra města. Je nově napojena na silnici vedoucí obchvatem města do Ohrazenic, což výrazně zrychluje spojení na dálnici směrem na Hradec Králové a Prahu. Jde tak o ideální místo pro ty, kteří hledají pohodlné a klidné bydlení s perfektní dopravní obslužností a veškerou občanskou vybaveností.

Na bytové jednotce neváznou žádné zástavy ani jiné právní omezení.

Prodávající si vyhrazuje právo vybrat kupujícího. V případě více zájemců rozhoduje vyšší cena.

Pro více informací nebo při zájmu o prohlídku nás neváhejte kontaktovat.

Parametry bytu

Stav
Rezervováno
Cena
5 490 000 Kč /za nemovitost Spočítat hypotéku
Aktualizováno
13. 4. 2026
Adresa
Luďka Matury, Pardubice, Studánka
ID
185
Stavba
Panelová
Stav objektu
Po rekonstrukci
Patro
5. z 8
Vybaveno
Ne
Vlastnictví
Osobní
Užitná plocha
62 m2
Podlahová plocha
62 m2
Třída energetické náročnosti
B - Velmi úsporná
Elektřina
230V
Odpad
Veřejná kanalizace
Topení
Ústřední dálkové
Komunikace
Asfaltová
Telekomunikace
Telefon, Internet, Kabelová televize
Doprava
Vlak, Dálnice, Silnice, MHD, Autobus
Voda
Vodovod
Topné těleso
Radiátory
Sklep
Bezbarierový přístup

Kontaktovat makléře

Realitní kancelář

Sen reality s.r.o.

Palackého třída 2020, Pardubice

Chystáte se prodat nemovitost?
Pomůžeme Vám!

Máte zájem o tento byt?

Tímto, v souladu s nařízením Evropského parlamentu a Rady (EU) 2016/679, v platném znění, prohlašuji, že mi je alespoň 16 let a uděluji tak svůj souhlas se zpracováním zadaných údajů (jméno, telefon, e-mail, ip adresa) společnosti B3 Technology, s.r.o., IČ: 07330600, se sídlem Novostavby 126/23, 435 11 Lom (správce dat), za účelem předání dotazu z tohoto formuláře Vámi vybranému inzerentovi a zpětného kontaktování mé osoby. Osobní údaje bude správce zpracovávat manuálně i automaticky přímo prostřednictvím svých zaměstnanců. Informace předané tímto formulářem budou uloženy v databázi správce maximálně po dobu 10 let. Odvolání souhlasu s uložením a zpracováním poskytnutých dat lze e-mailem na info@videobydleni.cz. V případě podezření na neoprávněné použití Vámi poskytnutých údajů máte právo předat podnět k šetření Úřadu pro ochranu osobních údajů. Více informací
Chystáte se prodat nemovitost?
Pomůžeme Vám!

Inzerát si prohlédlo 0 lidí

Prodejce

Pavel Šavrda

Pavel Šavrda

Hlídací pes

Chcete dostávat emailem podobné nabídky prodeje bytů 2+1 v Pardubicích?

Podobné nemovitosti


Nevyhovuje Vám typ bytu? Podívejte se na jiné kategorie bytů.


Vybrané články z našeho blogu