Prodej bytu 1+kk, Břeclav, 46 m2 (ID: 4236973)

Břeclav

4 800 000 Kč HYPOTÉKA od 21 453 Kč /za měsíc

(včetně provize RK)

Prémioví partneři v Břeclavi

Informace k bytu

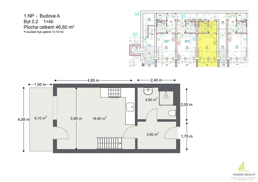
Prodej byty 1+kk, 46 m² - Břeclav

Nabízíme krásný byt 1+kk k prodeji v Břeclavi. S plochou 46 m² poskytuje dostatek prostoru pro pohodlné bydlení pro jednotlivce nebo pár. Byt se nachází v přízemí a disponuje moderním a útulným interiérem, je také vybaven vlastní klimatizací, tím zajistí příjemné a komfortní prostředí po celý rok. Vzhledem k výšce stropu, která činí 4,5 m na bytu naleznete i galerii, která je určená například pro vybudováno ložnice. Dále byt disponuje terasou o velikosti 5,5 m². K bytu přináleží kóje s vlastní přípojkou elektřiny.

Byt je součástí projektu Rezidence Za Bankou, jehož stavba započala v Prosinci 2024. Aktuálně jsou zde již vyhotoveny všechny jednotky včetně vnitřních příček, z velké části hotová fasáda, kde zbývá pouze část, kde se v následujících dnech bude budovat výtah. Dále se začíná s obkládáním koupelen. Dokončení projektu je v plánu na Q3/Q4 letošního roku.

V blízkosti se nachází veškerá občanská vybavenost, restaurace, obchody a zastávky MHD. Tato nemovitost je ideální pro ty, kteří hledají klidné a útulné bydlení v atraktivní lokalitě.

Parametry bytu

Cena
4 800 000 Kč Spočítat hypotéku
Poznámka k ceně
včetně provize RK
Aktualizováno
13. 4. 2026
Adresa
Břeclav
ID
A1.02
Stavba
Cihlová
Stav objektu
Po rekonstrukci
Lokalita objektu
Centrum obce
Vlastnictví
Osobní
Užitná plocha
46 m2
Třída energetické náročnosti
C - Úsporná
Ukazatel energetické náročnosti
85 kWh/m2 za rok

Kontaktovat makléře

Máte zájem o tento byt?

Tímto, v souladu s nařízením Evropského parlamentu a Rady (EU) 2016/679, v platném znění, prohlašuji, že mi je alespoň 16 let a uděluji tak svůj souhlas se zpracováním zadaných údajů (jméno, telefon, e-mail, ip adresa) společnosti B3 Technology, s.r.o., IČ: 07330600, se sídlem Novostavby 126/23, 435 11 Lom (správce dat), za účelem předání dotazu z tohoto formuláře Vámi vybranému inzerentovi a zpětného kontaktování mé osoby. Osobní údaje bude správce zpracovávat manuálně i automaticky přímo prostřednictvím svých zaměstnanců. Informace předané tímto formulářem budou uloženy v databázi správce maximálně po dobu 10 let. Odvolání souhlasu s uložením a zpracováním poskytnutých dat lze e-mailem na info@videobydleni.cz. V případě podezření na neoprávněné použití Vámi poskytnutých údajů máte právo předat podnět k šetření Úřadu pro ochranu osobních údajů. Více informací
Chystáte se prodat nemovitost?
Pomůžeme Vám!

Inzerát si prohlédlo 1 lidí

Prodejce

Ing. Eliška Hřebíková

Ing. Eliška Hřebíková

Hlídací pes

Chcete dostávat emailem podobné nabídky prodeje bytů 1+kk v Břeclavi?

Podobné nemovitosti


Nevyhovuje Vám typ bytu? Podívejte se na jiné kategorie bytů.


Vybrané články z našeho blogu