Prodej bytu 3+kk, Praha - Žižkov, Na rovnosti, 72 m2

Na rovnosti, Praha 3, Žižkov

10 900 000 Kč /za nemovitost HYPOTÉKA od 48 716 Kč /za měsíc
Prémioví partneři v Praze 3

Stěhovací služby

Výkup a prodej starého nábytku

Informace k bytu

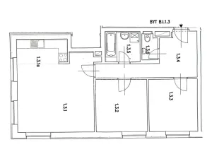
Nabízíme příjemný byt 3+kk, 72 m2 na Praze 3 - Žižkově v klidné lokalitě s garážovým stáním. Byt je situovaný ve zvýšeném přízemí bytového domu z roku 2007. Byt sestává z dvou samostatných ložnic a obývacího pokoje s kuchyňským koutem. Dále koupelna s vanou a samostatné WC. Všechny pokoje mají samostatné vstupy z předsíně. Okna z ložnic jsou směrem na východ, obývací pokoj má okna na jih a východ. Na podlahách jsou v pokojích parkety a ostatních místnostech dlažba. Dřevěná euro okna s vnitřními kovovými roletami, dřevěné interiérové dveře a obložkové zárubně. K bytu náleží garážové stání a sklep (2 m2). Možnost využívat klidný zelený vnitroblok. Výborná dostupnost do centra města. Tramvajová zastávka Chmelnice cca 7 min pěšky od domu, autobusová zastávka Vackov cca 2 min pěšky od domu. Veškerá občanská vybavenost v docházkové vzdálenosti, včetně dvou ZŠ. Hypotéku vám vyřídíme zdarma. Volejte a domluvte si prohlídku.

Parametry bytu

Cena
10 900 000 Kč /za nemovitost Spočítat hypotéku
Aktualizováno
13. 4. 2026
Adresa
Na rovnosti, Praha 3, Žižkov
ID
15580
Stavba
Cihlová
Stav objektu
Velmi dobrý
Patro
1. z 5
Typ objektu
Patrový
Vlastnictví
Osobní
Užitná plocha
72 m2
Podlahová plocha
74 m2
Třída energetické náročnosti
B - Velmi úsporná
Odpad
Veřejná kanalizace
Komunikace
Asfaltová
Telekomunikace
Internet
Doprava
MHD
Voda
Vodovod
Sklep
Bezbarierový přístup

Kontaktovat makléře

Realitní kancelář

Logo QARA, s.r.o.

QARA, s.r.o.

Šafaříkova 201/17, Praha

Chystáte se prodat nemovitost?
Pomůžeme Vám!

Máte zájem o tento byt?

Tímto, v souladu s nařízením Evropského parlamentu a Rady (EU) 2016/679, v platném znění, prohlašuji, že mi je alespoň 16 let a uděluji tak svůj souhlas se zpracováním zadaných údajů (jméno, telefon, e-mail, ip adresa) společnosti B3 Technology, s.r.o., IČ: 07330600, se sídlem Novostavby 126/23, 435 11 Lom (správce dat), za účelem předání dotazu z tohoto formuláře Vámi vybranému inzerentovi a zpětného kontaktování mé osoby. Osobní údaje bude správce zpracovávat manuálně i automaticky přímo prostřednictvím svých zaměstnanců. Informace předané tímto formulářem budou uloženy v databázi správce maximálně po dobu 10 let. Odvolání souhlasu s uložením a zpracováním poskytnutých dat lze e-mailem na info@videobydleni.cz. V případě podezření na neoprávněné použití Vámi poskytnutých údajů máte právo předat podnět k šetření Úřadu pro ochranu osobních údajů. Více informací
Chystáte se prodat nemovitost?
Pomůžeme Vám!

Inzerát si prohlédlo 1 lidí

Prodejce

Aleš Hanzlíček

Aleš Hanzlíček

Hlídací pes

Chcete dostávat emailem podobné nabídky prodeje bytů 3+kk v Praze 3?

Podobné nemovitosti


Nevyhovuje Vám typ bytu? Podívejte se na jiné kategorie bytů.


Vybrané články z našeho blogu