Pronájem bytu 1+1, Praha - Nusle, 5. května, 36 m2

5. května, Nusle - Praha 4

16 900 Kč /za měsíc Získejte výhodnou HYPOTÉKU

(vratná jistota, náklady na bydlení 3 774 Kč, poplatek za podnájem)

Prémioví partneři v Praze 4

Stěhovací služby

Výkup a prodej starého nábytku

Informace k bytu

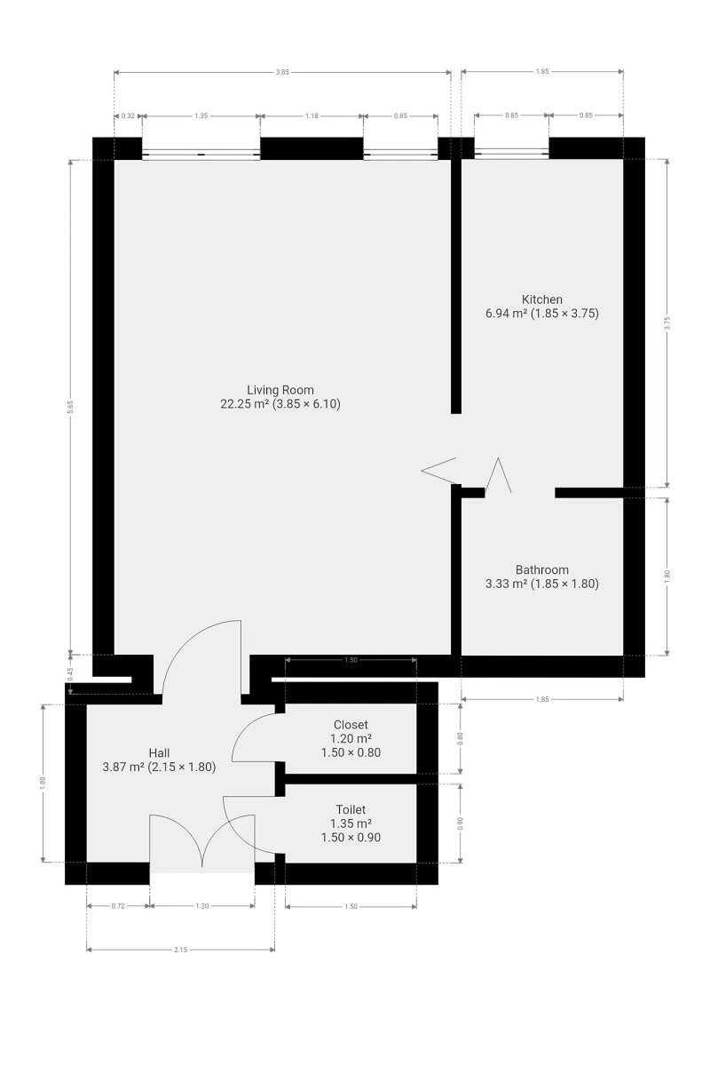
K dlouhodobému podnájmu nabízíme byt o dispozici 1+kk (prakticky řešený jako 1+1) a výměře 36 m², který se nachází ve 2. patře udržovaného zděného domu s výtahem v oblíbené lokalitě Praha 4 – Nusle.

Byt nabízí příjemné bydlení s praktickým rozložením a dostatkem denního světla. Je nabízen jako částečně zařízený, což poskytuje ideální kombinaci komfortu a možnosti doladit si interiér podle vlastního vkusu.

Velkým benefitem je klimatizace, která zajišťuje jak chlazení v letních měsících, tak i vytápění bytu. Ohřev vody je řešen bojlerem.

Kuchyňský kout je vybaven kuchyňskou linkou s plynovou varnou deskou, digestoří, mikrovlnnou troubou, lednicí s mrazákem a pračkou. Součástí je také jídelní stůl se židlemi.

Obytná část je vybavena pohovkou, stolem a dalším drobným nábytkem. Koupelna disponuje vanou, umyvadlem, zrcadlem a koupelnovou skříňkou. Výhodou je oddělené WC a praktická komora, která nabízí další úložný prostor.

Lokalita nabízí výbornou dopravní dostupnost a zároveň je byt situován v blízkosti hlavní komunikace.

V blízkosti domu se nachází obchodní centrum Arkády Pankrác s širokou nabídkou obchodů, služeb i restaurací. Stanice metra C – Pražského povstání je v docházkové vzdálenosti.

Byt je ideální pro jednotlivce nebo pár, kteří hledají komfortní bydlení v širším centru s dobrou dostupností.

K dispozici ihned.

V případě zájmu nám napište krátkou zprávu o sobě a rádi se vám ozveme s termínem prohlídky.

Parametry bytu

Cena
16 900 Kč /za měsíc
Poznámka k ceně
vratná jistota, náklady na bydlení 3 774 Kč, poplatek za podnájem
Aktualizováno
26. 4. 2026
Adresa
5. května, Nusle - Praha 4
ID
N7572
Stavba
Cihlová
Stav objektu
Velmi dobrý
Patro
3. z 6
Vybaveno
Částečně
Typ objektu
Patrový
Lokalita objektu
Klidná část obce
Vlastnictví
Osobní
Užitná plocha
36 m2
Podlahová plocha
36 m2
Elektřina
230V
Plyn
Plynovod
Topení
Lokální elektrické
Doprava
Vlak, Dálnice, Silnice, MHD, Autobus
Voda
Vodovod
Sklep
Výtah

Kontaktovat makléře

Máte zájem o tento byt?

Tímto, v souladu s nařízením Evropského parlamentu a Rady (EU) 2016/679, v platném znění, prohlašuji, že mi je alespoň 16 let a uděluji tak svůj souhlas se zpracováním zadaných údajů (jméno, telefon, e-mail, ip adresa) společnosti B3 Technology, s.r.o., IČ: 07330600, se sídlem Novostavby 126/23, 435 11 Lom (správce dat), za účelem předání dotazu z tohoto formuláře Vámi vybranému inzerentovi a zpětného kontaktování mé osoby. Osobní údaje bude správce zpracovávat manuálně i automaticky přímo prostřednictvím svých zaměstnanců. Informace předané tímto formulářem budou uloženy v databázi správce maximálně po dobu 10 let. Odvolání souhlasu s uložením a zpracováním poskytnutých dat lze e-mailem na info@videobydleni.cz. V případě podezření na neoprávněné použití Vámi poskytnutých údajů máte právo předat podnět k šetření Úřadu pro ochranu osobních údajů. Více informací
Chystáte se prodat nemovitost?
Pomůžeme Vám!

Inzerát si prohlédlo 9 lidí

Prodejce

Miloslava Kačerová

Miloslava Kačerová

Hlídací pes

Chcete dostávat emailem podobné nabídky pronájmu bytů 1+1 v Praze 4?

Podobné nemovitosti


Nevyhovuje Vám typ bytu? Podívejte se na jiné kategorie bytů.


Vybrané články z našeho blogu