Prodej bytu 2+1, Praha - Strašnice, Kružberská, 51 m2 (ID: 4237343)

Kružberská, Praha 10, Strašnice

7 390 000 Kč /za nemovitost HYPOTÉKA od 33 029 Kč /za měsíc
Prémioví partneři v Praze 10

Stěhovací služby

Výkup a prodej starého nábytku

Informace k bytu

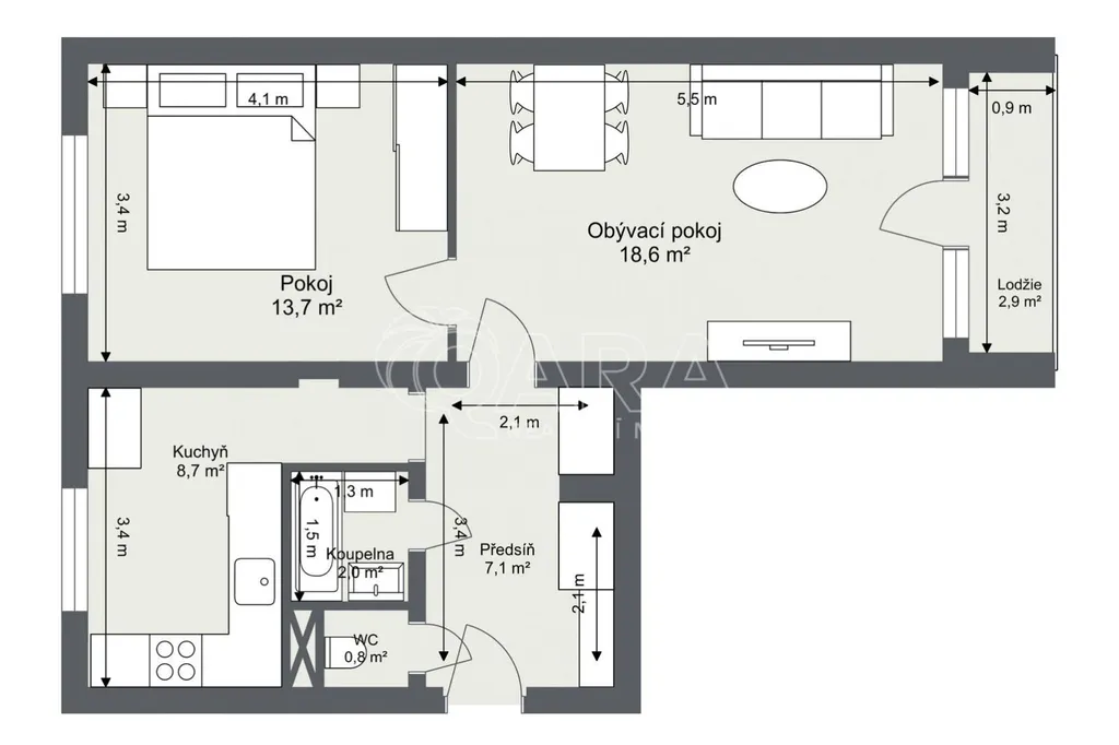
Hledáte bydlení v klidné a žádané lokalitě? Nabízím k prodeji světlý byt 2+1 o výměře 51,1 m v pražských Strašnicích. K bytu náleží lodžie (2,8 m), která je přístupná z obývacího pokoje a sklep (2 m).

Samotný byt je v udržovaném stavu se zděným jádrem. Případně je připraven pro úpravy a modernizace dle vlastních představ nového majitele. Byt má prostornou předsíň (7,2 m), kde lze vytvořit dostatek úložných prostor. WC a koupelna jsou oddělené. Měsíční náklady na bydlení činí 2 409 Kč (plus elektřina a plyn dle dodavatele).

Lokalita Strašnic patří mezi žádané části Prahy díky skvělé kombinaci klidného prostředí a dobré dostupnosti do centra. Stanice metra Strašnická je vzdálena pouhých 5 minut chůze. V okolí se nachází kompletní občanská vybavenost - obchody, restaurace, školy, školky i sportovní a volnočasové vyžití.

Cena bytu je 7 390 000,- Kč, včetně provize, právního servisu, bezpečné úschovy a všech poplatků. Byt je možné financovat hypotékou, s čímž vám rád pomůže náš hypoteční specialista. Pro více informací nebo domluvení prohlídky mě neváhejte kontaktovat.

Parametry bytu

Cena
7 390 000 Kč /za nemovitost Spočítat hypotéku
Aktualizováno
14. 4. 2026
Adresa
Kružberská, Praha 10, Strašnice
ID
1106
Stavba
Panelová
Stav objektu
Velmi dobrý
Patro
3. z 5
Vybaveno
Ne
Typ objektu
Patrový
Vlastnictví
Osobní
Užitná plocha
51 m2
Podlahová plocha
55 m2
Třída energetické náročnosti
E - Nehospodárná
Ukazatel energetické náročnosti
198 kWh/m2 za rok
Elektřina
230V
Plyn
Plynovod
Odpad
Veřejná kanalizace
Komunikace
Asfaltová
Voda
Vodovod
Sklep
Lodžie
Bezbarierový přístup

Kontaktovat makléře

Realitní kancelář

Logo QARA, s.r.o.

QARA, s.r.o.

Šafaříkova 201/17, Praha

Chystáte se prodat nemovitost?
Pomůžeme Vám!

Máte zájem o tento byt?

Tímto, v souladu s nařízením Evropského parlamentu a Rady (EU) 2016/679, v platném znění, prohlašuji, že mi je alespoň 16 let a uděluji tak svůj souhlas se zpracováním zadaných údajů (jméno, telefon, e-mail, ip adresa) společnosti B3 Technology, s.r.o., IČ: 07330600, se sídlem Novostavby 126/23, 435 11 Lom (správce dat), za účelem předání dotazu z tohoto formuláře Vámi vybranému inzerentovi a zpětného kontaktování mé osoby. Osobní údaje bude správce zpracovávat manuálně i automaticky přímo prostřednictvím svých zaměstnanců. Informace předané tímto formulářem budou uloženy v databázi správce maximálně po dobu 10 let. Odvolání souhlasu s uložením a zpracováním poskytnutých dat lze e-mailem na info@videobydleni.cz. V případě podezření na neoprávněné použití Vámi poskytnutých údajů máte právo předat podnět k šetření Úřadu pro ochranu osobních údajů. Více informací
Chystáte se prodat nemovitost?
Pomůžeme Vám!

Inzerát si prohlédlo 12 lidí

Prodejce

Vojtěch Gřunděl

Vojtěch Gřunděl

Hlídací pes

Chcete dostávat emailem podobné nabídky prodeje bytů 2+1 v Praze 10?

Podobné nemovitosti


Nevyhovuje Vám typ bytu? Podívejte se na jiné kategorie bytů.


Vybrané články z našeho blogu