Prodej rodinného domu, Přelouč, Gagarinova, 161 m2 (ID: 4237428)

Gagarinova, Přelouč

7 500 000 Kč /za nemovitost HYPOTÉKA od 33 520 Kč /za měsíc
Prémioví partneři v Přelouči

Informace k domu

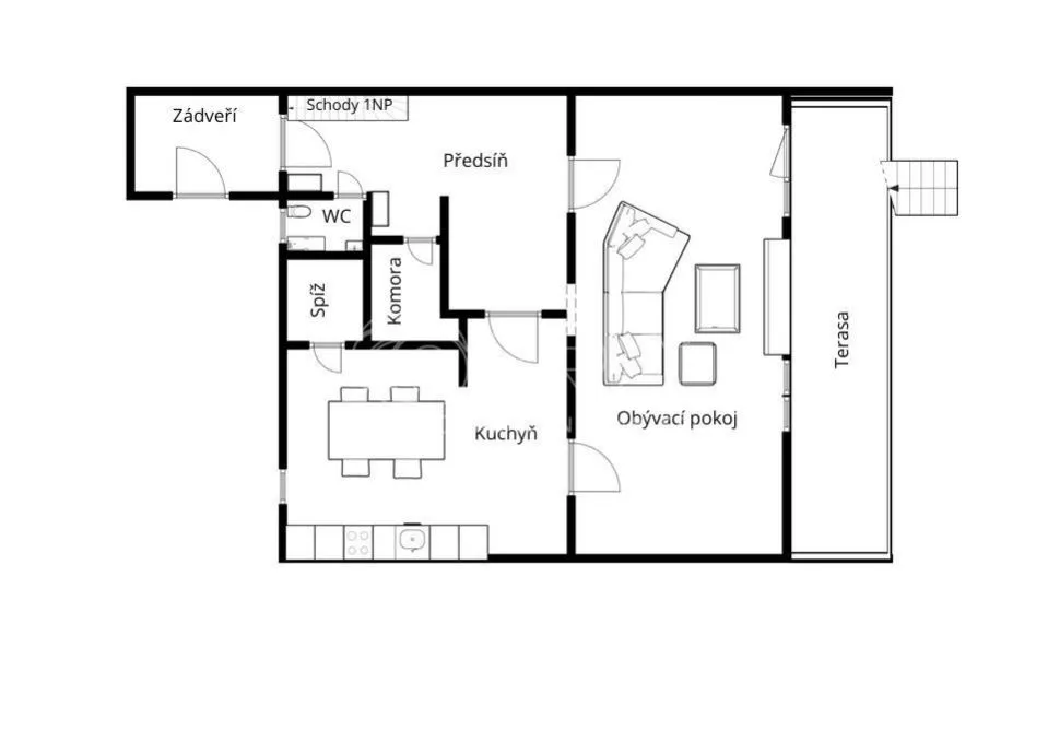
Nabízíme k prodeji řadový rodinný dům o dispozici 4+1, situovaný na adrese Gagarinova Č. p. 1213, Přelouč, okres Pardubice. Tento dvoupodlažní dům má zastavěnou plochu 89 m a užitnou plochu 161 m, což poskytuje dostatek prostoru pro rodinné bydlení. Celková plocha parcely činí 333 m, zahrada má pak výměru 218 m.

Vytápění objektu je zajištěno plynovým kotlem a kotlem na tuhá paliva, přičemž topení je rozvedeno do radiátorů. Odpad je napojen na kanalizaci a přívod vody zajišťuje vodovod.

Nemovitost je kompletně podsklepena, s plochou sklepa 66 m, což poskytuje dostatek úložného prostoru. Součástí domu je také garáž o výměře 23 m, ideální pro bezpečné parkování.

Ve druhém patře se nachází tři prostorné pokoje, z nichž dva jsou propojené balkonem, což poskytuje příjemné výhledy a možnost relaxace na čerstvém vzduchu. Obývací pokoj je propojen s terasou o výměře 21 m, ze které se dostanete přímo na zahradu. Tato zahrada je vynikajícím místem pro rodinné oslavy či odpočinek a nabízí prostor pro pěstování rostlin nebo zahradničení.

Dům je připraven na rekonstrukci, což umožňuje novému majiteli přizpůsobit si interiér podle vlastních představ a potřeb. Konečná úprava domu může být skvělou příležitostí pro realizaci vlastního stylu bydlení.

Dům se nachází v klidné lokalitě, která nabízí pohodlné spojení s okolní infrastrukturou, a to včetně vlakového a autobusového spojení.

V případě zájmu o prohlídku nás neváhejte kontaktovat.

Parametry domu

Cena
7 500 000 Kč /za nemovitost Spočítat hypotéku
Aktualizováno
13. 4. 2026
Adresa
Gagarinova, Přelouč
ID
Prodej domu Gagarino
Stavba
Cihlová
Stav objektu
Před rekonstrukcí
Vybaveno
Ne
Typ objektu
Patrový
Druh objektu
Řadový
Užitná plocha
161 m2
Zastavěná plocha
89 m2
Podlahová plocha
161 m2
Plocha pozemku
333 m2
Plocha zahrady
218 m2
Třída energetické náročnosti
G - Mimořádně nehospodárná
Plyn
Plynovod
Odpad
Veřejná kanalizace
Komunikace
Betonová
Doprava
Vlak, Silnice, Autobus
Voda
Vodovod
Garáž
Sklep
Bezbarierový přístup

Kontaktovat makléře

Realitní kancelář

Logo QARA, s.r.o.

QARA, s.r.o.

Šafaříkova 201/17, Praha

Chystáte se prodat nemovitost?
Pomůžeme Vám!

Máte zájem o tento dům?

Tímto, v souladu s nařízením Evropského parlamentu a Rady (EU) 2016/679, v platném znění, prohlašuji, že mi je alespoň 16 let a uděluji tak svůj souhlas se zpracováním zadaných údajů (jméno, telefon, e-mail, ip adresa) společnosti B3 Technology, s.r.o., IČ: 07330600, se sídlem Novostavby 126/23, 435 11 Lom (správce dat), za účelem předání dotazu z tohoto formuláře Vámi vybranému inzerentovi a zpětného kontaktování mé osoby. Osobní údaje bude správce zpracovávat manuálně i automaticky přímo prostřednictvím svých zaměstnanců. Informace předané tímto formulářem budou uloženy v databázi správce maximálně po dobu 10 let. Odvolání souhlasu s uložením a zpracováním poskytnutých dat lze e-mailem na info@videobydleni.cz. V případě podezření na neoprávněné použití Vámi poskytnutých údajů máte právo předat podnět k šetření Úřadu pro ochranu osobních údajů. Více informací
Chystáte se prodat nemovitost?
Pomůžeme Vám!

Inzerát si prohlédlo 1 lidí

Prodejce

Jan Kozák

Jan Kozák

Hlídací pes

Chcete dostávat emailem podobné nabídky prodeje rodinných domů v Přelouči?

Podobné nemovitosti


Nevyhovuje Vám typ domu? Podívejte se na jiné kategorie domů.


Vybrané články z našeho blogu