Prodej bytu 3+kk, Praha - Michle, U michelského mlýna, 180 m2

U michelského mlýna, Praha, Michle

29 999 000 Kč /za nemovitost HYPOTÉKA od 134 077 Kč /za měsíc
Prémioví partneři v Praze 4

Stěhovací služby

Výkup a prodej starého nábytku

Informace k bytu

Luxusní byt 3+kk s terasou, zimní zahradou, balkonem, garáži a venkovním parkovacím místem navíc, v prémialní luxury rezidenci U Michelského mlýna 1492, Praha 4 - Michle (ulice U Michelského Mlýna)

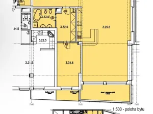
Nabízíme k prodeji naprosto výjimečný a nadstandardní byt o dispozici 3+kk+B+T+ZZ, situovaný v prestižní lokalitě širšího centra Prahy na rozhraní Nuslí a Michle. Tento exkluzivní prostor o celkové ploše 180,6 m² splňuje i ty nejnáročnější požadavky na moderní a komfortní bydlení.

Dominantou bytu je prostorný a světlý obývací pokoj 67,58 m2 s kuchyňským koutem, který je ideálním místem pro každodenní život i reprezentaci. Byt je promyšlený do posledního detailu a nabízí velkorysé množství úložných prostor.

Součástí bytu jsou:

* terasa o velikosti 12 m², ideální pro relaxaci
* zimní zahrada 11 m², která rozšiřuje obytný prostor a přináší jedinečnou atmosféru
* balkon 3,6 m²
* sklepní kóje 3 m²
* 2x parkovací stání (1x v garáži, 1x kryté pod domem)

Celková užitná plocha bytu včetně venkovních prostor činí 180,6 m².

Byt je vybaven řadou nadstandardních prvků:

* centrální klimatizace
* venkovní žaluzie
* podlahové vytápění v koupelnách
* kvalitní dřevěné podlahy
* ⁠centrální vysavač

Rezidenti domu mají k dispozici jen pro sebe soukromé wellness zázemí:

* bazén
* sauna
* fitness

Samozřejmostí je také recepce a celý objekt je pod nepřetržitým kamerovým systémem, což zajišťuje maximální komfort, soukromí a bezpečí.

Tato nemovitost představuje unikátní příležitost pro ty, kteří hledají luxusní bydlení v klidné části v centru Prahy s výbornou dostupnosti do Muzea, I.P.Pavlova, náměstí Míru, Vyšehradu apod., centra a kompletní občanskou vybaveností - škola, škola, obchůdky, parky, restaurace, kavárny, divadlo, lékárny, městská knihovna, tramvajové a autobusové zastávky apod.

Parametry bytu

Cena
29 999 000 Kč /za nemovitost Spočítat hypotéku
Aktualizováno
13. 4. 2026
Adresa
U michelského mlýna, Praha, Michle
Stavba
Cihlová
Stav objektu
Novostavba
Patro
2.
Vlastnictví
Osobní
Užitná plocha
180 m2
Balkon
Garáž
Sklep
Terasa
Parkování
Bazén

Kontaktovat makléře

Realitní kancelář

Amaranta

U michelského mlýna 1492/35, Praha

Chystáte se prodat nemovitost?
Pomůžeme Vám!

Máte zájem o tento byt?

Tímto, v souladu s nařízením Evropského parlamentu a Rady (EU) 2016/679, v platném znění, prohlašuji, že mi je alespoň 16 let a uděluji tak svůj souhlas se zpracováním zadaných údajů (jméno, telefon, e-mail, ip adresa) společnosti B3 Technology, s.r.o., IČ: 07330600, se sídlem Novostavby 126/23, 435 11 Lom (správce dat), za účelem předání dotazu z tohoto formuláře Vámi vybranému inzerentovi a zpětného kontaktování mé osoby. Osobní údaje bude správce zpracovávat manuálně i automaticky přímo prostřednictvím svých zaměstnanců. Informace předané tímto formulářem budou uloženy v databázi správce maximálně po dobu 10 let. Odvolání souhlasu s uložením a zpracováním poskytnutých dat lze e-mailem na info@videobydleni.cz. V případě podezření na neoprávněné použití Vámi poskytnutých údajů máte právo předat podnět k šetření Úřadu pro ochranu osobních údajů. Více informací
Chystáte se prodat nemovitost?
Pomůžeme Vám!

Inzerát si prohlédlo 1 lidí

Prodejce

Viktoria Kalimbet

Viktoria Kalimbet

Hlídací pes

Chcete dostávat emailem podobné nabídky prodeje bytů 3+kk v Praze 4?

Podobné nemovitosti


Nevyhovuje Vám typ bytu? Podívejte se na jiné kategorie bytů.


Vybrané články z našeho blogu