Prodej bytu 3+1, Kladno - Kročehlavy, Italská, 74 m2 (ID: 4237856)

Italská, Kročehlavy

6 190 000 Kč /za nemovitost HYPOTÉKA od 27 666 Kč /za měsíc
Prémioví partneři v Kladně

Informace k bytu

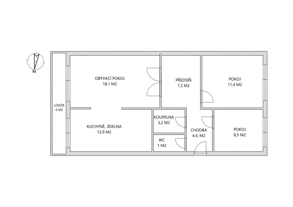
Nabízíme ke prodeji byt o dispozici 3+1 v Italské ulici v Kladně, o celkové ploše 74 m včetně lodžie o velikosti 6 m a komory 1 m2. Byt se nachází ve 4. patře panelového domu a nabízí praktické uspořádání i příjemnou orientaci. Lodžie je vedena přes obývací pokoj a kuchyni a je orientována na jihovýchod, což zajišťuje dostatek denního světla, zatímco dvě ložnice směřují na severozápad a poskytují klidné zázemí.

V bytě jsou plastová okna se žaluziemi a v předsíni se nachází vestavěná skříň. Bytové jádro je nové, provedené ze sádrokartonu, včetně rozvodů, jinak je jednotka v původním stavu, což nabízí možnost rekonstrukce dle vlastních představ. Na podlahách jsou lino a koberce. Kuchyň je vybavena bílou lesklou kuchyňskou linkou.

K bytu náleží praktická komora umístěná na patře a sklepní kóje.

Dům prošel kompletní revitalizací, která zahrnovala nový výtah, výměnu všech rozvodů, nový vstup do domu, zateplení fasády i střechy a instalaci nových plastových oken, což přináší vyšší komfort i energetickou úsporu.
Lokalita patří mezi velmi vyhledávané díky kompletní občanské vybavenosti a výborné dopravní dostupnosti. Přímo za domem se nachází Kaufland a McDonalds, v okolí jsou dále školy, školky, Tesco, Lidl, zastávky MHD i cyklostezka. Výhodou je také rychlá dostupnost vlakového i autobusového spojení a pohodlné napojení směrem na Prahu.

Byt je vhodný jak pro rodinné bydlení, tak jako investiční příležitost díky lokalitě, dispozici a stavu domu po revitalizaci

Parametry bytu

Cena
6 190 000 Kč /za nemovitost Spočítat hypotéku
Aktualizováno
13. 4. 2026
Adresa
Italská, Kročehlavy
ID
19051
Stavba
Panelová
Stav objektu
Velmi dobrý
Patro
5. z 10
Typ objektu
Patrový
Vlastnictví
Osobní
Užitná plocha
74 m2
Podlahová plocha
74 m2
Třída energetické náročnosti
B - Velmi úsporná
Ukazatel energetické náročnosti
53 kWh/m2 za rok
Elektřina
230V
Plyn
Plynovod
Odpad
Veřejná kanalizace
Komunikace
Asfaltová
Doprava
Vlak, Dálnice, Silnice, MHD, Autobus
Voda
Vodovod
Sklep
Lodžie
Bezbarierový přístup

Kontaktovat makléře

Realitní kancelář

Logo QARA, s.r.o.

QARA, s.r.o.

Šafaříkova 201/17, Praha

Chystáte se prodat nemovitost?
Pomůžeme Vám!

Máte zájem o tento byt?

Tímto, v souladu s nařízením Evropského parlamentu a Rady (EU) 2016/679, v platném znění, prohlašuji, že mi je alespoň 16 let a uděluji tak svůj souhlas se zpracováním zadaných údajů (jméno, telefon, e-mail, ip adresa) společnosti B3 Technology, s.r.o., IČ: 07330600, se sídlem Novostavby 126/23, 435 11 Lom (správce dat), za účelem předání dotazu z tohoto formuláře Vámi vybranému inzerentovi a zpětného kontaktování mé osoby. Osobní údaje bude správce zpracovávat manuálně i automaticky přímo prostřednictvím svých zaměstnanců. Informace předané tímto formulářem budou uloženy v databázi správce maximálně po dobu 10 let. Odvolání souhlasu s uložením a zpracováním poskytnutých dat lze e-mailem na info@videobydleni.cz. V případě podezření na neoprávněné použití Vámi poskytnutých údajů máte právo předat podnět k šetření Úřadu pro ochranu osobních údajů. Více informací
Chystáte se prodat nemovitost?
Pomůžeme Vám!

Inzerát si prohlédlo 1 lidí

Prodejce

Ing. Marek Kotík

Ing. Marek Kotík

Hlídací pes

Chcete dostávat emailem podobné nabídky prodeje bytů 3+1 v Kladně?

Podobné nemovitosti


Nevyhovuje Vám typ bytu? Podívejte se na jiné kategorie bytů.


Vybrané články z našeho blogu