Pronájem bytu 3+kk, Praha - Vinohrady, Nad Primaskou, 56 m2 (ID: 4238014)

Nad Primaskou, Praha 10, Vinohrady

24 000 Kč /za měsíc Získejte výhodnou HYPOTÉKU

(Cena za měsíční pronájem bytu činí 24 000 Kč + poplatky ve výši 3 300 Kč, elektřina se převádí na ná)

Prémioví partneři v Praze 10

Stěhovací služby

Výkup a prodej starého nábytku

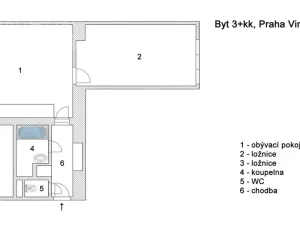
Informace k bytu

Nabízíme vám byt k pronájmu ve vyhledávané atraktivní čtvrti na pražských Vinohradech. Jedná se o klidnou lokalitu u vilkové čtvrti nedaleko stanice Metra A Strašnická.

V zastoupení majitele nabízíme pronájem příjemného bytu po celkové rekonstrukci, v úžasné pražské čtvrti v bloku cihlových domů které prošly částečnou revitalizací plastová okna, nový výtah a rozvody. Prestižní adresa se snadnou dostupností do centra a zároveň okolí plné zeleně, obchůdků a restaurací.

Byt 3+kk o podlahové ploše 56 m2 se nachází ve 5. nadzemním podlaží cihlového domu ze 70. let. Náleží k němu zděný sklep, který má další 2 m2. Obývací pokoj s kuchyní a menší pokoj jsou orientovány na sever do vnitrobloku a na jižní straně do ulice se nachází větší z ložnic.

Byt prošel v tomto roce celkovou rekonstrukcí vznikla nová větší koupelna s vanou a výklenkem pro pračku a sušičku, nový kuchyňský kout s indukční varnou deskou, elektrickou troubou, myčkou, digestoří a lednicí. Nové jsou rozvody vody a elektřiny, vinylové podlahy, dveře vč. vstupních a úložné prostory v chodbě.

Okolí je plné zeleně, parků a sportovišť. Prolíná se tu městský životní styl s přírodou a sportovním vyžitím. Zde budete žít ve velmi zajímavé a žádané lokalitě. Tady budete bydlet na tom správném místě.

Cena za měsíční pronájem bytu činí 24 000 Kč + poplatky (vč. tepla) ve výši 3 300 Kč, elektřina se převádí na nájemce. Kauce je ve výši 48 000 Kč. Odměna RK jeden měsíční nájem.

Zaujala vás tato nabídka? Hledáte klidný domov pro svou rodinu a zároveň chcete využívat možnosti městského zázemí?

Neváhejte a sjednejte si přesný termín a čas prohlídky. Budu se na vás těšit.

Parametry bytu

Cena
24 000 Kč /za měsíc
Poznámka k ceně
Cena za měsíční pronájem bytu činí 24 000 Kč + poplatky ve výši 3 300 Kč, elektřina se převádí na ná
Aktualizováno
13. 4. 2026
Adresa
Nad Primaskou, Praha 10, Vinohrady
ID
19272
Stavba
Cihlová
Stav objektu
Po rekonstrukci
Patro
5. z 5
Vybaveno
Ne
Typ objektu
Patrový
Vlastnictví
Osobní
Užitná plocha
56 m2
Podlahová plocha
58 m2
Třída energetické náročnosti
E - Nehospodárná
Plyn
Plynovod
Odpad
Veřejná kanalizace
Komunikace
Asfaltová
Voda
Vodovod
Sklep
Bezbarierový přístup

Kontaktovat makléře

Máte zájem o tento byt?

Tímto, v souladu s nařízením Evropského parlamentu a Rady (EU) 2016/679, v platném znění, prohlašuji, že mi je alespoň 16 let a uděluji tak svůj souhlas se zpracováním zadaných údajů (jméno, telefon, e-mail, ip adresa) společnosti B3 Technology, s.r.o., IČ: 07330600, se sídlem Novostavby 126/23, 435 11 Lom (správce dat), za účelem předání dotazu z tohoto formuláře Vámi vybranému inzerentovi a zpětného kontaktování mé osoby. Osobní údaje bude správce zpracovávat manuálně i automaticky přímo prostřednictvím svých zaměstnanců. Informace předané tímto formulářem budou uloženy v databázi správce maximálně po dobu 10 let. Odvolání souhlasu s uložením a zpracováním poskytnutých dat lze e-mailem na info@videobydleni.cz. V případě podezření na neoprávněné použití Vámi poskytnutých údajů máte právo předat podnět k šetření Úřadu pro ochranu osobních údajů. Více informací
Chystáte se prodat nemovitost?
Pomůžeme Vám!

Inzerát si prohlédlo 0 lidí

Prodejce

Mgr. Jana Čermochová

Mgr. Jana Čermochová

Hlídací pes

Chcete dostávat emailem podobné nabídky pronájmu bytů 3+kk v Praze 10?

Podobné nemovitosti


Nevyhovuje Vám typ bytu? Podívejte se na jiné kategorie bytů.


Vybrané články z našeho blogu