Prodej bytu 5+kk, Lelekovice, Zahumení, 151 m2 (ID: 4238158)

Zahumení, Lelekovice

22 990 000 Kč /za nemovitost HYPOTÉKA od 102 751 Kč /za měsíc

(včetně provize, včetně právního servisu)

Prémioví partneři v Lelekovicích

Informace k bytu

Světlo, prostor a přirozená krása dřeva

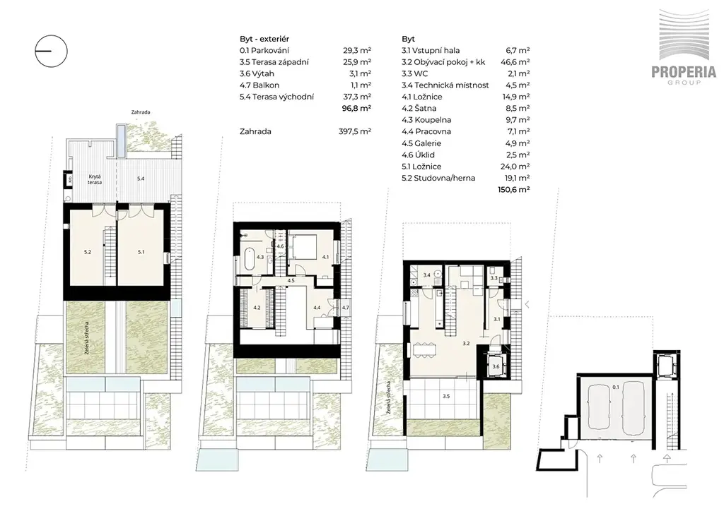
Na velkorysé ploše 150,6 m² se otevírá světlý a vzdušný byt o dispozici 5+KK, který nabízí výjimečné spojení komfortního bydlení, promyšlené architektury a kontaktu s přírodou. Součástí bytu je balkon a dvě terasy o celkové výměře 64,3 m², které rozšiřují obytný prostor a vytvářejí ideální místo pro odpočinek i setkávání s rodinou a přáteli.

První úroveň – srdce domova
Západně orientovaná terasa je propojena s hlavním obytným prostorem velkým HS portálem, díky němuž se interiér přirozeně otevírá do exteriéru. Obytná část plynule propojuje kuchyni, jídelnu i obývací prostor a působí vzdušně a otevřeně. Vstupní hala je přístupná jak po schodišti, tak výtahem, a nabízí samostatnou toaletu. Praktickým doplňkem je technická místnost s prádelnou, která navazuje na kuchyňskou část.

Druhá úroveň – soukromí a klid
Z galerie je přístupná ložnice, pracovna s balkonem, šatna a koupelna doplněná o samostatný prostor pro pračku a sklad.

Třetí úroveň – prostor pro fantazii
Nejvyšší úroveň nabízí velkou ložnici s navazujícím obytným prostorem, který lze využít jako pracovnu, hernu, fitness nebo domácí wellness. Prostor disponuje stavební přípravou pro vybudování samostatné koupelny. Východně orientovaná, částečně krytá terasa s krbem, venkovní kuchyní a dřevníkem míří do klidné soukromé zahrady o celkové ploše 397,5 m² a poskytuje dostatek soukromí i prostoru pro relaxaci.

Byt je vytápěn tepelným čerpadlem země–voda (vrt o hloubce 120 m) s podlahovým topením a v letních měsících chlazen klimatizační jednotkou. Standard vybavení bytu zahrnuje zabezpečovací systém Jablotron, holandské podlahy z přírodního marmolea, velkoformátové keramické obklady ze Španělska, svítidla Ateh, dřevěné dveře s magnetickým zavíráním a klikami Holar i dřevěná okna od firmy Janošík. Zařizovací předměty pochází od značky Laufen, baterie od Hansgrohe. Stěny nesou lehce opravitelné sádrové omítky, stropy tvoří smrkové biodesky s přiznanými BSH hranoly. Střecha je krytá zelení s možností instalace solárních panelů.

Součástí bytu je také prostorná garáž pro dva automobily.

Obec Lelekovice patří mezi vyhledávané lokality v bezprostřední blízkosti Brna, kde se snoubí klid a zdraví venkova s vybaveností města. Do centra Brna se autem dostanete přibližně za 15 minut. V docházkové vzdálenosti je mateřská i základní škola, obchod, zdravotní středisko, pošta i sportoviště. Okolní krajina plná lesů, cyklostezek a turistických tras vedoucích do okolí Moravského krasu, Lipůvky či Vranova nabízí ideální podmínky pro aktivní odpočinek i relaxaci v přírodě.

Autorsky je návrh tohoto bytu podepsán společností Atelier 90, která působí na architektonické scéně již 35 let a je nositelem řady ocenění (Grand prix obce architektů, Cena za vynikající design, Cena inženýrské komory, Stavba roku Kraje Vysočina atd.). Mimo kulturních a kongresových center byly podle projektů A90 postaveny mnohé bytové domy a obytné soubory v Praze, Brně, Jihlavě a Dobřichovicích. Do portfolia A90 se řadí také rodinné domy, vily, územní plány, muzejní expozice a rekonstrukce či dostavby významných budov (budova Českého rozhlasu v Praze, Ústavní soud v Brně, dostavba Mohyly míru atd.).

Parametry bytu

Cena
22 990 000 Kč /za nemovitost Spočítat hypotéku
Poznámka k ceně
včetně provize, včetně právního servisu
Aktualizováno
13. 4. 2026
Adresa
Zahumení, Lelekovice
ID
03775
Stavba
Smíšená
Stav objektu
Novostavba
Patro
3. z 4
Vybaveno
Ne
Lokalita objektu
Klidná část obce
Vlastnictví
Osobní
Užitná plocha
151 m2
Podlahová plocha
247 m2
Plocha zahrady
398 m2
Třída energetické náročnosti
A - Mimořádně úsporná
Ukazatel energetické náročnosti
46.3 kWh/m2 za rok
Elektřina
230V
Odpad
Veřejná kanalizace
Komunikace
Asfaltová
Telekomunikace
Internet, Kabelové rozvody
Doprava
Silnice, Autobus
Voda
Vodovod
Topné těleso
Podlahové vytápění
Zdroj topení
Tepelné čerpadlo
Zdroj teplé vody
Tepelné čerpadlo
Balkon
Garáž
Terasa
Výtah

Kontaktovat makléře

Realitní kancelář

PROPERIA GROUP, s.r.o.

Máchova 1301/2, Brno, Královo Pole

Chystáte se prodat nemovitost?
Pomůžeme Vám!

Máte zájem o tento byt?

Tímto, v souladu s nařízením Evropského parlamentu a Rady (EU) 2016/679, v platném znění, prohlašuji, že mi je alespoň 16 let a uděluji tak svůj souhlas se zpracováním zadaných údajů (jméno, telefon, e-mail, ip adresa) společnosti B3 Technology, s.r.o., IČ: 07330600, se sídlem Novostavby 126/23, 435 11 Lom (správce dat), za účelem předání dotazu z tohoto formuláře Vámi vybranému inzerentovi a zpětného kontaktování mé osoby. Osobní údaje bude správce zpracovávat manuálně i automaticky přímo prostřednictvím svých zaměstnanců. Informace předané tímto formulářem budou uloženy v databázi správce maximálně po dobu 10 let. Odvolání souhlasu s uložením a zpracováním poskytnutých dat lze e-mailem na info@videobydleni.cz. V případě podezření na neoprávněné použití Vámi poskytnutých údajů máte právo předat podnět k šetření Úřadu pro ochranu osobních údajů. Více informací
Chystáte se prodat nemovitost?
Pomůžeme Vám!

Inzerát si prohlédlo 1 lidí

Prodejce

Ing. Marek Fryčka

Ing. Marek Fryčka

Hlídací pes

Chcete dostávat emailem podobné nabídky prodeje bytů 5+kk v Lelekovicích?

Podobné nemovitosti


Nevyhovuje Vám typ bytu? Podívejte se na jiné kategorie bytů.


Vybrané články z našeho blogu