Prodej pozemku pro bydlení, Častolovice, 1053 m2 (ID: 4238175)

Častolovice

1 490 000 Kč /za nemovitost HYPOTÉKA od 6 659 Kč /za měsíc

(k jednání, včetně DPH, včetně poplatků, včetně provize, včetně právního servisu, cena k jednání)

Prémioví partneři v Častolovicích

Informace k pozemku

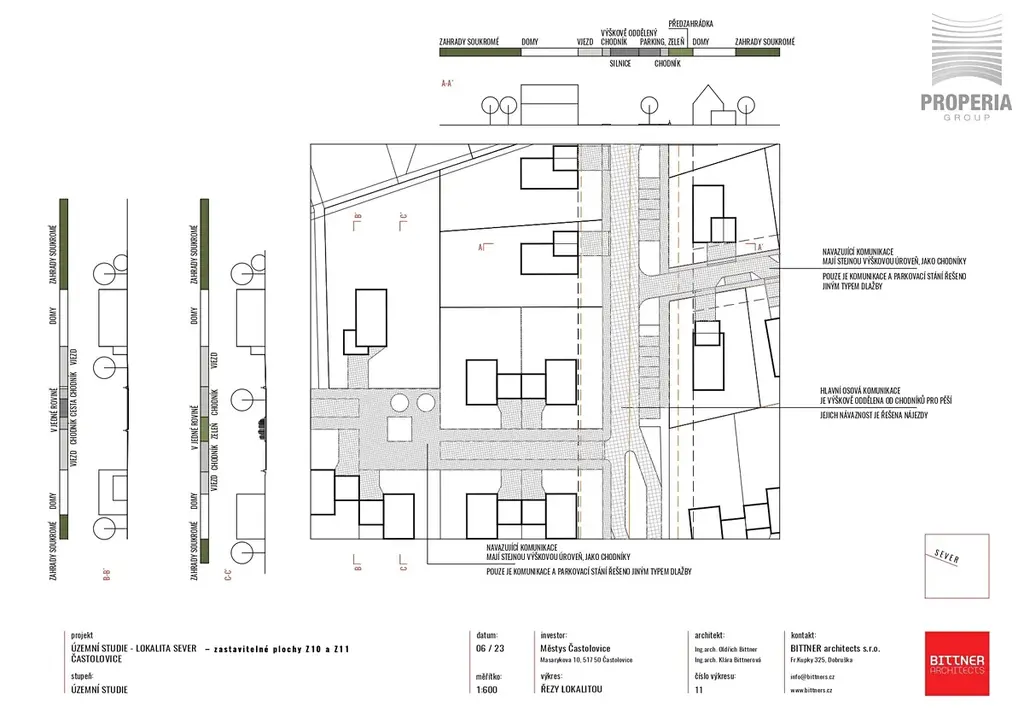
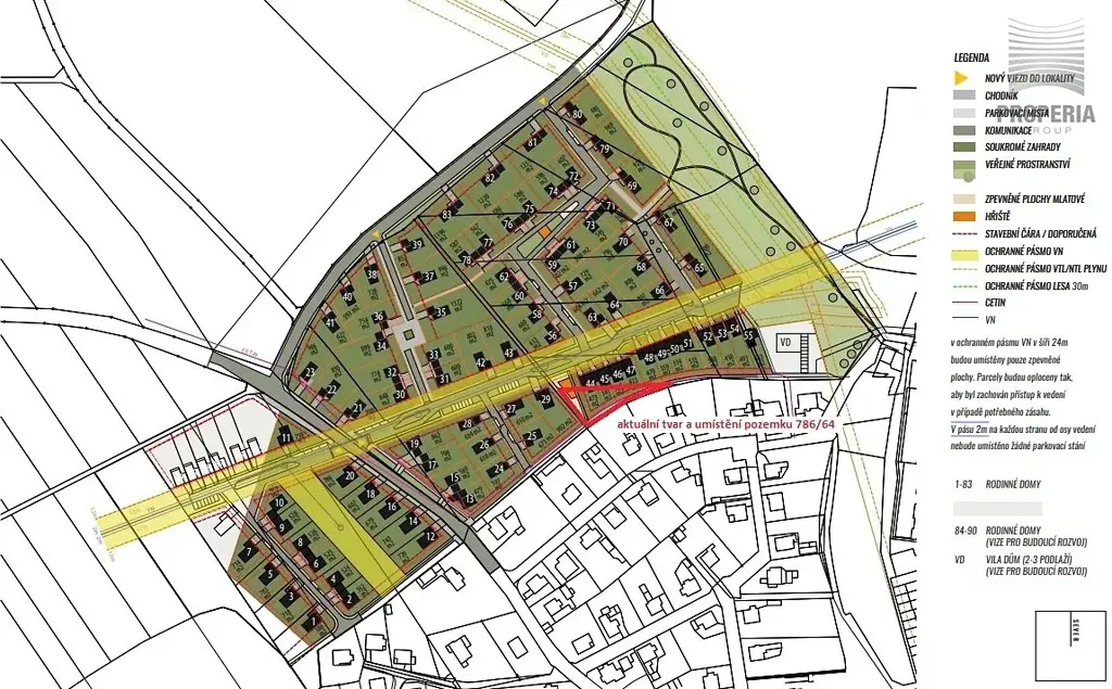
Prodej pozemku k budoucí výstavbě o CP 1053 m2. Pozemek p.č. 786/ 64 se nachází v obci Častolovice u Rychnova nad Kněžnou. V rámci projektu od architektů Bittnerových je navržena podrobná uzemní studie lokality sever - zastavitelné plochy Z11 a Z10 navazující na současnou zastavěnou část obce. Po plánované přeparcelaci vzniknou nově umístěné a tvarované plochy k výstavbě rodinných domů s veškerou infrastrukturou. Celý projekt ráda pošlu mailem. Koupě pozemku je nyní vhodná především jako investice do budoucna, jelikož po realizaci rapidně vzroste tržní cena. Městys se nachází v krásné krajině s rybníky a veškerou dostupností služeb a dopravní sítí do okolí. Více informací přehledně zjistíte z fotek.

Parametry pozemku

Cena
1 490 000 Kč /za nemovitost Spočítat hypotéku
Poznámka k ceně
k jednání, včetně DPH, včetně poplatků, včetně provize, včetně právního servisu, cena k jednání
Aktualizováno
13. 4. 2026
Adresa
Častolovice
ID
02968
Plocha pozemku
1053 m2
Elektřina
230V
Plyn
Plynovod
Odpad
Veřejná kanalizace
Doprava
Vlak, Silnice, Autobus
Voda
Vodovod

Kontaktovat makléře

Realitní kancelář

PROPERIA GROUP, s.r.o.

Máchova 1301/2, Brno, Královo Pole

Chystáte se prodat nemovitost?
Pomůžeme Vám!

Máte zájem o tento pozemek?

Tímto, v souladu s nařízením Evropského parlamentu a Rady (EU) 2016/679, v platném znění, prohlašuji, že mi je alespoň 16 let a uděluji tak svůj souhlas se zpracováním zadaných údajů (jméno, telefon, e-mail, ip adresa) společnosti B3 Technology, s.r.o., IČ: 07330600, se sídlem Novostavby 126/23, 435 11 Lom (správce dat), za účelem předání dotazu z tohoto formuláře Vámi vybranému inzerentovi a zpětného kontaktování mé osoby. Osobní údaje bude správce zpracovávat manuálně i automaticky přímo prostřednictvím svých zaměstnanců. Informace předané tímto formulářem budou uloženy v databázi správce maximálně po dobu 10 let. Odvolání souhlasu s uložením a zpracováním poskytnutých dat lze e-mailem na info@videobydleni.cz. V případě podezření na neoprávněné použití Vámi poskytnutých údajů máte právo předat podnět k šetření Úřadu pro ochranu osobních údajů. Více informací
Chystáte se prodat nemovitost?
Pomůžeme Vám!

Inzerát si prohlédlo 0 lidí

Prodejce

Lenka Kallová

Lenka Kallová

Hlídací pes

Chcete dostávat emailem podobné nabídky prodeje pozemků pro bydlení v Častolovicích?

Podobné nemovitosti


Nevyhovuje Vám typ pozemku? Podívejte se na jiné kategorie pozemků.


Vybrané články z našeho blogu