Prodej chaty, Plzeň, K Valše, 62 m2

K Valše, Plzeň, Litice

2 990 000 Kč /za nemovitost HYPOTÉKA od 13 363 Kč /za měsíc

(Cena je včetně provize RK a právního servisu)

Prémioví partneři v Plzni

Stěhovací služby

Informace k domu

Toužíte po místě, kam můžete utéct od každodenního shonu a opravdu si odpočinout? Právě pro vás máme skvělou příležitost!

V oblíbené lokalitě Plzeň – Litice nabízíme útulnou chatu ideální pro rekreaci, která spojuje klid přírody s výbornou dostupností města. Do centra Plzně i na Bory dojedete za pár minut, nájezd na dálnici D5 zvládnete přibližně za 5 minut.

Za cenu garsonky v Plzni získáte vlastní zázemí pro víkendy i delší pobyty:
pozemek o velikosti 412 m² (včetně zastavěné plochy) nabízí místo pro parkování, pergolu, posezení s přáteli i prostor pro zahrádku nebo třeba vířivku.

Dispozice chaty vás příjemně překvapí:
V přízemí najdete garáž, dílnu a technické zázemí – ideální pro uskladnění všeho potřebného.
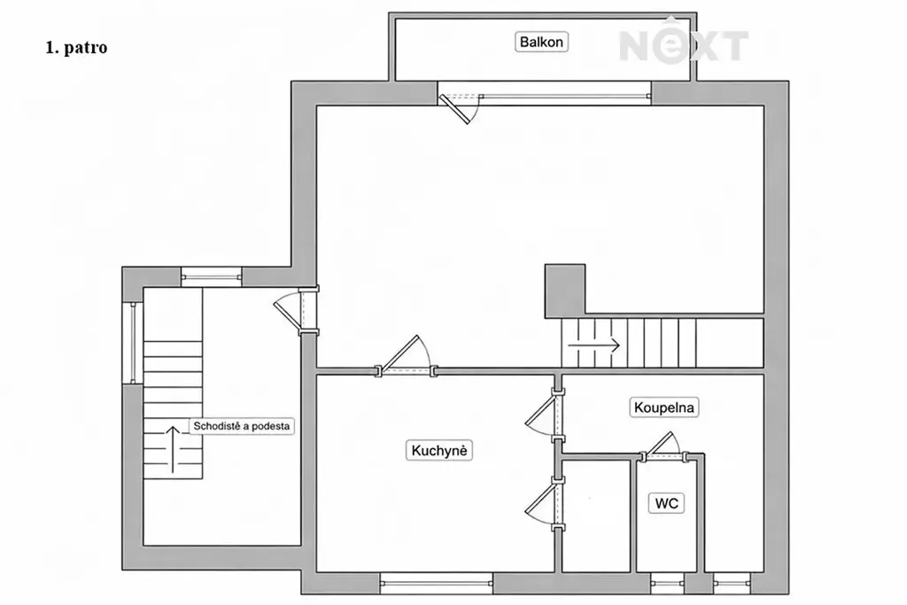
V prvním patře se nachází obývací pokoj se vstupem na balkon a krásným výhledem do zeleně, dále kuchyně, spíž a koupelna se sprchovým koutem a WC.

Ve druhém patře je prostorná ložnice s balkonem, kterou lze případně rozdělit na dvě části – ideální pro rodinu nebo návštěvy. Nechybí ani praktická půda pro uložení sezónních věcí.

Chata je napojena na elektřinu, má vlastní vydatný vrt na vodu a odpad je řešen septikem.

Ráno vás bude budit zpěv ptáků, snídani si vychutnáte na balkoně nebo v pergole a večer si užijete ničím nerušený klid. Ať už hledáte místo pro víkendový relax, letní grilování nebo únik z města, tady ho najdete.

Nemovitost nabízí skvělý potenciál – stačí drobné úpravy a vytvoříte si své vlastní útočiště přesně podle představ.

Zaujala vás tato příležitost? Ozvěte se mi a domluvte si prohlídku. Takové místo pro odpočinek se v nabídce dlouho neohřeje. Pro komunikaci uvádějte evidenční číslo zakázky N117344.

Parametry domu

Cena
2 990 000 Kč /za nemovitost Spočítat hypotéku
Poznámka k ceně
Cena je včetně provize RK a právního servisu
Aktualizováno
14. 4. 2026
Adresa
K Valše, Plzeň, Litice
ID
N117344
Stavba
Smíšená
Stav objektu
V rekonstrukci
Vybaveno
Částečně
Druh objektu
Samostatný
Lokalita objektu
Klidná část obce
Užitná plocha
62 m2
Zastavěná plocha
54 m2
Plocha pozemku
412 m2
Třída energetické náročnosti
G - Mimořádně nehospodárná
Odpad
Veřejná kanalizace
Topení
Lokální tuhá paliva
Komunikace
Asfaltová
Voda
Místní zdroj vody
Topné těleso
Krbová kamna
Zdroj teplé vody
Bojler - elektro
Garáž
Bezbarierový přístup
Parkování

Kontaktovat makléře

Realitní kancelář

NEXT REALITY PLZEŇ

Slovanské údolí 233/16, Plzeň

Chystáte se prodat nemovitost?
Pomůžeme Vám!

Máte zájem o tento dům?

Tímto, v souladu s nařízením Evropského parlamentu a Rady (EU) 2016/679, v platném znění, prohlašuji, že mi je alespoň 16 let a uděluji tak svůj souhlas se zpracováním zadaných údajů (jméno, telefon, e-mail, ip adresa) společnosti B3 Technology, s.r.o., IČ: 07330600, se sídlem Novostavby 126/23, 435 11 Lom (správce dat), za účelem předání dotazu z tohoto formuláře Vámi vybranému inzerentovi a zpětného kontaktování mé osoby. Osobní údaje bude správce zpracovávat manuálně i automaticky přímo prostřednictvím svých zaměstnanců. Informace předané tímto formulářem budou uloženy v databázi správce maximálně po dobu 10 let. Odvolání souhlasu s uložením a zpracováním poskytnutých dat lze e-mailem na info@videobydleni.cz. V případě podezření na neoprávněné použití Vámi poskytnutých údajů máte právo předat podnět k šetření Úřadu pro ochranu osobních údajů. Více informací
Chystáte se prodat nemovitost?
Pomůžeme Vám!

Inzerát si prohlédlo 1 lidí

Prodejce

Petra Lehká

Petra Lehká

Hlídací pes

Chcete dostávat emailem podobné nabídky prodeje chat v Plzni?

Podobné nemovitosti


Nevyhovuje Vám typ domu? Podívejte se na jiné kategorie domů.


Vybrané články z našeho blogu