Prodej bytu 3+1, Chrudim, Víta Nejedlého, 75 m2

Víta Nejedlého, Chrudim III

4 700 000 Kč /za nemovitost HYPOTÉKA od 21 006 Kč /za měsíc
Prémioví partneři v Chrudimi

Pojištění a finance

Informace k bytu

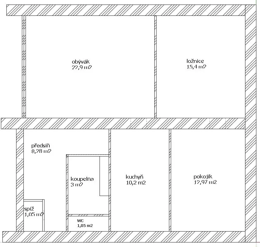
Nabízíme k prodeji velmi příjemný a světlý byt o dispozici 3+1 v klidné a vyhledávané lokalitě města Chrudim, na adrese Víta Nejedlého 636, Chrudim III.

Byt o podlahové ploše 75,35 m² vás okouzlí svou vzdušností, dostatkem přirozeného světla a praktickým uspořádáním. Díky orientaci oken na více světových stran si můžete užívat slunce po celý den – obývací pokoj a ložnice směřují na jih, další pokoj na západ a kuchyně na sever, odkud se otevírá příjemný výhled do upraveného parčíku s kašnou a lavičkami.

Údaje o bytu:
-dispozice 3+1
-podlahová plocha bytu: 75,35 m²
-celková plocha včetně sklepů: 84,15 m²
-2 prostorné sklepy (4,37 m² a 4,44 m²)
-malý balkón
-zachovalé parkety v pokojích
-plastová okna s dvojskly
-vytápění dálkové (Opatovice)
-měsíční příspěvek do fondu oprav: 1 721 Kč
-energetická náročnost: PENB E
-cena: 4 950 000 Kč


Velkým benefitem této nabídky je možnost odkoupení půdního prostoru nad bytem od SVJ, což otevírá zajímavou příležitost k vybudování atraktivního mezonetového bydlení dle vlastních představ.

Dům je ve velmi dobrém technickém stavu, je částečně zateplen a SVJ do budoucna plánuje rozšíření balkónů, což dále zvýší komfort bydlení i hodnotu nemovitosti.

Byt se nachází ve 4. patře, což přináší nejen více soukromí, ale také klid bez ruchu nad vámi a příjemné výhledy do okolí.

Parkování je pohodlně možné přímo před domem a zdarma.

Jedná se o jednu z nejžádanějších částí Chrudimi:
-pár minut chůze na vlakové i autobusové nádraží
-blízkost centra města
-klidné prostředí se zelení a občanskou vybaveností

Tento byt je ideální volbou pro ty, kteří hledají prostorné, světlé bydlení v klidné lokalitě s výbornou dostupností a zároveň chtějí investovat do nemovitosti s dalším rozvojovým potenciálem.

Pro více informací nebo prohlídku volejte 737235239.

Parametry bytu

Cena
4 700 000 Kč /za nemovitost Spočítat hypotéku
Aktualizováno
30. 5. 2026
Adresa
Víta Nejedlého, Chrudim III
Stavba
Cihlová
Stav objektu
Dobrý
Patro
4.
Vlastnictví
Osobní
Užitná plocha
75 m2
Podlahová plocha
84 m2
Třída energetické náročnosti
E - Nehospodárná
Ukazatel energetické náročnosti
237 kWh/m2 za rok
Balkon
Sklep

Kontaktovat makléře

Máte zájem o tento byt?

Tímto, v souladu s nařízením Evropského parlamentu a Rady (EU) 2016/679, v platném znění, prohlašuji, že mi je alespoň 16 let a uděluji tak svůj souhlas se zpracováním zadaných údajů (jméno, telefon, e-mail, ip adresa) společnosti B3 Technology, s.r.o., IČ: 07330600, se sídlem Novostavby 126/23, 435 11 Lom (správce dat), za účelem předání dotazu z tohoto formuláře Vámi vybranému inzerentovi a zpětného kontaktování mé osoby. Osobní údaje bude správce zpracovávat manuálně i automaticky přímo prostřednictvím svých zaměstnanců. Informace předané tímto formulářem budou uloženy v databázi správce maximálně po dobu 10 let. Odvolání souhlasu s uložením a zpracováním poskytnutých dat lze e-mailem na info@videobydleni.cz. V případě podezření na neoprávněné použití Vámi poskytnutých údajů máte právo předat podnět k šetření Úřadu pro ochranu osobních údajů. Více informací
Chystáte se prodat nemovitost?
Pomůžeme Vám!
Theleadway banner

Inzerát si prohlédlo 77 lidí

Prodejce

Bc. Veronika Keown

Bc. Veronika Keown

Hlídací pes

Chcete dostávat emailem podobné nabídky prodeje bytů 3+1 v Chrudimi?

Podobné nemovitosti


Nevyhovuje Vám typ bytu? Podívejte se na jiné kategorie bytů.


Vybrané články z našeho blogu