Pronájem bytu 2+1, Světlá nad Sázavou, Sázavská, 60 m2 (ID: 4239715)

Sázavská, Světlá nad Sázavou

26 000 Kč /za měsíc Získejte výhodnou HYPOTÉKU
Prémioví partneři v Světlé nad Sázavou

Informace k bytu

Pronájem bytu 2+1 v Světlé nad Sázavou, ul. Sázavská

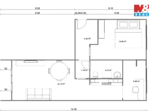
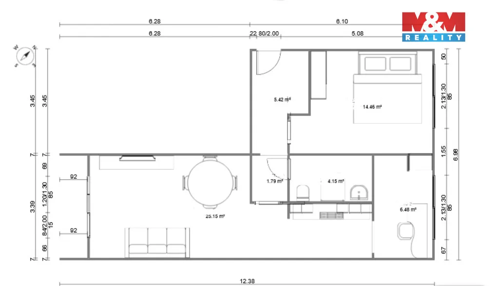
Nabízíme vám k dlouhodobému pronájmu prostorný slunný byt o dispozici 2+1 a podlahové ploše 60 m2, který se nachází v prvním nadzemním podlaží bytového domu ve Světlé nad Sázavou, ulice Sázavská. Byt je ve výborném stavu a připraven k okamžitému nastěhování. Ideální bydlení pro dva nebo menší rodinu. Díky výhodnému umístění bytu jsou nízké náklady na vytápění. K bytu náleží také sklep a možnost využití společných prostorů v domě. Blízká cyklostezka, vedoucí krásnou přírodou na březích řeky Sázavy, vám nabízí procházky i příležitosti pro sportovní vyžití a relaxaci. Výše měsíčního nájmu je 13.000,- Kč, vratná kauce činí 26.000,- Kč. Měsíční zálohy na služby a energie jsou ve výši 3.000,- Kč. Pro více informací a domluvení termínu prohlídky nám zavolejte.

Parametry bytu

Cena
26 000 Kč /za měsíc
Aktualizováno
14. 4. 2026
Adresa
Sázavská, Světlá nad Sázavou
ID
938984
Stavba
Panelová
Stav objektu
Velmi dobrý
Vybaveno
Částečně
Lokalita objektu
Klidná část obce
Vlastnictví
Osobní
Užitná plocha
60 m2
Lodžie

Kontaktovat makléře

Realitní kancelář

Logo M&M reality

M&M reality

ulice Krakovská 583/9, Praha

Chystáte se prodat nemovitost?
Pomůžeme Vám!

Máte zájem o tento byt?

Tímto, v souladu s nařízením Evropského parlamentu a Rady (EU) 2016/679, v platném znění, prohlašuji, že mi je alespoň 16 let a uděluji tak svůj souhlas se zpracováním zadaných údajů (jméno, telefon, e-mail, ip adresa) společnosti B3 Technology, s.r.o., IČ: 07330600, se sídlem Novostavby 126/23, 435 11 Lom (správce dat), za účelem předání dotazu z tohoto formuláře Vámi vybranému inzerentovi a zpětného kontaktování mé osoby. Osobní údaje bude správce zpracovávat manuálně i automaticky přímo prostřednictvím svých zaměstnanců. Informace předané tímto formulářem budou uloženy v databázi správce maximálně po dobu 10 let. Odvolání souhlasu s uložením a zpracováním poskytnutých dat lze e-mailem na info@videobydleni.cz. V případě podezření na neoprávněné použití Vámi poskytnutých údajů máte právo předat podnět k šetření Úřadu pro ochranu osobních údajů. Více informací
Chystáte se prodat nemovitost?
Pomůžeme Vám!

Inzerát si prohlédlo 1 lidí

Prodejce

Petra Benc

Petra Benc

Hlídací pes

Chcete dostávat emailem podobné nabídky pronájmu bytů 2+1 v Světlé nad Sázavou?

Podobné nemovitosti


Nevyhovuje Vám typ bytu? Podívejte se na jiné kategorie bytů.


Vybrané články z našeho blogu