Prodej komerční nemovitosti, Praha - Michle, Pobočná, 127 m2 (ID: 4240056)

Pobočná, Praha, Michle

17 950 000 Kč /za nemovitost HYPOTÉKA od 80 226 Kč /za měsíc
Prémioví partneři v Praze 4

Stěhovací služby

Výkup a prodej starého nábytku

Informace k nemovitosti

Exkluzivně nabízím k prodeji komerční prostory provozované jako wellness & spa centrum, umístěné v přízemí kompletně zrekonstruované cihlové budovy v centrální části Prahy 4 – Michle, v pěší dostupnosti od multifunkčního areálu BB Centra a okolních administrativních budov.

Kupující má možnost:
- ponechat stávajícího nájemce a získávat garantovaný výnos,
- nebo prostory využívat pro vlastní provozování wellness & spa centra.

Prostory se prodávají jako nemovitost. Současně je možné jednat i o prodeji samotného byznysu, který v současnosti přináší garantovaný výnos z nájmu. Součástí jednání může být i převod zavedené značky se stálou klientelou, přenechání obchodních spoluprací a kompletní know-how.

Prostor je zkolaudován jako nebytový a pro jeho provozování byly získány všechny potřebné dokumenty v souladu s platnou legislativou.

V roce 2024 prošel objekt kompletní rekonstrukcí, během níž byly instalovány:
- moderní bazénový filtrační systém,
- elektrický řídicí systém INELS,
- vzduchotechnika a rekuperační jednotka,
- bazénové technologie: autonomní regulace tepla, měřicí, regulační a dávkovací zařízení včetně peristaltických dávkovacích čerpadel, ultrazvukový průtokoměr se záznamem, podvodní vysavač a fotometr s napojením na chytrý telefon.

Nově byla také provedena výměna saunových kamen.

Podlahové plochy jsou tvořeny výhradně keramickou dlažbou, stěny z velké části obloženy keramickými obklady, včetně velkoformátových dlaždic od italského výrobce.

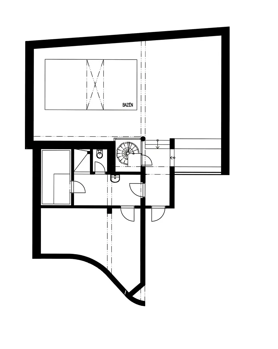
Dispozice prostor o celkové podlahové ploše 127,50 m² zahrnuje:
- hlavní prostor s bazénem, posezením, lehátky a kuchyňským koutem s barovou zónou,
- finskou saunu se sprchovým koutem, WC a převlékárnou,
- masážní místnost / odpočinkovou zónu s TV,
- vstupní místnost / šatnu,
- uzamčenou technickou místnost / sklad.

Wellness & spa centrum aktuálně nabízí soukromý pronájem prostor i širokou škálu masérských a tělových procedur využívajících esenciální oleje a vysoce kvalitní kosmetiku.

Parametry nemovitosti

Cena
17 950 000 Kč /za nemovitost Spočítat hypotéku
Aktualizováno
15. 4. 2026
Adresa
Pobočná, Praha, Michle
Stavba
Cihlová
Stav objektu
Po rekonstrukci
Patro
1. z 4
Vybaveno
Ano
Lokalita objektu
Centrum obce
Užitná plocha
127 m2
Třída energetické náročnosti
C - Úsporná
Elektřina
230V
Odpad
Veřejná kanalizace
Komunikace
Asfaltová
Telekomunikace
Internet, Kabelová televize, Kabelové rozvody
Doprava
Dálnice, MHD, Autobus
Voda
Vodovod
Zdroj topení
Ústřední dálkové
Zdroj teplé vody
Plynový kotel
Bezbarierový přístup

Kontaktovat makléře

Máte zájem o tuto nemovistost?

Tímto, v souladu s nařízením Evropského parlamentu a Rady (EU) 2016/679, v platném znění, prohlašuji, že mi je alespoň 16 let a uděluji tak svůj souhlas se zpracováním zadaných údajů (jméno, telefon, e-mail, ip adresa) společnosti B3 Technology, s.r.o., IČ: 07330600, se sídlem Novostavby 126/23, 435 11 Lom (správce dat), za účelem předání dotazu z tohoto formuláře Vámi vybranému inzerentovi a zpětného kontaktování mé osoby. Osobní údaje bude správce zpracovávat manuálně i automaticky přímo prostřednictvím svých zaměstnanců. Informace předané tímto formulářem budou uloženy v databázi správce maximálně po dobu 10 let. Odvolání souhlasu s uložením a zpracováním poskytnutých dat lze e-mailem na info@videobydleni.cz. V případě podezření na neoprávněné použití Vámi poskytnutých údajů máte právo předat podnět k šetření Úřadu pro ochranu osobních údajů. Více informací
Chystáte se prodat nemovitost?
Pomůžeme Vám!

Inzerát si prohlédlo 0 lidí

Prodejce

Anastasiya Kipenskaya

Anastasiya Kipenskaya

Hlídací pes

Chcete dostávat emailem podobné nabídky prodeje komerčních nemovitostí v Praze 4?

Podobné nemovitosti


Nevyhovuje Vám typ nemovitosti? Podívejte se na jiné kategorie komerčních.


Vybrané články z našeho blogu