Soccer reality

Pronájem bytu 2+kk, Praha - Vinoř, Moravanská, 47 m2

Moravanská, Praha, Vinoř

22 000 Kč /za měsíc Získejte výhodnou HYPOTÉKU
Prémioví partneři v Praze 9

Stěhovací služby

Výkup a prodej starého nábytku

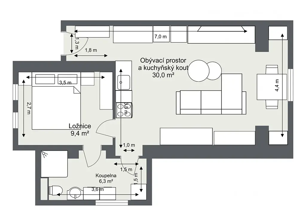
Informace k bytu

KOPECKY RealEstate & Partners, s.r.o. nabízí k dlouhodobému pronájmu příjemný byt 2+kk o celkové ploše 50 m² v oblíbené pražské Vinoři.

Byt se nachází v klidné vilové čtvrti, která nabízí soukromí, zeleň a pohodovou rezidenční atmosféru. Zároveň máte v docházkové vzdálenosti kompletní občanskou vybavenost – obchody, restaurace, kavárny, školu, školku, lékaře i další služby. Vinoř tak skvěle spojuje klidné bydlení s praktickým každodenním zázemím.

Velkým benefitem je společná zahrada u domu, která nabízí prostor pro odpočinek, posezení i různé volnočasové aktivity. Součástí pronájmu je také vlastní úložná kóje a jedno parkovací místo přímo na vlastním pozemku domu.

Dispozice 2+kk je ideální pro jednotlivce nebo pár, kteří hledají dlouhodobé, pohodlné a klidné bydlení. Pejsci i kočičky jsou zde bez problémů vítáni.

Byt je volný od 1. 5., pouze pro dlouhodobé zájemce. Kauce činí 30 000 Kč.

Najemné 22 000 Kč + poplatky 4 000 Kč

Pro více informací a domluvení prohlídky nás kontaktujte.

Parametry bytu

Cena
22 000 Kč /za měsíc
Aktualizováno
15. 4. 2026
Adresa
Moravanská, Praha, Vinoř
ID
2026009
Stavba
Cihlová
Stav objektu
Velmi dobrý
Patro
3.
Vybaveno
Částečně
Vlastnictví
Osobní
Užitná plocha
47 m2
Podlahová plocha
50 m2
Plocha zahrady
604 m2
Třída energetické náročnosti
C - Úsporná
Ukazatel energetické náročnosti
90 kWh/m2 za rok
Elektřina
230V
Odpad
Veřejná kanalizace
Komunikace
Dlážděná
Telekomunikace
Internet
Doprava
MHD
Voda
Vodovod, Studna
Topné těleso
Radiátory
Zdroj topení
Elektrokotel
Zdroj teplé vody
Elektrokotel, Bojler - elektro
Výtah
Parkování

Kontaktovat makléře

Máte zájem o tento byt?

Tímto, v souladu s nařízením Evropského parlamentu a Rady (EU) 2016/679, v platném znění, prohlašuji, že mi je alespoň 16 let a uděluji tak svůj souhlas se zpracováním zadaných údajů (jméno, telefon, e-mail, ip adresa) společnosti B3 Technology, s.r.o., IČ: 07330600, se sídlem Novostavby 126/23, 435 11 Lom (správce dat), za účelem předání dotazu z tohoto formuláře Vámi vybranému inzerentovi a zpětného kontaktování mé osoby. Osobní údaje bude správce zpracovávat manuálně i automaticky přímo prostřednictvím svých zaměstnanců. Informace předané tímto formulářem budou uloženy v databázi správce maximálně po dobu 10 let. Odvolání souhlasu s uložením a zpracováním poskytnutých dat lze e-mailem na info@videobydleni.cz. V případě podezření na neoprávněné použití Vámi poskytnutých údajů máte právo předat podnět k šetření Úřadu pro ochranu osobních údajů. Více informací
Chystáte se prodat nemovitost?
Pomůžeme Vám!

Inzerát si prohlédlo 0 lidí

Prodejce

Bc. Leo Kopecký, MBA

Bc. Leo Kopecký, MBA

Hlídací pes

Chcete dostávat emailem podobné nabídky pronájmu bytů 2+kk v Praze 9?

Podobné nemovitosti


Nevyhovuje Vám typ bytu? Podívejte se na jiné kategorie bytů.


Vybrané články z našeho blogu