Prodej rodinného domu, Boršice u Blatnice, 105 m2

Boršice u Blatnice

3 700 000 Kč /za nemovitost HYPOTÉKA od 16 537 Kč /za měsíc
Prémioví partneři v Boršicích u Blatnice

Informace k domu

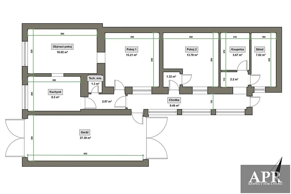
Nabízíme k prodeji rodinný dům o dispozici 3+1 s obytnou plochou cca 105 m², situovaný v klidné a chráněné oblasti s čistým ovzduším a kvalitní místní vodou.
Součástí prodeje je prostorný pozemek o celkové výměře přibližně 1 100 m², který je celý veden jako stavební. Velkou výhodou je možnost další výstavby – ze zadní části pozemku je dle územního plánu navrženo napojení na inženýrské sítě.
???? Stav a technické informace
Dům je ve velmi dobrém stavu a je připraven k okamžitému nastěhování. V minulosti prošel rekonstrukcí, která zahrnovala:
• novou střechu
• plastová okna
• nové odpady a podlahy
Vytápění je řešeno kombinovaně:
• plynový kondenzační kotel (nový)
???? Dispozice a možnosti
• dispozice 3+1 (cca 105 m²)
• přímý vstup na půdu s velkým skladovacím prostorem
• možnost půdní vestavby (až 2 další pokoje)
• 2 sklepy
???? Parkování a vedlejší stavby
• možnost parkování až pro 3 auta před domem (po úpravě)
• dílna
• zahradní garáž
• 3 hospodářské místnosti
???? Pozemek a lokalita
Na pozemku se nachází skleník, ovocné stromy a dostatek prostoru pro další využití (zahrada, relax, případná další stavba).
Lokalita nabízí:
• klidné bydlení v přírodě
• čistý vzduch
• kvalitní místní vodu
• dostupnost občanské vybavenosti – škola, školka, potraviny, autobusová zastávka
Oblast je navíc známá svou tradiční výrobou kvalitní slivovice.

Parametry domu

Cena
3 700 000 Kč /za nemovitost Spočítat hypotéku
Aktualizováno
17. 4. 2026
Adresa
Boršice u Blatnice
ID
2086
Stavba
Smíšená
Stav objektu
Velmi dobrý
Druh objektu
Řadový
Užitná plocha
105 m2
Zastavěná plocha
109 m2
Podlahová plocha
1078 m2
Plocha pozemku
1078 m2
Třída energetické náročnosti
G - Mimořádně nehospodárná

Kontaktovat makléře

Realitní kancelář

APOLLO REALITY

Hodinářská 1523, Uherský Brod

Chystáte se prodat nemovitost?
Pomůžeme Vám!

Máte zájem o tento dům?

Tímto, v souladu s nařízením Evropského parlamentu a Rady (EU) 2016/679, v platném znění, prohlašuji, že mi je alespoň 16 let a uděluji tak svůj souhlas se zpracováním zadaných údajů (jméno, telefon, e-mail, ip adresa) společnosti B3 Technology, s.r.o., IČ: 07330600, se sídlem Novostavby 126/23, 435 11 Lom (správce dat), za účelem předání dotazu z tohoto formuláře Vámi vybranému inzerentovi a zpětného kontaktování mé osoby. Osobní údaje bude správce zpracovávat manuálně i automaticky přímo prostřednictvím svých zaměstnanců. Informace předané tímto formulářem budou uloženy v databázi správce maximálně po dobu 10 let. Odvolání souhlasu s uložením a zpracováním poskytnutých dat lze e-mailem na info@videobydleni.cz. V případě podezření na neoprávněné použití Vámi poskytnutých údajů máte právo předat podnět k šetření Úřadu pro ochranu osobních údajů. Více informací
Chystáte se prodat nemovitost?
Pomůžeme Vám!

Inzerát si prohlédlo 2 lidí

Prodejce

Antonín Polášek

Antonín Polášek

Hlídací pes

Chcete dostávat emailem podobné nabídky prodeje rodinných domů v Boršicích u Blatnice?

Top nabídky

Podobné nemovitosti


Nevyhovuje Vám typ domu? Podívejte se na jiné kategorie domů.


Vybrané články z našeho blogu