Prodej ubytování, Lázně Libverda, 651 m2 (ID: 4241675)

Lázně Libverda

6 990 000 Kč /za nemovitost HYPOTÉKA od 31 241 Kč /za měsíc
Prémioví partneři v Lázních Libverdě

Rekonstrukce

Úklidové služby

Informace k nemovitosti

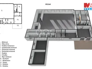
Prodej penzionu, restaurace, tělocvična, Lázně Libverda

Vítejte v exkluzivním penzionu v obci Lázně Libverda, který téměř volá po proměně v prosperující penzion či apartmánový dům. S rozlehlým pozemkem o rozloze 4156 m² a zastavěnou plochou 670 m², nabízí tato nemovitost neomezený potenciál pro rozvoj v oblasti ubytovacího a turistického ruchu. Pokoje pro hosty, restaurace, terasa, tělocvična, kurty a máte ideální základnu pro kreativní a moderní přestavby, které přinesou maximální komfort pro budoucí hosty. Přidejte k tomu nádherný výhled do okolí a blízkost lyžařských sjezdovek, turistických, běžkařských tras a cyklotras a máte v rukou klíč k úspěšnému podnikání. Tento penzion není jen domovem, ale i investicí s jasným směrem - přivést pohodlí a radost hostům, kteří zde budou nacházet útočiště na úpatí Jizerských hor. Je to příležitost k vytvoření prosperujícího podniku v jednom z nejmalebnějších koutů České republiky. Přijďte se přesvědčit sami, jak může tento penzion naplnit vaše sny o úspěšném byznysu v turistickém ruchu.

Parametry nemovitosti

Cena
6 990 000 Kč /za nemovitost Spočítat hypotéku
Aktualizováno
16. 4. 2026
Adresa
Lázně Libverda
ID
922334
Stavba
Cihlová
Stav objektu
Dobrý
Vybaveno
Částečně
Lokalita objektu
Klidná část obce
Vlastnictví
Osobní
Užitná plocha
651 m2
Plocha pozemku
4156 m2

Kontaktovat makléře

Realitní kancelář

Logo M&M reality

M&M reality

ulice Krakovská 583/9, Praha

Chystáte se prodat nemovitost?
Pomůžeme Vám!

Máte zájem o tuto nemovistost?

Tímto, v souladu s nařízením Evropského parlamentu a Rady (EU) 2016/679, v platném znění, prohlašuji, že mi je alespoň 16 let a uděluji tak svůj souhlas se zpracováním zadaných údajů (jméno, telefon, e-mail, ip adresa) společnosti B3 Technology, s.r.o., IČ: 07330600, se sídlem Novostavby 126/23, 435 11 Lom (správce dat), za účelem předání dotazu z tohoto formuláře Vámi vybranému inzerentovi a zpětného kontaktování mé osoby. Osobní údaje bude správce zpracovávat manuálně i automaticky přímo prostřednictvím svých zaměstnanců. Informace předané tímto formulářem budou uloženy v databázi správce maximálně po dobu 10 let. Odvolání souhlasu s uložením a zpracováním poskytnutých dat lze e-mailem na info@videobydleni.cz. V případě podezření na neoprávněné použití Vámi poskytnutých údajů máte právo předat podnět k šetření Úřadu pro ochranu osobních údajů. Více informací
Chystáte se prodat nemovitost?
Pomůžeme Vám!

Inzerát si prohlédlo 2 lidí

Prodejce

Pavel Hübscher

Pavel Hübscher

Hlídací pes

Chcete dostávat emailem podobné nabídky prodeje ubytování v Lázních Libverdě?


Nevyhovuje Vám typ nemovitosti? Podívejte se na jiné kategorie komerčních.


Vybrané články z našeho blogu