Prodej bytu 3+kk, Praha - Košíře, Holečkova, 67 m2 (ID: 4241687)

Holečkova, Praha, Košíře

12 950 000 Kč /za nemovitost HYPOTÉKA od 57 879 Kč /za měsíc
Prémioví partneři v Praze 5

Stěhovací služby

Výkup a prodej starého nábytku

Informace k bytu

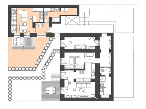
Rádi bychom Vám jako přímí majitelé představili tento mezonetový byt 3+kk k prodeji v klidné části Prahy. Byt je umístěn v cihlové budově, která prošla rekonstrukcí, což zajišťuje moderní a komfortní bydlení. Byt má užitnou plochu 67 m² a je částečně vybavený truhlářskými konstrukcemi dělanými na míru, jako jsou nábytkové schody do patra, či vestavěné patro v pokojíčku a kuchyňská linka, vše vyrobeno na míru.
K bytu náleží předzahrádka s terasou do vnitrobloku a balkón se vstupem z horního pokoje.
Toto poskytuje novému majiteli možnost doladit interiér podle vlastního vkusu a potřeb.
Dům se nachází v památkové zóně přímo na pomezí Smíchova a Košířů.
Jedná se o klidnou oblast s bohatou historií a výbornou občanskou infrastrukturou. Náš projekt je v blízkosti komplexu Gabriel Loci a vily Bertramka. Zdejší čtvrť nabízí široké spektrum služeb, včetně kaváren, restaurací, kulturních akcí a rekreačních center, vše doslova kousek od vašeho nového domova. Blízká Smíchovská náplavka, Husovy sady, Park Sacré Coeur nebo park Mrázovka jsou ideálními místy k trávení času venku na čerstvém vzduchu a pro odpočinek.
Osobní vlastnictví mezonetu zajišťuje budoucímu majiteli plné možnosti rozhodování o svém bydlení.

Standardy bytu:
•dřevěná francouzská okna s trojsklem a teplým rámečkem
•bezpečnostní vstupní dveře RC3 s odhlučněním
•masivní interiérové dveře
•kvalitní vinylová podlaha v dekoru dubu
•koupelna s keramickou dlažbou
•sádrové omítky a kvalitní obklady

Technické vybavení:
•vlastní elektrokotel a bojler
•podlahové vytápění
•optická internetová přípojka
•domácí videotelefon

Byt je ideální volbou pro ty, kteří hledají pohodlné bydlení v klidné části Prahy, avšak s dostupností všech vymožeností velkoměsta. Prohlídky jsou možné po předchozí domluvě. Pro více informací o této nemovitosti nebo sjednání prohlídky nás prosím kontaktujte nebo vyplňte níže uvedený formulář, rádi Vám pomůžeme.

Parametry bytu

Cena
12 950 000 Kč /za nemovitost Spočítat hypotéku
Aktualizováno
16. 4. 2026
Adresa
Holečkova, Praha, Košíře
Stavba
Cihlová
Stav objektu
Po rekonstrukci
Vybaveno
Částečně
Lokalita objektu
Klidná část obce
Vlastnictví
Osobní
Užitná plocha
67 m2
Podlahová plocha
67 m2
Plocha zahrady
23 m2
Elektřina
230V
Odpad
Veřejná kanalizace
Komunikace
Asfaltová
Telekomunikace
Telefon, Internet, Satelit, Kabelová televize, Kabelové rozvody
Doprava
Silnice, MHD
Voda
Místní zdroj vody
Topné těleso
Podlahové vytápění, Radiátory, Krbová kamna
Zdroj topení
Elektrokotel, Krbová kamna
Zdroj teplé vody
Bojler - elektro
Balkon
Garáž
Sklep
Terasa
Výtah
Bezbarierový přístup

Kontaktovat makléře

Máte zájem o tento byt?

Tímto, v souladu s nařízením Evropského parlamentu a Rady (EU) 2016/679, v platném znění, prohlašuji, že mi je alespoň 16 let a uděluji tak svůj souhlas se zpracováním zadaných údajů (jméno, telefon, e-mail, ip adresa) společnosti B3 Technology, s.r.o., IČ: 07330600, se sídlem Novostavby 126/23, 435 11 Lom (správce dat), za účelem předání dotazu z tohoto formuláře Vámi vybranému inzerentovi a zpětného kontaktování mé osoby. Osobní údaje bude správce zpracovávat manuálně i automaticky přímo prostřednictvím svých zaměstnanců. Informace předané tímto formulářem budou uloženy v databázi správce maximálně po dobu 10 let. Odvolání souhlasu s uložením a zpracováním poskytnutých dat lze e-mailem na info@videobydleni.cz. V případě podezření na neoprávněné použití Vámi poskytnutých údajů máte právo předat podnět k šetření Úřadu pro ochranu osobních údajů. Více informací
Chystáte se prodat nemovitost?
Pomůžeme Vám!

Inzerát si prohlédlo 1 lidí

Prodejce

Ing. Lenka Mixová

Ing. Lenka Mixová

Hlídací pes

Chcete dostávat emailem podobné nabídky prodeje bytů 3+kk v Praze 5?

Podobné nemovitosti


Nevyhovuje Vám typ bytu? Podívejte se na jiné kategorie bytů.


Vybrané články z našeho blogu