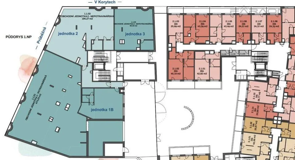
Pronájem kanceláře, Praha - Strašnice, Průběžná, 194 m2

Průběžná, Praha 10, Strašnice

155 200 Kč /za nemovitost Získejte výhodnou HYPOTÉKU
Prémioví partneři v Praze 10

Stěhovací služby

Výkup a prodej starého nábytku

Informace k nemovitosti

Nabízíme k pronájmu nový prostor ( 194 m2 )+ garážové stání v připravovaném projektu novostavby bytového domu Anilinka ( 250 bytů), termín dokončení projektu 4Q 2027, Strašnice, Praha 10.

Prostor se nabízí ve stavu shell and core, nachází se hned vedle supermarketu a je vhodný pro multifunkční využití.

Projekt se staví v rezidenční oblasti Strašnic, u tramvajové zastávky Staré Strašnice na křižovatce ulic Průběžná a V Korytech. Po dokončení stavby vznikne funkční designová budova s fasádou z živé popínavé zeleně a zelenou střechou. V suterénu budovy budou garáže a v přízemí velký supermarket.

Cenový odhad za služby ( teplo, voda, služby domu) činí 35,- Kč / m2 měsíčně.

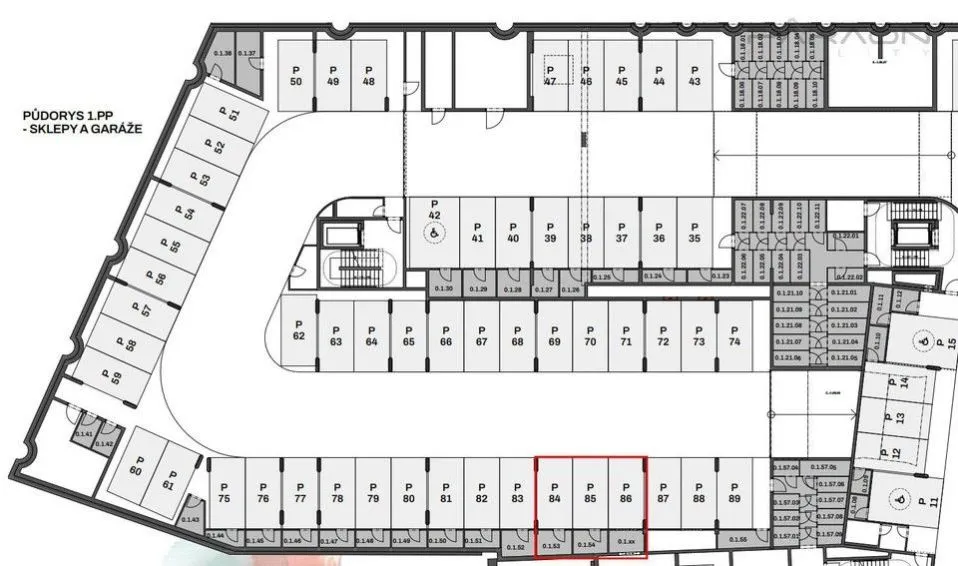
Parkovací stání 5.000 Kč / měsíčně.

Uvedené ceny jsou bez DPH.

K nastěhování na konci roku 2027.

Energetická náročnost budovy: G (nebyla sdělena majitelem)

ID nemovitosti ANK0172-0001.

Parametry nemovitosti

Cena
155 200 Kč /za nemovitost
Aktualizováno
18. 4. 2026
Adresa
Průběžná, Praha 10, Strašnice
ID
ANK0172-0001
Stavba
Cihlová
Stav objektu
Ve výstavbě
Typ objektu
Patrový
Užitná plocha
194 m2
Třída energetické náročnosti
G - Mimořádně nehospodárná
Garáž
Bezbarierový přístup

Kontaktovat makléře

Máte zájem o tuto nemovistost?

Tímto, v souladu s nařízením Evropského parlamentu a Rady (EU) 2016/679, v platném znění, prohlašuji, že mi je alespoň 16 let a uděluji tak svůj souhlas se zpracováním zadaných údajů (jméno, telefon, e-mail, ip adresa) společnosti B3 Technology, s.r.o., IČ: 07330600, se sídlem Novostavby 126/23, 435 11 Lom (správce dat), za účelem předání dotazu z tohoto formuláře Vámi vybranému inzerentovi a zpětného kontaktování mé osoby. Osobní údaje bude správce zpracovávat manuálně i automaticky přímo prostřednictvím svých zaměstnanců. Informace předané tímto formulářem budou uloženy v databázi správce maximálně po dobu 10 let. Odvolání souhlasu s uložením a zpracováním poskytnutých dat lze e-mailem na info@videobydleni.cz. V případě podezření na neoprávněné použití Vámi poskytnutých údajů máte právo předat podnět k šetření Úřadu pro ochranu osobních údajů. Více informací
Chystáte se prodat nemovitost?
Pomůžeme Vám!

Inzerát si prohlédlo 1 lidí

Prodejce

Faraon Reality s.r.o.

Faraon Reality s.r.o.

Hlídací pes

Chcete dostávat emailem podobné nabídky pronájmu kanceláří v Praze 10?

Podobné nemovitosti


Nevyhovuje Vám typ nemovitosti? Podívejte se na jiné kategorie komerčních.


Vybrané články z našeho blogu