Pronájem bytu 2+kk, Liberec, Masarykova, 75 m2

Masarykova, Liberec I-Staré Město

16 900 Kč /za měsíc Získejte výhodnou HYPOTÉKU

(+ poplatky)

Prémioví partneři v Liberci

Rekonstrukce

Úklidové služby

Informace k bytu

Pronájem bytu 2+kk o výměře 75,4m2 se samostatným vstupem, terasou v cihlovém domě v centru Liberce. Do bytu je přístup přes hlavní chodbu v domě nebo přes terasu a vlastní parkoviště u domu. Byt má výbornou polohu – blízko centra, tramvajová zastávka před domem, vlastní topení, možnost parkování ve dvoře za poplatek.
Byt je ve 3.nadzemním podlaží a je velmi prostorný. Nyní prošel rekonstrukcí - nové podlahy, nový výmalba, nová kuchyňská linka se spotřebiči.
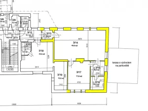
Dům je ve svahu, proto je z bytu ve 2. patře východ přes terasu na parkoviště vedle domu. Z předsíně ( 2,8m2 ) je vstup do prostorné hlavní obytné místnosti o výměře 43,6m2. Z této místnosti se vstupuje do menší ložnice, která je 18m2 velká, dále do prostorné koupelny ( 7m2 ) a za koupelnou je WC ( 5m2). Z hlavní obytné místnosti je vstup na terasu, kterou využívá pouze tento byt a z terasy je možné vyjít na zahradu s parkovacím místem. WC i koupelna jsou také prostorné a světlé místnosti s okny. Na toaletě jsou úložné prostory. V obytné místnosti je kuchyňská linka s pultem, který odděluje kuchyň od ostatního prostoru. Součásti linky je potravinová skříň. Je zde plynová varná deska a elektrická trouba. Byt má vlastní plynový kotel na topení a ohřev vody. Okna bytu jdou do klidové zóny vedle domu. Díky vlastnímu topení jsou nízké náklady na provoz. Za poplatek 1.200,-Kč/ měsíčně lze parkovat na parkovišti za elektrickou bránou. Nájemné je 16.900,-Kč + služby cca 4.200,-Kč na 2 osoby ( platby jsou včetně topení, ohřevu vody, vodného i elektřiny ). Kauce ve výši 30.000,-Kč, provize ve výši 13.000,-Kč.
Byt je volný od 1.5.2026. Majitelé bydlí v domě a byt je určený pro nekuřáky a bez domácích mazlíčků. Je vhodný pro pár.

Parametry bytu

Cena
16 900 Kč /za měsíc
Poznámka k ceně
+ poplatky
Aktualizováno
18. 4. 2026
Adresa
Masarykova, Liberec I-Staré Město
ID
396
Stavba
Cihlová
Stav objektu
Po rekonstrukci
Patro
3. z 5
Lokalita objektu
Centrum obce
Vlastnictví
Osobní
Užitná plocha
75 m2
Třída energetické náročnosti
G - Mimořádně nehospodárná
Elektřina
230V
Plyn
Plynovod
Odpad
Veřejná kanalizace
Topení
Ústřední plynové
Komunikace
Dlážděná, Asfaltová
Doprava
Silnice, MHD
Voda
Vodovod
Terasa
Výtah
Bezbarierový přístup

Kontaktovat makléře

Realitní kancelář

PrimaReal

Rumjancevova 696/3, Liberec

Chystáte se prodat nemovitost?
Pomůžeme Vám!

Máte zájem o tento byt?

Tímto, v souladu s nařízením Evropského parlamentu a Rady (EU) 2016/679, v platném znění, prohlašuji, že mi je alespoň 16 let a uděluji tak svůj souhlas se zpracováním zadaných údajů (jméno, telefon, e-mail, ip adresa) společnosti B3 Technology, s.r.o., IČ: 07330600, se sídlem Novostavby 126/23, 435 11 Lom (správce dat), za účelem předání dotazu z tohoto formuláře Vámi vybranému inzerentovi a zpětného kontaktování mé osoby. Osobní údaje bude správce zpracovávat manuálně i automaticky přímo prostřednictvím svých zaměstnanců. Informace předané tímto formulářem budou uloženy v databázi správce maximálně po dobu 10 let. Odvolání souhlasu s uložením a zpracováním poskytnutých dat lze e-mailem na info@videobydleni.cz. V případě podezření na neoprávněné použití Vámi poskytnutých údajů máte právo předat podnět k šetření Úřadu pro ochranu osobních údajů. Více informací
Chystáte se prodat nemovitost?
Pomůžeme Vám!

Inzerát si prohlédlo 0 lidí

Prodejce

Vanda Hrubešová

Vanda Hrubešová

Hlídací pes

Chcete dostávat emailem podobné nabídky pronájmu bytů 2+kk v Liberci?

Podobné nemovitosti


Nevyhovuje Vám typ bytu? Podívejte se na jiné kategorie bytů.


Vybrané články z našeho blogu