Remax Monarcha

Prodej bytu 2+kk, Olomouc, Topolová, 55 m2 (ID: 4243888)

Topolová, Olomouc, Slavonín

Cena na vyžádání /za nemovitost Získejte výhodnou HYPOTÉKU

(volejte makléři, včetně provize)

Prémioví partneři v Olomouci

Informace k bytu

Hledáte prostorný a prosvětlený byt s krásným výhledem?
V jedné z nejoblíbenějších lokalit Olomouce, nabízíme ke koupi
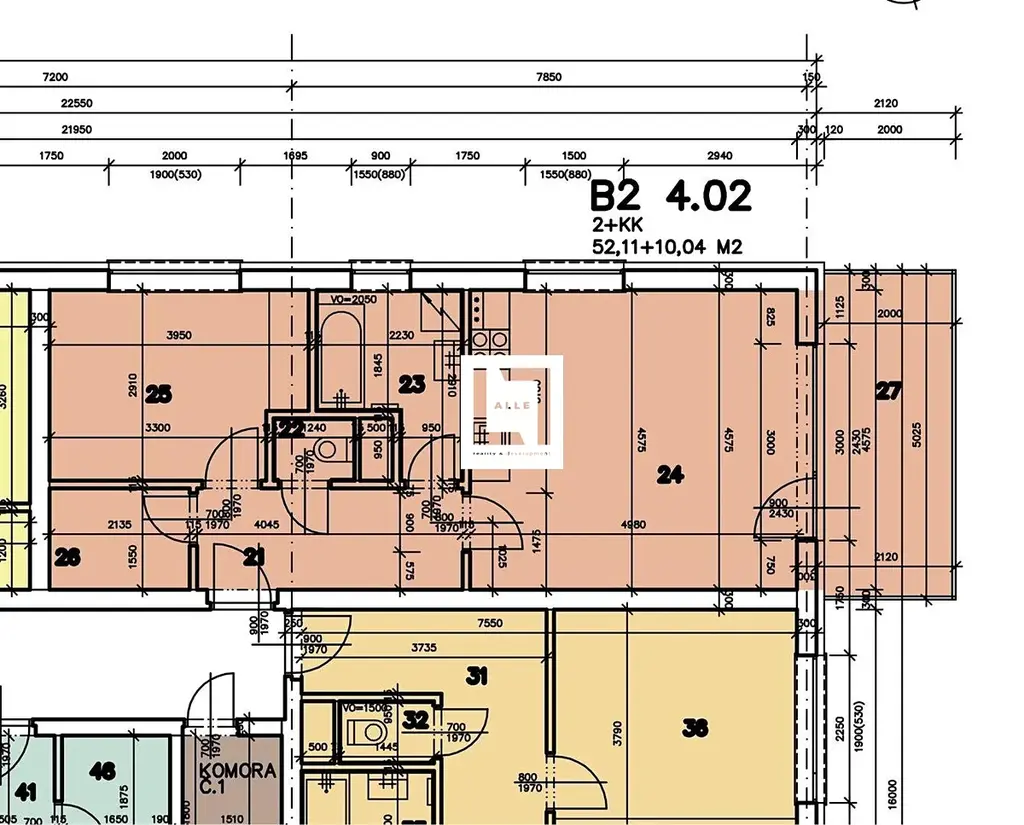
moderní byt 2+kk s podlahovou plochou 54,8 m2 a s balkonem 10 m2 orientovaným na severozápad, což oceníte zejména v letních měsících.
Přes prostornou chodbu vcházíte do obývacího pokoje s kuchyňskou linkou, vybavenou varnou deskou, digestoří, troubou (momentálně dochází k výměně), ledničkou s mrazákem a zabudovanou mikrovlnnou troubou. Z obývacího pokoje je pohodlný vstup na balkon. V bytě je dále ložnice s vestavěnou skříní a samostatná šatna. Koupelna má vanu, umyvadlo, vysokou úložnou skříňku, pračku, otopný žebřík, ale i radiátor umístěný pod plně otevíravým oknem, které zajistí dostatečné větrání.
Skvělá dostupnost do centra města, ale přitom i v bezprostřední blízkosti
se nachází veškerá občanská vybavenost – obchody, restaurace, školy,
školky, zastávky MHD i místa pro volnočasové aktivity.
Velkou předností lokality je dostatek zeleně, odpočinková zóna kolem přírodního rybníku Hamrys a mnoho příležitostí k procházkám, sportu i odpočinku.
K bytu náleží sklepní kóje umístěná v 1.PP.
Byt je dlouhodobě obývaný velmi spolehlivými a seriózními nájemníky, které bychom mohli vřele doporučit v případě pořízení bytu za účelem investice.
Doporučujeme prohlídku s makléřem

Parametry bytu

Cena
Cena na vyžádání Spočítat hypotéku
Poznámka k ceně
volejte makléři, včetně provize
Aktualizováno
18. 4. 2026
Adresa
Topolová, Olomouc, Slavonín
ID
00927
Stavba
Cihlová
Stav objektu
Projekt
Patro
4. z 4
Lokalita objektu
Klidná část obce
Vlastnictví
Osobní
Užitná plocha
55 m2
Třída energetické náročnosti
C - Úsporná
Ukazatel energetické náročnosti
94 kWh/m2 za rok
Elektřina
230V
Odpad
Veřejná kanalizace
Komunikace
Asfaltová
Doprava
Vlak, Dálnice, Silnice, MHD, Autobus
Voda
Vodovod
Zdroj topení
Centrální dálkové
Balkon
Výtah
Bezbarierový přístup

Kontaktovat makléře

Máte zájem o tento byt?

Tímto, v souladu s nařízením Evropského parlamentu a Rady (EU) 2016/679, v platném znění, prohlašuji, že mi je alespoň 16 let a uděluji tak svůj souhlas se zpracováním zadaných údajů (jméno, telefon, e-mail, ip adresa) společnosti B3 Technology, s.r.o., IČ: 07330600, se sídlem Novostavby 126/23, 435 11 Lom (správce dat), za účelem předání dotazu z tohoto formuláře Vámi vybranému inzerentovi a zpětného kontaktování mé osoby. Osobní údaje bude správce zpracovávat manuálně i automaticky přímo prostřednictvím svých zaměstnanců. Informace předané tímto formulářem budou uloženy v databázi správce maximálně po dobu 10 let. Odvolání souhlasu s uložením a zpracováním poskytnutých dat lze e-mailem na info@videobydleni.cz. V případě podezření na neoprávněné použití Vámi poskytnutých údajů máte právo předat podnět k šetření Úřadu pro ochranu osobních údajů. Více informací
Chystáte se prodat nemovitost?
Pomůžeme Vám!

Inzerát si prohlédlo 0 lidí

Prodejce

Magdalena Dittmerová

Magdalena Dittmerová

Hlídací pes

Chcete dostávat emailem podobné nabídky prodeje bytů 2+kk v Olomouci?

Podobné nemovitosti


Nevyhovuje Vám typ bytu? Podívejte se na jiné kategorie bytů.


Vybrané články z našeho blogu