Pronájem bytu 1+kk, Brno, Kleštínek, 39 m2 (ID: 4244013)

Kleštínek, Brno, Jehnice

10 000 Kč /za měsíc Získejte výhodnou HYPOTÉKU
Prémioví partneři v Brně

Informace k bytu

Prosím, kontaktujte mě výhradně e-mailem na adrese: rkberrny@post.cz
Nesleduji ani neodpovídám na žádné nabídky zaslané prostřednictvím platformy Sreality.cz.
Z časových důvodů budou všechny nabídky učiněné na této platformě automaticky odmítnuty. Pokud máte vážný zájem, e-mail je jediný způsob, jak mě můžete kontaktovat.

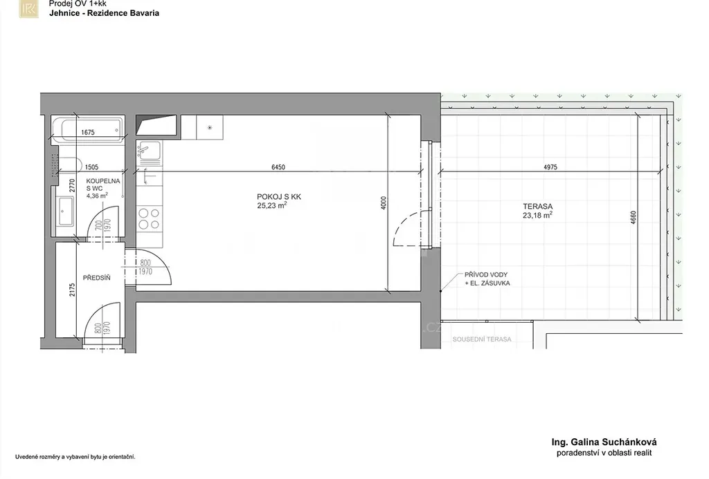
Nabízíme k pronájmu prostorný byt v novostavbě s terasou, sklepem a venkovním parkovacím stáním v prestižní Rezidenci Bavaria. Tento byt se nachází v jedinečné lokalitě, která osloví všechny, kdo hledají klidné bydlení v zeleni s dobrou dostupností do centra města. Lokalita je navíc obsluhována pravidelnými nočními rozjezdy městské hromadné dopravy. Dispozice bytu: Předsíň se vstupem do koupelny, která je společná s WC, a dále do obytné místnosti. Soukromí zajišťují elektricky ovládané předokenní žaluzie. Pro větší komfort je na okně otevírací síť. V bytě je instalováno podlahové teplovodní topení, které přispívá k vysokému komfortu bydlení. Vybavení bytu: moderní kuchyňská linka vybavená vestavěnými spotřebiči - lednice s mrazákem, myčka, sklokeramická varná deska, trouba, solitérní digestoř s odtahem do komína. J tu prostor i pro umístění mikrovlnné trouby. Kuchyňská linka i celý byt jsou opatřeny úspornými LED svítidly. Byt má bezpečnostní dveře. Terasa je vybavena osvětlením, elektrickou zásuvkou a přívodem vody, což umožňuje maximální využití venkovního prostoru. Díky poloze domu ve svahu je byt situován ve 3. podzemním podlaží z celkového počtu čtyř podzemních podlaží a čtyř nadzemních podlaží. Majitel si vyhrazuje právo vybrat kupujícího na základě jím zvolených kritérií. Pro více informací a prohlídku mě kontaktujte. Prohlídky jsou možné po předchozí domluvě. Těším se na Vaše dotazy.Galina Suchánková.

Parametry bytu

Cena
10 000 Kč /za měsíc
Aktualizováno
18. 4. 2026
Adresa
Kleštínek, Brno, Jehnice
Stavba
Cihlová
Stav objektu
Dobrý
Patro
1.
Vlastnictví
Osobní
Užitná plocha
39 m2

Kontaktovat makléře

Máte zájem o tento byt?

Tímto, v souladu s nařízením Evropského parlamentu a Rady (EU) 2016/679, v platném znění, prohlašuji, že mi je alespoň 16 let a uděluji tak svůj souhlas se zpracováním zadaných údajů (jméno, telefon, e-mail, ip adresa) společnosti B3 Technology, s.r.o., IČ: 07330600, se sídlem Novostavby 126/23, 435 11 Lom (správce dat), za účelem předání dotazu z tohoto formuláře Vámi vybranému inzerentovi a zpětného kontaktování mé osoby. Osobní údaje bude správce zpracovávat manuálně i automaticky přímo prostřednictvím svých zaměstnanců. Informace předané tímto formulářem budou uloženy v databázi správce maximálně po dobu 10 let. Odvolání souhlasu s uložením a zpracováním poskytnutých dat lze e-mailem na info@videobydleni.cz. V případě podezření na neoprávněné použití Vámi poskytnutých údajů máte právo předat podnět k šetření Úřadu pro ochranu osobních údajů. Více informací
Chystáte se prodat nemovitost?
Pomůžeme Vám!

Inzerát si prohlédlo 0 lidí

Prodejce

Bohdana Kolouchová

Bohdana Kolouchová

Hlídací pes

Chcete dostávat emailem podobné nabídky pronájmu bytů 1+kk v Brně?

Podobné nemovitosti


Nevyhovuje Vám typ bytu? Podívejte se na jiné kategorie bytů.


Vybrané články z našeho blogu