Soccer reality

Prodej rodinného domu, Praha - Horní Počernice, Spojenců, 209 m2 (ID: 4244060)

Spojenců, Praha, Horní Počernice

16 999 999 Kč /za nemovitost HYPOTÉKA od 75 980 Kč /za měsíc

(Cena včetně provize a právního systému)

Prémioví partneři v Praze 9

Stěhovací služby

Výkup a prodej starého nábytku

Informace k domu

Prodej prostorného rodinného domu se dvěma byty (4+1 a 4+kk) v srdci Horních Počernic v ulici Spojenců
Hledáte bydlení, které kombinuje klid předměstí s perfektní dostupností Prahy? Nabízíme vám exkluzivní příležitost ke koupi samostatně stojícího rodinného domu v prestižní části Prahy. Tento dům je díky své dispozici ideální jako vícegenerační bydlení, kombinace vlastního bydlení s podnikáním, nebo jako výhodná investice k pronájmu dvou samostatných jednotek.

Klíčové parametry nemovitosti:
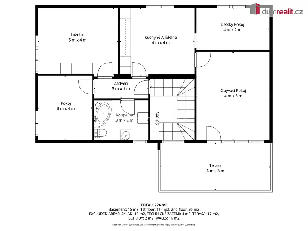
Celková užitná plocha: cca 224 m² (včetně příslušenství).

Dispozice: Dvě plnohodnotné bytové jednotky se samostatnými vstupy z centrálního schodiště.

Garáž a parkování: Velkorysá garáž pro více vozů + možnost parkování na pozemku.
Dispozice domu:
1. patro (114 m²) – Byt 4+1:
Dominantou tohoto patra je prostorný obývací pokoj s krbem, který dodává interiéru útulnou atmosféru. Kuchyně s jídelním koutem je oddělena, což ocení milovníci klasického uspořádání. Patro dále nabízí tři ložnice/pokoje, koupelnu s vanou a samostatné WC.
2. patro (95 m²) – Byt 4+kk:
Moderněji koncipované podlaží, kterému vévodí světlý obývací pokoj propojený s kuchyňským koutem a jídelnou. Z obývacího pokoje je přímý vstup na velkou terasu (17 m²) s výhledem do zeleně, ideální pro letní snídaně nebo večerní relaxaci. Nachází se zde další tři samostatné neprůchozí pokoje a stylová koupelna s rohovou vířivou vanou.

Technické zázemí (Suterén/Přízemí):
Dům je částečně podsklepen a nabízí bohaté úložné prostory – sklad (10 m²), technické zázemí (4 m²) a další sklepní prostory.

Technické informace:
Vytápění: Primárně řešeno elektrokotlem, v obývacím pokoji krb na tuhá paliva.

Inženýrské sítě: Dům je napojen na obecní vodovod a kanalizaci. Plyn je zaveden do domu, což umožňuje snadnou změnu typu vytápění dle preferencí nového majitele.

Stav: Dům je udržovaný, v interiéru proběhly dílčí modernizace (kuchyňské linky, podlahy, koupelny).

Lokalita, kterou si zamilujete:
Horní Počernice jsou vyhlášené skvělou občanskou vybaveností. V docházkové vzdálenosti najdete školy, školky, lékaře i restaurace.

Doprava: Skvělé napojení na Pražský okruh a dálnici D11. Autobusem jste za pár minut na metru B – Černý Most. Vlakové spojení (S-linky) vás doveze do centra Prahy (Masarykovo nádraží) za pouhých 20 minut.

Volný čas: Blízkost Chvalského zámku, cyklostezek a přírodního parku Klánovice-Čihadla.

Cena je včetně kompletního právního servisu.

Tento dům musíte vidět osobně, abyste ocenili jeho potenciál a atmosféru. Kontaktujte nás a domluvte si prohlídku ještě dnes! Ev. číslo: 655961.

Parametry domu

Cena
16 999 999 Kč /za nemovitost Spočítat hypotéku
Poznámka k ceně
Cena včetně provize a právního systému
Aktualizováno
19. 4. 2026
Adresa
Spojenců, Praha, Horní Počernice
ID
656575
Stavba
Cihlová
Stav objektu
Dobrý
Druh objektu
Samostatný
Užitná plocha
209 m2
Zastavěná plocha
132 m2
Plocha pozemku
596 m2
Třída energetické náročnosti
G - Mimořádně nehospodárná
Topení
Jiné
Garáž
Sklep

Kontaktovat makléře

Máte zájem o tento dům?

Tímto, v souladu s nařízením Evropského parlamentu a Rady (EU) 2016/679, v platném znění, prohlašuji, že mi je alespoň 16 let a uděluji tak svůj souhlas se zpracováním zadaných údajů (jméno, telefon, e-mail, ip adresa) společnosti B3 Technology, s.r.o., IČ: 07330600, se sídlem Novostavby 126/23, 435 11 Lom (správce dat), za účelem předání dotazu z tohoto formuláře Vámi vybranému inzerentovi a zpětného kontaktování mé osoby. Osobní údaje bude správce zpracovávat manuálně i automaticky přímo prostřednictvím svých zaměstnanců. Informace předané tímto formulářem budou uloženy v databázi správce maximálně po dobu 10 let. Odvolání souhlasu s uložením a zpracováním poskytnutých dat lze e-mailem na info@videobydleni.cz. V případě podezření na neoprávněné použití Vámi poskytnutých údajů máte právo předat podnět k šetření Úřadu pro ochranu osobních údajů. Více informací
Chystáte se prodat nemovitost?
Pomůžeme Vám!

Inzerát si prohlédlo 1 lidí

Prodejce

Michal Gažo

Michal Gažo

Hlídací pes

Chcete dostávat emailem podobné nabídky prodeje rodinných domů v Praze 9?

Podobné nemovitosti


Nevyhovuje Vám typ domu? Podívejte se na jiné kategorie domů.


Vybrané články z našeho blogu