Prodej vily, Candi Dasa, Indonésie, 57 m2 (ID: 4244491)

Candi Dasa

299 000 US$ /za nemovitost
Prémioví partneři

Informace k domu

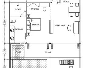
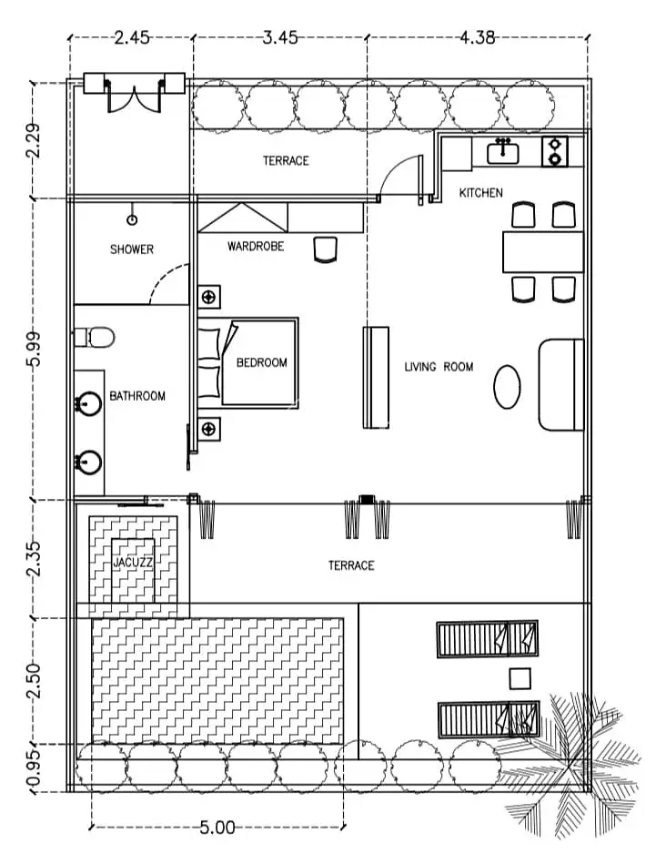
Nabízíme k prodeji exkluzivní vilu o dispozici 2+kk a celkové ploše 165 m², situovanou v prestižním Neano Resortu v Candidase na východním Bali v Indonésii. Vila je kompletně dokončena a připravena k okamžitému užívání či pronájmu, a to již od jara 2026. Tato výjimečná nemovitost propojuje luxusní bydlení s panenskou přírodou a nabízí zcela unikátní panoramatické výhledy – z jedné strany na azurový Indický oceán, z druhé na majestátní sopku Agung. Důraz byl kladen na maximální soukromí, komfort a harmonické začlenění stavby do okolní krajiny.

Vila disponuje prostorným obývacím pokojem s moderní kuchyní, soukromou terasou a vlastním bazénem. Interiér je proveden v nadstandardních materiálech a elegantním designu, který citlivě kombinuje moderní luxus s prvky indonéské tradice. Součástí zázemí jsou také prémiové úklidové služby a pravidelná údržba, zajišťující bezstarostné užívání nemovitosti.

Architektonický návrh vil v resortu vznikl pod vedením českého architekta Davida Kvasničky ve spolupráci s profesionálními indonéskými architekty. Celá realizace je průběžně dozorována českým týmem, který garantuje vysokou kvalitu provedení stavby, použitých technologií i úprav okolí.

Neano Resort se nachází v klidné a autentické části východního Bali, která je ideální pro relaxaci i aktivní trávení volného času. Candidasa je vyhledávanou lokalitou pro potápění a šnorchlování, přičemž v bezprostředním okolí se nacházejí unikátní místa jako Tepelong Island či ostrovy Mimpang s výjimečnou viditelností pod vodou přesahující 30 metrů. Pláž je dostupná během několika minut chůze, centrum Candidasy pak krátkou jízdou autem.

Nemovitost je nabízena formou leaseholdu na 25 let s možností prodloužení o dalších 25 let a představuje atraktivní investiční příležitost s potenciálem stabilního výnosu z pronájmu. Vilu vám představí česky mluvící makléř, který zajistí kompletní servis, pohodlnou orientaci v projektu i případnou profesionální správu pronájmu.

Parametry domu

Cena
299 000 US$ /za nemovitost
Aktualizováno
20. 4. 2026
Adresa
Candi Dasa
ID
N7867
Stavba
Smíšená
Stav objektu
Novostavba
Vybaveno
Ano
Druh objektu
Samostatný
Užitná plocha
57 m2
Plocha pozemku
165 m2
Třída energetické náročnosti
G - Mimořádně nehospodárná
Bazén

Kontaktovat makléře

Máte zájem o tento dům?

Tímto, v souladu s nařízením Evropského parlamentu a Rady (EU) 2016/679, v platném znění, prohlašuji, že mi je alespoň 16 let a uděluji tak svůj souhlas se zpracováním zadaných údajů (jméno, telefon, e-mail, ip adresa) společnosti B3 Technology, s.r.o., IČ: 07330600, se sídlem Novostavby 126/23, 435 11 Lom (správce dat), za účelem předání dotazu z tohoto formuláře Vámi vybranému inzerentovi a zpětného kontaktování mé osoby. Osobní údaje bude správce zpracovávat manuálně i automaticky přímo prostřednictvím svých zaměstnanců. Informace předané tímto formulářem budou uloženy v databázi správce maximálně po dobu 10 let. Odvolání souhlasu s uložením a zpracováním poskytnutých dat lze e-mailem na info@videobydleni.cz. V případě podezření na neoprávněné použití Vámi poskytnutých údajů máte právo předat podnět k šetření Úřadu pro ochranu osobních údajů. Více informací
Chystáte se prodat nemovitost?
Pomůžeme Vám!

Inzerát si prohlédlo 0 lidí

Prodejce

Monika Suchánek

Monika Suchánek

Hlídací pes

Chcete dostávat emailem podobné nabídky prodeje vil?

Podobné nemovitosti


Nevyhovuje Vám typ domu? Podívejte se na jiné kategorie domů.


Vybrané články z našeho blogu