Pronájem obchodního prostoru, Praha - Háje, Hviezdoslavova, 661 m2 (ID: 4244871)

Hviezdoslavova, Praha 4

250 000 Kč /za měsíc Získejte výhodnou HYPOTÉKU
Prémioví partneři v Praze 4

Stěhovací služby

Výkup a prodej starého nábytku

Informace k nemovitosti

Nabízíme k pronájmu nadstandardně prostornou komerční budovu situovanou v atraktivní lokalitě Prahy 4 – Háje, v ulici Hviezdoslavova. Objekt je ideální pro kombinaci obchodních, kancelářských i skladových aktivit a díky své dispozici nabízí široké spektrum využití. V případě dohody se lze dohodnout na vybavení a zařízení dle potřeb nájemníka.

Budova byla doposud využívána jako zázemí internetového obchodu s elektronikou, což potvrzuje její funkčnost, praktičnost a dlouhodobou využitelnost pro podnikání.

Majitel preferuje dlouhodobý pronájem na dobu neurčitou s výpovědní lhůtou minimálně 9 měsíců.

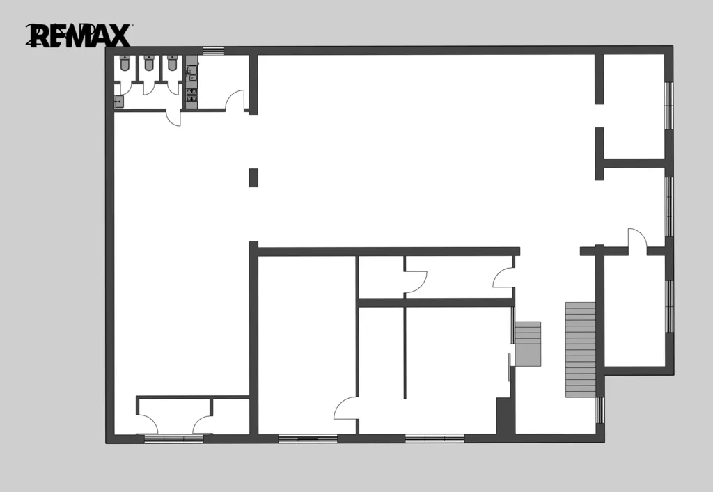
Celková užitná plocha činí 661 m², rozdělená do dvou nadzemních podlaží:
1. NP (297 m²) – převážně skladové prostory s kompletním zázemím (toalety, technická místnost, koupelna se sprchou, kuchyně s jídelnou)
2. NP (364 m²) – hlavní obchodní prostor doplněný kancelářemi, skladem, sociálním zázemím a kuchyňkou

Součástí nabídky je také pozemek o celkové výměře 892 m², včetně vlastního parkoviště o ploše 367 m², což výrazně zvyšuje komfort pro zaměstnance i klienty.

Technické parametry a vybavení:
Objekt je ve velmi dobrém technickém stavu – zateplená fasáda, plastová okna s izolačními dvojskly, kvalitní rozvody (částečně v mědi), centrální vysavač, zabezpečovací systém Jablotron a moderní osvětlení (LED ve 2. NP).

Ve skladové části se nachází sekční garážová vrata na dálkové ovládání, nechybí ani vzduchotechnika či pevné internetové připojení s rychlostí až 2 GB/s.

Napojení na inženýrské sítě je samozřejmostí – obecní vodovod, kanalizace a elektřina. Vytápění je řešeno centrálně prostřednictvím Pražské teplárenské.

Nájemné: 250.000,- Kč bez DPH
Provize RK: 125.000,- Kč bez DPH
K dispozici: ihned

V případě zájmu mě neváhejte kontaktovat Pronajímající si vyhrazuje právo vybrat nájemce na základě jím zvolených kritérií.

Parametry nemovitosti

Cena
250 000 Kč /za měsíc
Aktualizováno
20. 4. 2026
Adresa
Hviezdoslavova, Praha 4
ID
248-NP00937
Stavba
Cihlová
Stav objektu
Velmi dobrý
Vybaveno
Ne
Typ objektu
Patrový
Lokalita objektu
Sídliště
Užitná plocha
661 m2
Zastavěná plocha
525 m2
Plocha zahrady
892 m2
Třída energetické náročnosti
G - Mimořádně nehospodárná
Odpad
Veřejná kanalizace
Komunikace
Asfaltová
Telekomunikace
Internet
Doprava
Silnice, MHD, Autobus
Voda
Vodovod
Převod do OV
Parkování

Kontaktovat makléře

Realitní kancelář

Logo RE/MAX Power2

RE/MAX Power2

Zahradnická 550, Příbram

Chystáte se prodat nemovitost?
Pomůžeme Vám!

Máte zájem o tuto nemovistost?

Tímto, v souladu s nařízením Evropského parlamentu a Rady (EU) 2016/679, v platném znění, prohlašuji, že mi je alespoň 16 let a uděluji tak svůj souhlas se zpracováním zadaných údajů (jméno, telefon, e-mail, ip adresa) společnosti B3 Technology, s.r.o., IČ: 07330600, se sídlem Novostavby 126/23, 435 11 Lom (správce dat), za účelem předání dotazu z tohoto formuláře Vámi vybranému inzerentovi a zpětného kontaktování mé osoby. Osobní údaje bude správce zpracovávat manuálně i automaticky přímo prostřednictvím svých zaměstnanců. Informace předané tímto formulářem budou uloženy v databázi správce maximálně po dobu 10 let. Odvolání souhlasu s uložením a zpracováním poskytnutých dat lze e-mailem na info@videobydleni.cz. V případě podezření na neoprávněné použití Vámi poskytnutých údajů máte právo předat podnět k šetření Úřadu pro ochranu osobních údajů. Více informací
Chystáte se prodat nemovitost?
Pomůžeme Vám!

Inzerát si prohlédlo 0 lidí

Prodejce

Václav Kofroň

Václav Kofroň

Hlídací pes

Chcete dostávat emailem podobné nabídky pronájmu obchodních prostor v Praze 4?

Podobné nemovitosti


Nevyhovuje Vám typ nemovitosti? Podívejte se na jiné kategorie komerčních.


Vybrané články z našeho blogu