Pronájem bytu 3+kk, Hradec Králové, Šafaříkova, 95 m2

Šafaříkova, Hradec Králové

32 000 Kč /za měsíc Získejte výhodnou HYPOTÉKU

(+ 5.000 Kč záloha na energie a služby)

Prémioví partneři v Hradci Králové

Informace k bytu

Dobrý den, hledáte pronájem zajímavého bytu v centru Hradce Králové? Požadujete balkón, terasu nebo předzahrádku, ze které můžete mít na dohled své děti nebo jen chcete sedět na vzduchu u sklenky vína, případně grilovat? Už nemusíte hledat, právě jste ho našli.

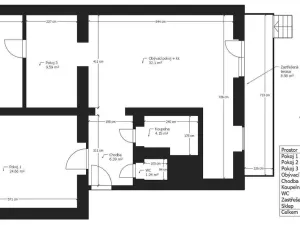
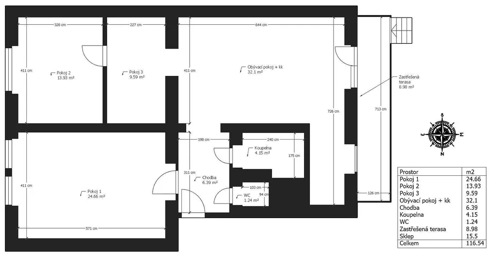
Jedná se o nabídku bytu k pronájmu o dispozici 3+kk a výměře 94,6 m2, který se nachází v 1.NP (zvýšeném přízemí) zděného bytového domu. Byt v minulosti prošel rozsáhlou rekonstrukcí včetně vybudování zastřešeného balkónu, ze kterého je možné sejít po schodech do dvora bytového domu. Úložné prostory Vám také chybět nebudou, k dispozici jsou dva sklepy, do kterých zaparkujete jízdní kola a uložíte další věci. V bytě je v prostoru nad vstupní chodbou snížený strop s využitím jako úložný prostor. Přístup po sklápěcích schůdkách.

Lokace bytu je naprosto ideální, slepá ulice Šafaříkova, pár kroků od Masarykova náměstí, ale přitom s klidným a částečně zeleným vnitroblokem.

Byt se pronajímá včetně vybavené kuchyňské linky s potřebnými spotřebiči (varné desky, pečící a mikrovlnné trouby, odsavače par, myčky nádobí). Dále je k dispozici pračka, rohová rozkládací sedačka, jídelní stůl se židlemi, postel, šatní skříň.

Výše nájmu tohoto komfortního bytu vychází na 32.000 Kč + 5.000 Kč zálohy na energie, peněžitá jistota (vratná kauce) činí 64.000 Kč a provize RK je ve výši 25.000 Kč. Byt je volný ihned.

Děkuji za pozornost. Václav Růžička, realitní specialista.

Pronajímatel si vyhrazuje právo vybrat nájemce na základě jím zvolených kritérií.

Parametry bytu

Cena
32 000 Kč /za měsíc
Poznámka k ceně
+ 5.000 Kč záloha na energie a služby
Aktualizováno
20. 4. 2026
Adresa
Šafaříkova, Hradec Králové
ID
XA-477
Stavba
Cihlová
Stav objektu
Po rekonstrukci
Patro
1. z 3
Typ objektu
Patrový
Vlastnictví
Osobní
Užitná plocha
95 m2
Podlahová plocha
95 m2
Plyn
Plynovod
Odpad
Veřejná kanalizace
Topení
Ústřední plynové
Komunikace
Asfaltová
Telekomunikace
Internet
Voda
Vodovod
Topné těleso
Radiátory
Zdroj topení
Plynový kotel
Zdroj teplé vody
Plynový kotel
Bezbarierový přístup

Kontaktovat makléře

Realitní kancelář

RV Reality

Bratranců Veverkových 355, Pardubice, Zelené Předměstí

Chystáte se prodat nemovitost?
Pomůžeme Vám!

Máte zájem o tento byt?

Tímto, v souladu s nařízením Evropského parlamentu a Rady (EU) 2016/679, v platném znění, prohlašuji, že mi je alespoň 16 let a uděluji tak svůj souhlas se zpracováním zadaných údajů (jméno, telefon, e-mail, ip adresa) společnosti B3 Technology, s.r.o., IČ: 07330600, se sídlem Novostavby 126/23, 435 11 Lom (správce dat), za účelem předání dotazu z tohoto formuláře Vámi vybranému inzerentovi a zpětného kontaktování mé osoby. Osobní údaje bude správce zpracovávat manuálně i automaticky přímo prostřednictvím svých zaměstnanců. Informace předané tímto formulářem budou uloženy v databázi správce maximálně po dobu 10 let. Odvolání souhlasu s uložením a zpracováním poskytnutých dat lze e-mailem na info@videobydleni.cz. V případě podezření na neoprávněné použití Vámi poskytnutých údajů máte právo předat podnět k šetření Úřadu pro ochranu osobních údajů. Více informací
Chystáte se prodat nemovitost?
Pomůžeme Vám!

Inzerát si prohlédlo 1 lidí

Prodejce

Václav Růžička

Václav Růžička

Hlídací pes

Chcete dostávat emailem podobné nabídky pronájmu bytů 3+kk v Hradci Králové?

Podobné nemovitosti


Nevyhovuje Vám typ bytu? Podívejte se na jiné kategorie bytů.


Vybrané články z našeho blogu