Prodej bytu 1+kk, Praha - Nusle, 5. května, 46 m2

5. května, Praha, Nusle

6 600 000 Kč /za nemovitost HYPOTÉKA od 29 498 Kč /za měsíc
Prémioví partneři v Praze 4

Stěhovací služby

Výkup a prodej starého nábytku

Informace k bytu

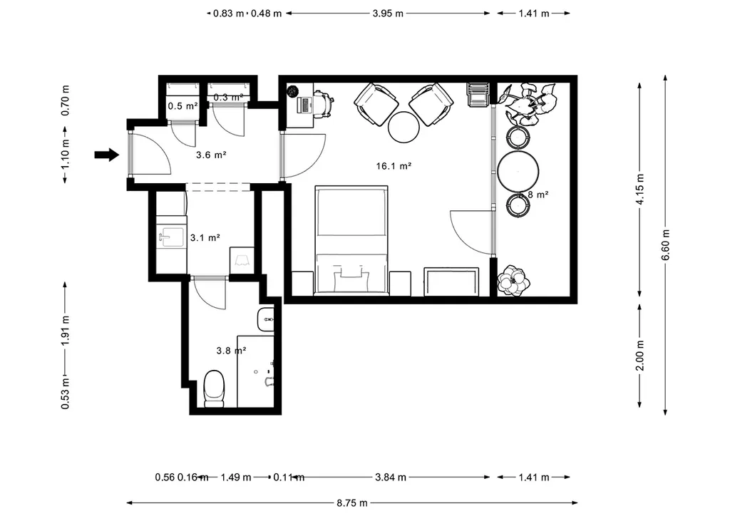
Exkluzivní nabídka prodeje světlého bytu 1 + KK / s terasou, 44 m2 UP, s výrazným investičním potenciálem v centru Prahy.

Byt - 37 m2 OP + 7 m2 terasa s příznivou orientací - J / Z, se nachází v 5. posledním patře cihlového domu v docházkové vzdálenosti - tři minuty, od stanice metra Vyšehrad.

Byt je v pečlivě udržovaném stavu, ve správě výborně fungujícího BD.

Atraktivní lokalita ve které se byt nachází je společně s výbornou dopravní dostupností a s kompletní občanskou vybaveností ideální zejména jako investice ale i jako startovací bydlení.

Aktuálně je byt pronajatý spolehlivé, platící nájemnici se kterou je možné pokračovat ve stávajícím nájemním vztahu se zajímavým měsíčním výnosem.

Kompletní informace v kanceláři.


PENB v přípravě, prozatím uvádíme dle zákona třídu G.

Parametry bytu

Cena
6 600 000 Kč /za nemovitost Spočítat hypotéku
Aktualizováno
21. 4. 2026
Adresa
5. května, Praha, Nusle
ID
N00389
Stavba
Cihlová
Stav objektu
Velmi dobrý
Patro
5. z 5
Vybaveno
Ano
Lokalita objektu
Centrum obce
Vlastnictví
Družstevní
Užitná plocha
46 m2
Podlahová plocha
44 m2
Třída energetické náročnosti
G - Mimořádně nehospodárná
Elektřina
230V
Topení
Ústřední dálkové
Telekomunikace
Telefon, Internet
Doprava
Vlak, Dálnice, Silnice, MHD, Autobus
Voda
Vodovod
Topné těleso
Radiátory
Zdroj topení
Ústřední dálkové
Sklep
Terasa
Převod do OV

Kontaktovat makléře

Máte zájem o tento byt?

Tímto, v souladu s nařízením Evropského parlamentu a Rady (EU) 2016/679, v platném znění, prohlašuji, že mi je alespoň 16 let a uděluji tak svůj souhlas se zpracováním zadaných údajů (jméno, telefon, e-mail, ip adresa) společnosti B3 Technology, s.r.o., IČ: 07330600, se sídlem Novostavby 126/23, 435 11 Lom (správce dat), za účelem předání dotazu z tohoto formuláře Vámi vybranému inzerentovi a zpětného kontaktování mé osoby. Osobní údaje bude správce zpracovávat manuálně i automaticky přímo prostřednictvím svých zaměstnanců. Informace předané tímto formulářem budou uloženy v databázi správce maximálně po dobu 10 let. Odvolání souhlasu s uložením a zpracováním poskytnutých dat lze e-mailem na info@videobydleni.cz. V případě podezření na neoprávněné použití Vámi poskytnutých údajů máte právo předat podnět k šetření Úřadu pro ochranu osobních údajů. Více informací
Chystáte se prodat nemovitost?
Pomůžeme Vám!

Inzerát si prohlédlo 0 lidí

Prodejce

Jiří Švára

Jiří Švára

Hlídací pes

Chcete dostávat emailem podobné nabídky prodeje bytů 1+kk v Praze 4?

Podobné nemovitosti


Nevyhovuje Vám typ bytu? Podívejte se na jiné kategorie bytů.


Vybrané články z našeho blogu